365天中有一天是某人的生日。如果这一天是一个楔子,标志着一个人的生日纪念日,那么剩下的364天则是一个人成长过程中的一段平凡、普通的生活。人们珍视这些日子。unbirthday是广岛市中区的一家儿童服装精品店,其名称可能有这样的含义。
One day out of 365 is someone's birthday. If that one day is a wedge that marks the anniversary of a person's birthday, the remaining 364 days are a period of ordinary, ordinary life during which a person grows up. People cherish these days. The name of unbirthday, a children's clothing boutique in Naka-ku, Hiroshima City, may have such a meaning.





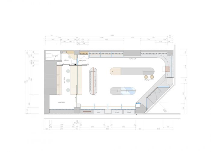
我们希望孩子们能自由地度过他们的童年,不受任何东西的束缚,空间的设计将消除或隐藏垂直 "支撑 "和 "障碍 "的存在。空间的构成是强调通过消除或掩盖垂直 "支撑物 "和 "障碍物 "的存在而创造的美丽水平面的直线和曲线,通过轻轻地连接它们,我们希望整个空间能够表达平静的日常日子的延续的辉煌,而不是纪念日。
We hope that children will spend their childhood freely without being tied down by anything, and that the space will be designed in a way that eliminates or hides the existence of vertical "supports" and "obstacles. The space is composed by emphasizing the straight lines and curves of beautiful horizontal surfaces created by eliminating or concealing the presence of vertical "supports" and "obstructions," and by gently connecting them, we wanted the entire space to express the splendor of the continuation of calm, everyday days, not anniversaries.

整个空间的安排尽可能地消除了垂直支柱的存在,由顶板创造的水平直线,由重力创造的自然偏转的曲线,以及有机的自由弯曲的木板和铜板把手,这些都是以儿童自由想象的形象创造的,希望它们能自由地、自发地生长。
The entire space is arranged to eliminate the presence of vertical pillars as much as possible, with horizontal straight lines created by the top panel, curves of natural deflection created by gravity, and organic free-curved wooden panels and copper plate handles, which were created in the image of children's free imagination, in the hope that they will grow freely and spontaneously.


现有的外墙被刮去了光秃秃的柱梁框架,装上了透明的玻璃,然后重新抹上灰,形成一个高度透明的外墙,没有存在感。
The existing façade has been scraped down to its bare post-and-beam frame and fitted with transparent glass, which is then newly plastered to create a highly transparent façade with no sense of presence.

孩子和成人的区别在于成长的能力。在这个由水平直线和曲线构成的自由开放的空间里,脱离了柱子和墙壁的支撑和遮挡,我们希望孩子们能在每天的成长中感受到快乐,自由随意地选择和享受他们的衣服,为他们平凡而美好的日常生活增添变化和色彩。
The difference between a child and an adult is the ability to grow. In this free and open space made of horizontal straight lines and curves, breaking away from pillars and walls for support and shielding, we hope that children will feel joy in their daily growth, freely and casually choose and enjoy their clothes, and add change and color to their ordinary but wonderful daily lives.
















Architects: FATHOM
Area : 65 m²
Year : 2022
Photographs :Tatsuya Tabii
Manufacturers : Acrylai, BP., SK Kaken, YAMATEI
Greenery : Green Union, Green / Kenzaburou Ohshio
Design : Hiroyuki Nakamoto
Steel Works : KAMO CRAFT
City : 7-13 Fujimichō, Naka Ward, Hiroshima, 730-0043, Japan
Country : Japan