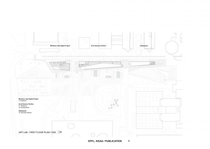
瑞士洛桑联邦理工学院(EPFL)的新校区被命名为Artlab,它由三个项目组成--艺术与科学馆、技术与信息馆和蒙特勒爵士咖啡馆。这三个盒子藏在一个宏伟的斜屋顶下,延伸到235米长。在每个盒子之间,我们设计了一个产生两条轴线的开孔区。这两条线有助于调集人流,重新组织园区内的所有建筑。
The new campus for Swiss Federal Institute of Technology in Lausanne (EPFL) is named Artlab, which consists of three programs – an Arts & Science Pavilion, a Technology & Information Gallery, and the Montreux Jazz Café. The three boxes are tucked under a grand pitched roof that stretches as long as 235m. Between each box, we designed an aperture area that generates two axes. The two lines help to marshal the ow of people and reorganize all the buildings in the campus.



日本有一句话,"生活在一个屋檐下",这意味着各种不同的人聚集在一起,组成团队,而Artlab正是这种表达的建筑翻译。
There is a Japanese saying, “living under one roof,” which means various and different individuals get together and team up, and Artlab is exactly the architectural translation of this expression.


在结构和外观上,我们使用了在瑞士常见的木材,以创造具有当地温暖的空间。木质的柱子两边都夹着钢板,这样空间就可以同样温和而透明。屋顶是石制的,这是基于瑞士普通房屋所采用的方法。屋顶根据下面的功能像折纸一样变形,并创造出响应光和影的脸。
For the structure and the exterior, we used timbers that are commonly found in Switzerland, in order to create space with local warmth. The wooden pillars are sandwiched with steel plates on both sides so that the space can be equally gentle and transparent. The roofing is in stone, which is based on the method applied in ordinary Swiss houses. The roof transfigures like origami according to the function underneath, and creates faces responding to light and shadow.

项目描述
项目现场是一片广阔的草坪,是EPFL校园中间的一个空隙。它将校园的北面(Esplanade广场、校园的社会中心和有轨电车站所在的地方)与南面的学生住宅区分开。此外,它还将校园密集的西部与目前正在发展的东部分开,后者围绕着学习中心,尽管它的存在令人印象深刻,但却无法组织和凝聚其周围的环境,直到现在,它还是残缺和不健全的。
Project description
The project site is a vast lawn, a void in the middle of the EPFL campus. It disconnects the North side of the campus (where the Esplanade plaza, social heart of the campus, and the tram station are) from the students’ residential area in the South. Also it separates the dense West part of the campus from the currently evolving East side that is articulated around the Learning Center which, despite its impressive presence, has not been able to organize and cohere its surroundings, until now, residual and dysfunctional.

广阔的项目场地使我们能够以多种方式定位和配置展馆。最后,我们决定将三个所需的亭子集中到一个非常薄和长的建筑中,作为领土上的一个有目的的痕迹,从而将场地从一个功能失调的空隙转变为校园内一个新的公共空间。
The given vast project site allowed us to locate and configure the pavilions in many ways. Finally we decided to gather the three required pavilions into one very thin and long building that, as a purposeful trace in the territory, thus transforming the site from being a dysfunctional void into a new public space within the campus.

-240米长的屋顶将为从北部滨海广场到南部住宅的行人提供全天的庇护。
-The 240m long roof will provide shelter to the pedestrian ow from the north Esplanade plaza down South to the residences throughout the day.

-屋顶下的亭子之间提供的门廊,一个连接到主要公共停车场所在的西侧的主要街道,另一个连接到东侧的新树长廊。因此,门廊将通过建筑提供渗透性,吸引和连接校园的西侧和东侧。
-The porches provided between the pavilions uni ed under the roof are connected one to the main street coming from the West side where main public parking areas are located, and the other to the new tree promenade from the East. Therefore, the porches will provide permeability through the building attracting and connecting these West and East sides of the campus.

通过将该场地改造成一个学生、教授和游客每天都能舒适地经过的地方,享受在这个屋顶下进行的新活动,我们相信整个区域将成为校园内的一个重要场所,为EPFL带来更多的社会和文化层面。
By transforming the site into a place where students, professors and visitors will comfortably pass by every day enjoying the new activities that will take place under this roof, we are con dent that this whole area will become an essential spot within the campus that will bring a more social and cultural dimension to the EPFL.

结构
为了框住并保护现有滨海广场的湖景,该建筑的北端仍然非常薄,大约5米,而其南端的部分则扩大到16米。为了从结构上解决这样一个总在宽度上变化的夸张的细长建筑,我们开发了一种新的结构方案,将木材和钢结合起来。改变木/钢结构的比例,可以使所有57个结构门户(跨度不同)在整个建筑中具有完全相同的截面,使项目的整个围护结构模块化,可以预制。
Structure
In order to frame and protect the view of the lake from the existing Esplanade plaza, the building remains very thin in its northern end, about 5m, and its sections widens up to 16m on its southern end. To solve structurally such an exaggerated slender building that always changes in width, we developed a new kind of structure solution combining wood and steel. Changing the proportion of the wood/steel composition allowed to have all the 57 structure portals (that are all different in span) to have the exact same section throughout the building, making the whole envelope of the project modular and able to be prefabricated.




外立面
该建筑的屋檐为那些沿着校园中心的滨海大道和南部的学生宿舍之间的广场行走的人提供了庇护。由于这些屋檐保护着立面的上侧,它的木质包层在整个表面会有不同程度的老化;因此,木材被预先老化,以便在其寿命期间达到稳定的效果。当地的落叶松被选为外墙的材料,因为根据当地的实践,它具有良好的耐久性。预先老化的木质包层的浅灰色调,加上深灰色的石板屋顶,给建筑带来了相当安静和微妙的存在,尽管它的长度非常惊人。这些冰冷的灰色调与广场周围的其他建筑以及洛桑普遍的阴霾天气相呼应。只有当人们走近这座建筑,接受其屋顶的庇护时,我们才会发现其巨大的木质天花板的温暖。
Façade
The building’s eaves provide shelter for those walking along the piazza between the Esplanade, heart of the campus, and the student housing in the South. Due to those eaves protecting the upper side of the façade, its wooden cladding would age in a heterogeneous way throughout the surface; therefore the wood was pre-aged in order to achieve a stable presence during its life span. Local larch was chosen for the façade as it has good endurance based on local practice. The light gray tone of the pre-aged wood cladding, together with the dark grey slate roofing, give a rather quiet and subtle presence to the building, despite its remarkable length. These cold grayish tones dialogue with those of other buildings surrounding the piazza and as well with the generally overcast weather of Lausanne. It is only when one gets closer to the building, receiving shelter by its roof, that we discover the warmth of its vast wooden ceiling.



























Architects: Kengo Kuma & Associates
Year: 2016
Photographs: Joël Tettamanti, Michel Denance
Manufacturers: Mivelaz bois, CYMISA
Lead Architects: Kengo Kuma & Associates / Javier Villar Ruiz (Partner in charge) with: Nicola Maniero, Rita Topa, Marc Moukarzel, Jaeyung Joo, Cristina Gimenez
Local Architect:CCHE
Structural Engineer Competition Phase:Ejiri Structural Eng./ Util
Mep Consultants Competition Phase:BuroHappold Engineering
Local Architect Competition Phase:Holzer Kobler Architekturen
Total Contractor:Marti Construction SA
Lighting Design:L’Observatoire Internationale
Structure:INGPHI SA, Concepteurs d'ouvrages d'art (project phase)
Building Services:BG Ingénieurs Conseils
Thermal & Acoustics:AAB
Woodworks:JPF Ducret
Thermal:AAB
Acoustics:AAB
City:Lausanne
Country:Switzerland