由创意设计师Jean Lessard公司创建的Uniprix药店位于蒙特利尔市郊的Quartier DIX30,与通常的这类超级商店的设计不同,因为它挑战了公认的观念。
Created by the firm Jean Lessard, creative designers, the Uniprix pharmacy located in Quartier DIX30, on the outskirts of Montreal, stands out from the usual design of this type of superstore because it challenges accepted notions.



广告宣传正在加强家庭药师的亲密形象。不过,以激进实验著称的Jean de Lessard坚持认为,必须要有示范。"我们希望这个空间能反映出这个职业的人性一面,它成为一个充满同情心的地方,简单而集体,朴实无华,让药剂师更容易接近并被病人看到。"
Advertising campaigns are enhancing the image of closeness of the family pharmacist. Still, insists Jean de Lessard, who is known for his radical experimentations, it must be demonstrated: “We wanted the space to reflect the human side of the profession, that it becomes an empathetic place, simple and collective, unpretentious, allowing the pharmacists to be more accessible and be seen by their patients.”

为了提高行为的社会性,设计师因此选择将实验室作为焦点,进而成为邻里之间社交的场所。
To heighten the social dimension of the act, the designer thus chose to make of the laboratory the focal point, and consequently, a place for socializing amongst neighbours.

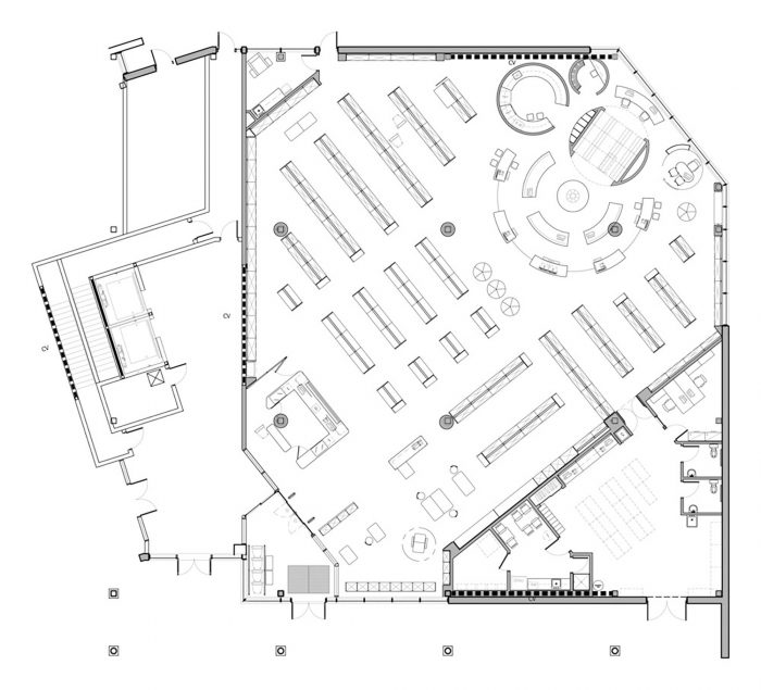
圆融中的和谐。该设计受到了一些风水[1]原则的调控,比如组织空间以促进能量流的顺畅循环(Ch'i)。实验室由一组圆形组成,人们可以围绕着这些圆形走动,其中包括裁判员的药侧室和药师最喜欢的人体工学药箱,她觉得这个药箱有一种复古的感觉;还有一个储藏室和一个圆形玻璃气锁外观的办公室,有一个推拉门,用于私人咨询。
Harmony in roundness: The design was modulated by some feng shui[1]principles, such as organizing the space to promote a smooth circulation of the energy flow (Ch’i). The laboratory consists of a grouping of circles around which one can walk, including a magistral medicine side room and the pharmacist’s favorite, an ergonomic pillbox, which she finds has a retro look; there is also a storage room and a circular glass air-lock looking office with a sliding door, for private consultations.

对于Ch'i的激活,根据风水学,光线是关键。实验室位于北面,柔和的自然光从大窗户射入。在这个位置使用蓝色和钢铁的颜色也是吉祥的,因为在风水学上,北方与水和金属元素有关。此外,光在药箱的抛光钢材上的反射,柔和了一个体积如此巨大的视觉冲击。黄颜色的布艺覆盖在裁判所药侧室的墙面上,给外观较冷的实验区带来平衡。
For Ch’i activation, light is key according to feng shui. The laboratory is positioned in the north part where soft natural light comes in from large windows. The use at this spot of the colour blue and steel is auspicious too, the north being associated in feng shui to the water and metal elements. In addition, the reflection of light on the polished steel of the pillbox softens the visual impact of a volume with such an impressive mass. The yellow-colored fabric that covers the wall of the magistral medicine side room brings balance to the laboratory area colder in appearance.

家具的摆放绝非偶然:高大的家具摆放在外围,低矮的单元为实验室和药剂师提供了畅通无阻的视线。
Placement of the furniture is far from accidental: high furniture positioned at the periphery and low-profile units offer an unobstructed line of view of the laboratory and the pharmacists.

阴阳的循环性。简化空间和产品的阅读量,再加上优化商品销售因素,花了几个月的时间研究、容积研究和讨论。这些方面都源于药师和设计师的愿望,希望在简单的时尚中,打造一个色彩丰富、精致的地方。Kieu Truong认为,可以像她一样,让横幅人性化,提高客户体验。
Circularity of the yin and the yang: Simplifying the reading of the space and the products plus optimizing the merchandising factor took months of research, volumetric studies and discussions. These aspects stem from the pharmacist and the designer’s wish for a colorful and refined place, in a simple fashion. Kieu Truong believes that it is possible for banners to humanize their store as she did to improve the customer experience.

自建设以来,业内人士对该空间的兴趣确实可想而知。"我发现有几个(竞争对手)暗地里想拍照! 我让他们来这里参观",Kieu Truong不无自豪地补充道。集团的几个重要活动已经在她的药店举行,客流量比预期的要高一些。
Since construction, the interest for the space in the industry is truly palpable. “I’ve found a few [competitors] covertly trying to take pictures! I have them visit the place”, adds an amused, not without pride, Kieu Truong. Several important events of the Group have already been held in her pharmacy and traffic is a bit higher than expected.

如 "在空间中精心摆放的物品",用Jean de Lessard的话说,定制的展示家具带来了生动的音符。在表面上简单的形式背后,由橱柜制造商Héritage打造的货架和柜台确实带来了许多技术上的挑战,需要进行深入研究。此外,着色准备工作需要经过严格的取样过程,直到为每种颜色找到合适的色调。"那些柔和的色彩与Kieu Truong的个性完美平衡,是一个真正的能量球! 这些颜色与她活泼的个性起到了温和的对立作用,阴阳交错。"设计师评论道。
Such as "objects carefully arranged in space," in Jean de Lessard’s words, the custom display furniture brings a lively note. Behind their apparent simplicity of form, the shelves and counters built by cabinet-maker Héritage did present many technical challenges themselves subject to intensive research. Further, colouring preparation called for a rigorous sampling process, until the proper shade for each colour was achieved. "Those pastel colours are a perfect balance to Kieu Truong’s personality, a true ball of energy! The colour acts as a gentle counterpoint to her vivacious personality, interplaying with the yin and the yang," comments the designer.

实验区周围没有产品,这一点初时可能会让人惊讶,但杂乱无章是要避免的。"原因是我们有意识地想把药师的职业行为中的商业方面解离出来。倾听、专业性和人性的温暖胜过产品",Jean de Lessard如是总结。流动性和开放性的特点使其保持了自然的亮度,干净的墙面上没有任何广告材料,使空间更加和谐。
That there are no products around the laboratory area may surprise at first, but clutter is to be avoided. “The reason is that we consciously wanted to dissociate the mercantile aspect of the professional act of the pharmacist. Listening, professionalism and human warmth prevail over product”, says Jean de Lessard, as he concludes. Conveying fluidity and openness to preserve the natural brightness, the immaculate walls are, moreover, devoid of any advertising materials, leaving the space to harmony.

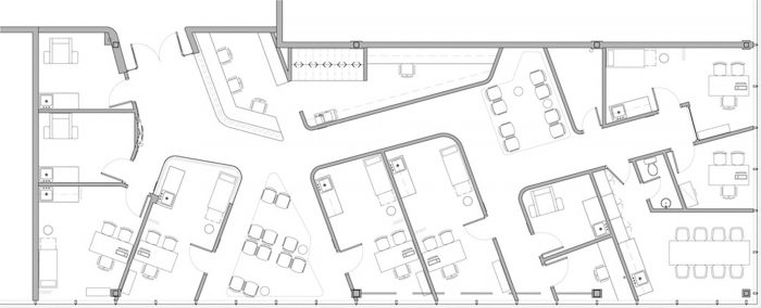
Jean de Lessard还设计了亚历山大医学中心,该中心也是药剂师所有。他试图用同样的清晰和简洁的精神来激发这个位于一楼的诊所的活力,选择相似的体量和材料来保持连续性。运动感和圆形的墙面以一种非攻击性的方式为这个地方注入活力。圆形的方案被用于家具,就像药房里使用的一样。
Jean de Lessard also designed the Centre Médical Alexandre, owned too by the pharmacist. He sought to animate this clinic located on the first floor with the same spirit of clarity and simplicity, selecting similar volumes and materials for continuity. A sense of movement and the rounded walls energize the place in a non-aggressive manner. The round scheme is used for furniture, just as it was used in the pharmacy.

南部候诊室的木条天花板是另一个吉祥的建筑细节。木头带来了结构、温暖和明亮,却不会压迫到Ch'i。在风水学上,南面部分得益于木元素的强势存在,进而对空间中所有在场的人都有利。
The wooden slats ceiling of the waiting room in the south part is another auspicious architectural detail. Wood brings structure, warmth and brightness without oppressing the Ch’i. In feng shui, the south part benefits from the strong presence of the wood element and is, by extension, beneficial to all of those present in the space.



建筑师:Jean de Lessard Designers Créatifs
面积:10900平方英尺
年份:2015年
摄影:Adrien Williams
制造商:Au Courant Lighting, Equipement Boni
总承包商:Construction Mikado
设计师:Jean de Lessard
项目经理:Alexa Adam, Teresa Botello
城市 : 蒙特利尔
国家:加拿大
Architects: Jean de Lessard Designers Créatifs
Area: 10900 ft²
Year: 2015
Photographs: Adrien Williams
Manufacturers: Au Courant Lighting, Equipement Boni
General Contractor: Construction Mikado
Designer:Jean de Lessard
Project Manager:Alexa Adam, Teresa Botello
City:Montreal
Country:Canada