UNTITLED产生于一个大型钢筋混凝土结构的想法,它能够同时叠加房屋的空间逻辑和由重力强加的抵抗结构。它是一个单家独户的房子,单层楼板由肋骨板界定,允许人们面对使用的灵活性和不同的长期拨款。
UNTITLED arose from the idea of a large reinforced concrete structure capable of simultaneously superimposing the spatial logic of the house together with the resistant structure imposed by gravity. It is a single-family house with a single floor defined by a ribbed slab that allows one to face flexibility of uses and different long-term appropriations.




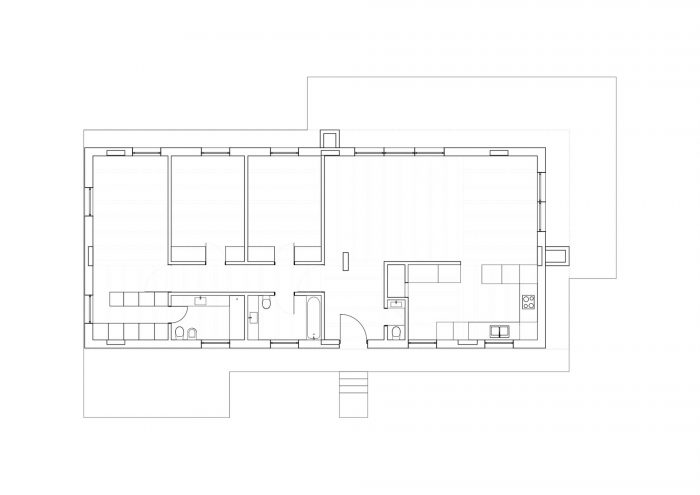
主要的结构顺序是由在纵向和横向上表现力极强的梁组成的,这些梁标志着房子的松散定义的空间。每个空间都由一组次要的梁来定义,这些次要的梁总是按照最小的跨度来组织。这些梁的厚度为11厘米,它们之间的空间很小,它们定义了每个空间的特征,并将屋顶板减少到一个压缩的叶片,厚度为8厘米。从建筑和功能的角度来看,屋顶和天花板的板块实现了整个结构功能,不仅在机械意义上,而且同时在其空间组成部分上。
The main structural order is composed of beams of great expression in the longitudinal and transversal directions that mark loosely defined spaces of the house. Each of these spaces is defined by a set of secondary beams that are always organized according to the smallest span. These beams are eleven centimeters thick and with little spaces in-between them, and they define the character of each space and reduce the roof slab to a compression blade, with a thickness of eight centimeters. The roof and ceiling slab fulfills a whole structural function, not only in a mechanical sense but simultaneously in its spatial components, from an architectural and functional perspective.




这个大的屋顶结构仅由九个元素支撑,排列在房子的外周,除了一个单一的支柱,它出现在居住空间的中间,以一个倒置的位置,赋予它一个象征性的特征。这个元素标志着房子的入口,并提出了私人空间和公共区域之间的区别。为了创造明确的空间和房屋的外周长,在混凝土结构中插入了第二层绝缘砖。
This large roof structure is supported only by nine elements, arranged on the exterior perimeter of the house, with the exception of a single pillar, that appears in the middle of the living space, in an inverted position that gives it a symbolic character. This element marks the entrance to the house and proposes a distinction between private spaces and common areas. To create defined spaces and the exterior perimeter of the house a secondary layer of insulated bricks is inserted within the concrete structure.



该项目由少量的元素组成,其中有明确的指导方针,重复和寻找例外的时刻。同样的情况也发生在外部开口上,它被简化为一个单一的元素,在整个房子里重复出现,而不考虑内部用途,然而,它们并排出现在公共区域,寻求与花园的更大关系。在厨房区域,节奏也被一个圆形开口打断,它在西立面定义了一个新的构图,并与周围的户外区域建立了视觉联系。
The project is composed of a small number of elements where there are clear guidelines that are repeated and look for moments of exception. The same happens with the exterior openings, which are reduced to a single element that is repeated throughout the house regardless of the interior uses, however, they appear side by side in the common areas that seek a greater relationship with the garden. In the kitchen area, the rhythm is also interrupted by the presence of a circular opening that defines a new composition in the west elevation and establishes a visual connection with the surrounding outdoor area.

材料本身表达了它们的自然状态,正是在这种背景下,它们寻求彼此之间的对话。混凝土以其原始状态出现,通过原始的松木混凝土百叶窗(模板),而木材在室内家具和框架开口处都表达了其自然的颜色和纹理。在外墙上,使用了颜料石灰,颜色偏红,表面光滑,色调随自然光的变化而变化,与原始和纹理的混凝土形成了对比。混凝土结构作为主要的和永久的,而石灰砖墙作为次要的和可修改的结构,其意义被强调了。
The materials themselves express their natural condition and it is in this context that they seek a dialogue with each other. The concrete appears in its primitive state, through the raw pine concrete shuttering (formwork) while the wood expresses its natural color and texture both in the interior furniture and in the frame openings. On the external walls, pigmented lime was used, with a reddish color and a smooth finish, which varies in tone depending on the natural light and creates a contrast with the raw and textured concrete. The meaning of the concrete structure as a primary and permanent and of the limed brick walls as a secondary and modifiable structure is underlined.

在外面有三个从屋顶延伸出来的体量,屋顶灯向上延伸,使光线能够进入房屋内部,在南面和东面有两个巨大的混凝土元件,向下延伸,负责收集屋顶的水。
On the outside there are three volumes that extend from the roof level, the roof lights extend upwards and enable light to be fed to the interior of the house, and two massive concrete elements on the south and east facades, that extend downwards, which are responsible for collecting the water from the roof.









Architects: Atelier JQTS
Year : 2021
Photographs :Diana Quintela
Project Team : João Quintela, Tim Simon
Collaborators : Joana Jordão
Structural Engineering : Daniel Maio
Consultants : José Clemente, Coreprojects
City : Cascais
Country : Portugal