UPHouse是一个植入物的尾巴,将一个具有亲密规模的空间引入另一个空间,在一个家庭图中,它是暴露的和社会的。该项目通过安装一个轻钢结构和一个允许进入新的上层的楼梯,使公寓的面积增加了50%。为了支持这层楼,六个框架将稳定和分配重量,位于平行于墙壁的位置,围绕着房子的中央和唯一的封闭房间--洗手间。
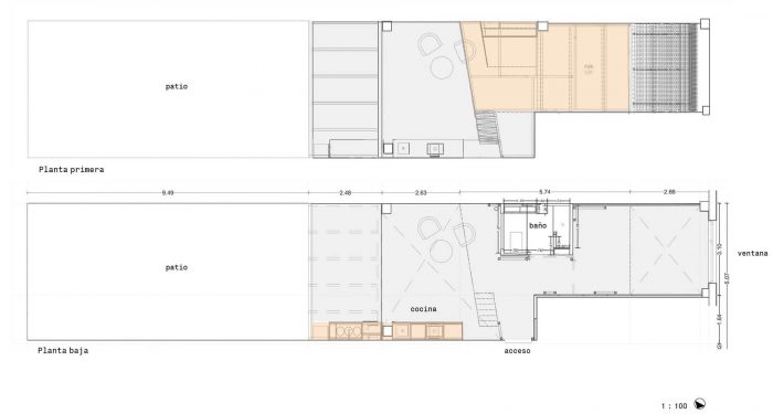
UPHouse is the tail of an implant, the introduction of a space of intimate scale into another space, which, within a domestic diagram, is exposed and social. The project adds 50% more area to the apartment by installing a light steel structure and a staircase that allows access to the new upper floor. To support this floor, six frames that would stabilize and distribute the weight, are located parallel to the walls and surrounding the central and only closed room of the house, the restroom.





新的楼层建在公寓的这个中心房间的顶部,在它的每一侧留下两个双层高度的空间。一个更大的公共空间在东侧,一个更小的私人空间在西侧。新的上层将公寓划分为两个空间,一个是私人空间,一个是公共功能。这两个空间的材料选择反映了这种双重性。一方面,在私人的拱形区域,墙壁和门都用回收的胶合板(来自旧的电子设备容器)覆盖。另一方面,白色的墙壁反射来自天井的光线,使厨房、客厅和娱乐空间充满了光线。材料的使用被最小化,避免了不必要的装饰。
The new level is built on top of this central room of the apartment, leaving two double-height spaces in each side of it. One bigger and public in the east side and a smaller and more private one in the west side. The new upper floor divides the apartment into two spaces, a private and a public function. The choice of materials for these two spaces reflects this duality. On one hand, in the private vaulted area the walls and doors are covered with recycled plywood (from old electronic equipment containers). On the other hand, white walls reflect light from the patio to fill the kitchen, living room and recreational space with light. The use of materials is minimized, avoiding unnecessary finishes.



公寓的公共区域,包括厨房,有一个开放的平面图。这个灵活的空间通向一个朝东的小天井,获得晨光。与许多地面公寓一样,光线不足是该提案的关键之一。为了在新的上层最大限度地利用自然光,在私人一侧建造了一个镜面的木拱顶。自然光被反射和倍增,产生了巨大的视觉效果。
The public area of the apartment, which includes the kitchen, has an open floor plan. This flexible space opens to a small east-oriented patio that gets morning light. As many ground-level apartments, the lack of light is one of the keystones of the proposal. In order to maximise natural light in the new upper level, a mirror-faced wood vault is built in the private side. Natural light is reflected and multiplied with a great visual effect.







Architects: cumuloLimbo studio
Area: 90 m²
Year: 2018
Photographs: Javier de Paz García
Lead Architect: Natalia Matesanz Ventura
Client:Ladicarsa Instalaciones s.l.
Builder:Peña&Ledesma Obras
Locksmith: Luis Hernández
City:Madrid
Country:Spain