绿洲就像一个海市蜃楼。生命和自然在干旱的沙漠中显现出来。这就是灵感,是开始一切的概念。中东贸易大篷车的现实与当代生活的现实相联系。如果在那个背景下,人们在恶劣的沙漠中寻找水、食物和休息,那么我们在匆忙而短暂的日常生活中寻求放松、断开联系和与自然接触。这就是 "城市绿洲 "的诞生,一个在CASACOR Minas 2022年展出的环境。
An oasis is like a mirage. Life and nature manifest in the midst of the aridity of the desert. This was the inspiration, the concept that started everything. The reality of the great Middle East trade caravans is connected to the reality of contemporary life. If in that context people searched for water, food, and rest in the hostile desert, we seek relaxation, disconnection, and contact with nature in the midst of a hurried and fleeting daily life. That is how the Urban Oasis came to life, an environment presented at CASACOR Minas 2022.




这个环境是在地面上建造的,与曼加贝拉斯宫的景观完全相连,它揭示了在一个大都市的腹地找到一个田园诗般的平衡避难所是可能的。顺便说一下,平衡是我们的座右铭。这句话被Borbo灯的轻盈所体现,这些灯都是建筑师签名的作品,被特意安装成一件艺术作品。像一团蝴蝶飞向森林。它是黑色和白色之间的完美平衡,这种对比标志着空间的轻盈特性,并加强了我们办公室的身份。
Built on the ground in full connection with the landscaping of the Palácio das Mangabeiras, the environment reveals that it is possible to find an idyllic and balanced refuge in the bowels of a large metropolis. Balance, by the way, is the motto. It is the word that is materialized by the lightness of the Borbo lamps, pieces signed by the architect, which were purposely installed as a work of art. Like a cloud of butterflies flying toward the forest. It is the perfect balance between black and white, a contrast that marks a light character for the space and reinforces the identity of our office.



这是图利奥-平托的艺术作品所体现的力量,它引发了对石头的粗暴和玻璃的脆弱之间的矛盾的思考。它是沙漠的隐喻,巧妙地呈现在参数化建筑的墙上,模仿沙丘。
It is the force manifested by Túlio Pinto's work of art, that provokes a reflection on the paradox between the brutality of stone and the fragility of glass. It is the desert metaphor that is subtly presented on the wall in parametric architecture and emulates sand dunes.


它是技术的微妙存在,是为与自然和自身的更深联系服务的。这里没有放电视的空间。这里有一个邀请,让你在阅读一本好书时把脚浸泡在水中。 当每个观众在安装在树木中间的镜面立方体中抓住自己时,他们会有一种漂浮的感觉。每个人都有可能在这个特别的无限中看到自己。仿佛它是一个海市蜃楼...
It is the subtle presence of technology that is at the service of a deeper connection with nature and with itself. There is no space for a television. There is an invitation to dip your feet in the water while reading a good book. It is the sensation of floating that each spectator has when they catch themselves in the mirrored cube installed in the middle of the trees. The possibility of each one seeing themselves in this Particular Infinity. As if it were a mirage…

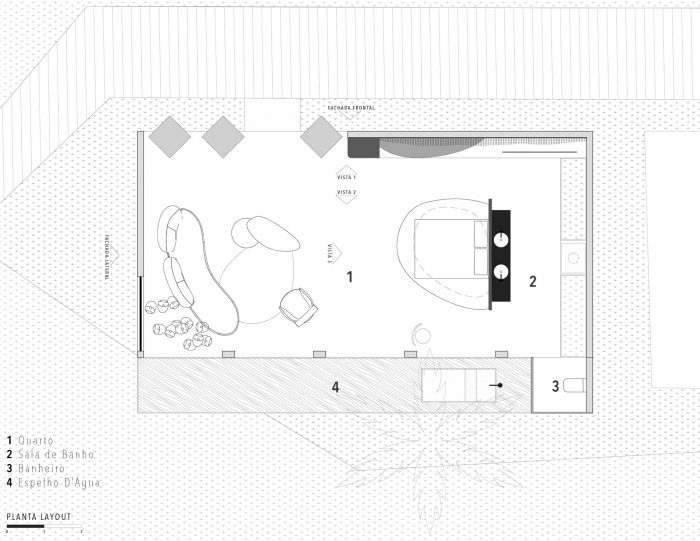
为了创造一个向自然开放的沉思空间,我们试图在空间中使用最少的必要元素和家具。注重使用的颜色和材料之间的对比,从外面看到一个混凝土块,并进入一个平静的空间。在项目布局的发展中,确定了床、水镜和浴缸的位置,这样就有了空间与外界的联系,使人们的注意力集中在连接和反映的景观上。
To create a contemplation space opening up to nature, we try to use the minimum necessary elements and furniture in the space. Focusing on the contrasts between the colors and materials used, seeing a concrete block from the outside, and entering a space of calm. In the development of the project layout, the position of the bed, water mirror, and bathtub was defined so that there is the connection of the space with the outside and so that the focus is on the landscape that connects and is reflected.


















Architects: Natan Gil Arquitetura
Area : 100 m²
Year : 2022
Photographs :NY 18
Manufacturers : Botteh, CMC Modular, Castelatto, Dacapo, Deca, Esense, Infinito Vidros, MFerrari, Marcela Bartolomeo, Portinari, RP MARMORES, Templuz, Tom sobre tom, Trousseau
Lead Architect : Natan Gil
Creative Team : Lívia Gonçalves, Vinicius Pinheiro.
Landscape : Ana Campos, Katflores
Finishes : Bonatto Acabamentos
Engineering : Rocca Engenharia
City : Belo Horizonte
Country : Brazil