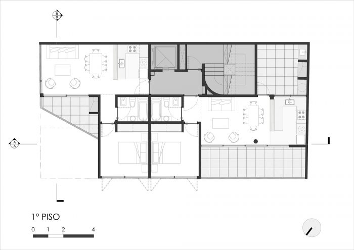
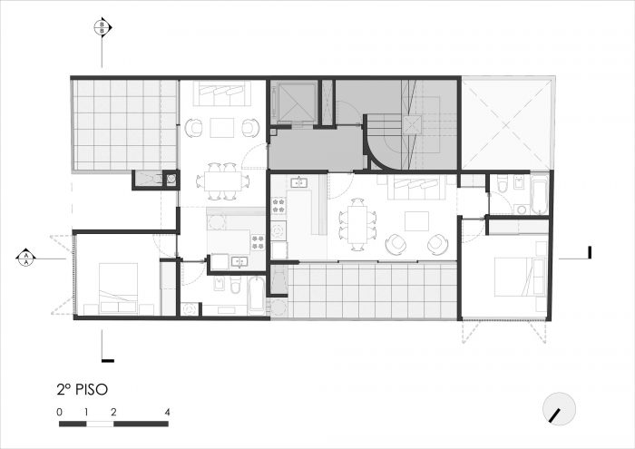
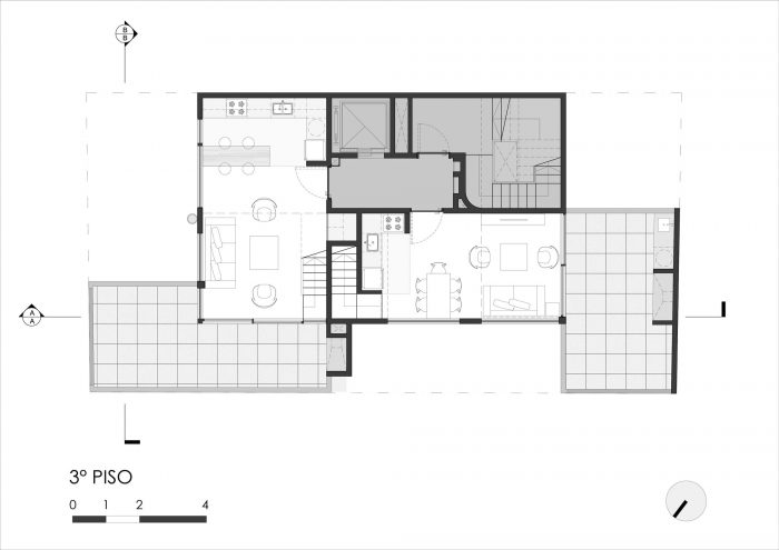
城市风格2是一栋四层楼的住房建筑,有六套两室公寓,位于乌尔基萨别墅。
由于新的 "多纳多-霍尔姆贝格 "线性公园的发展,布宜诺斯艾利斯的这个住宅区目前正处于转型和发展的过程中。
Urban Style 2 is a four-story housing building with six two-room apartments located in Villa Urquiza.
This residential district of Buenos Aires is now in a process of transformation and growth due to the development of the new "Donado-Holmberg" Linear Park.



角落建筑体量的 "非物质化 "是通过一系列的设计操作来完成的,这些设计操作响应了R2B1分区的限制,主要归因于这种类型的地块,将其纳入并用于其设计。该建筑通过引入一系列不计入TOF(总占用系数)的室外区域,为房间提供景观和自然采光,从而达到其最大高度。因此,整个可建区域都可以用于设计公寓。
The ‘dematerialization’ of the corner-building’s volumetry is accomplished through a series of design operations that respond to the restrictions of the R2B1 zoning, mainly attributed to this type of plots, by incorporating them and using them for its design. The building manages to reach its maximum height by introducing a series of outdoor areas that do not compute for TOF (Total Occupancy Factor) and provide views and natural lighting to the rooms. As a result, the entire buildable area is available to be used for the design of the apartments.



为了实现这一目标,在第一层引入了 "L型 "住房类型,当它们组合、堆叠和镜像时,它们产生了一系列的外部空间,供各单元使用。
In order to achieve this, “L- shaped’ housing typologies are introduced in the first levels, which when combined, stacked and mirrored, they generate a series of exterior spaces that are used by the units.



在上层,复式单元由双层高的空间连接。除此之外,2米的回缩释放了空气空间,在空间上连接了建筑的露台。
一个令人印象深刻的 "混凝土盒子 "在拐角处飞起4米高,强调了建筑的入口,通过在底层的回缩获得其最终形状。
On the upper levels, the duplex units are connected by double-high space. In addition to this, a 2 meter retraction frees up the airspace and spatially connects the terraces of the building.
An impressive ‘concrete box’ flies 4 meters over the corner emphasizing the entrance to the building that acquires its final shape by retreating itself on the ground floor.


关于外墙,其设计使用了三种基本材料:混凝土、木材和玻璃。
混凝土墙,结合了质朴和光滑的纹理,不仅满足了审美功能,还解决了建筑的大部分结构。
Regarding the façade, three essential materials are used for its design: concrete, wood and glass.
The concrete walls, that combine rustic and smooth textures, not only fulfill an esthetic function but also solve most of the structure of the building.


除此之外,一系列可折叠的木质遮阳板为卧室提供了过滤的自然光和隐私。
在底层,这种设计策略在车库门上得到了重现。
In addition to this, a series of folding wooden sunshade panels provide filtered natural light and privacy to the bedrooms.
At the ground floor, this design strategy is replayed on the garage gates.

室内/室外的限制被大型 "落地 "滑动玻璃板的使用所淡化,它将客厅区域与10平方米至20平方米的露台连接起来。
The interior/exterior limits are diluted by the use of large ‘floor-to-ceiling’ sliding glass panels, which connect the living room areas with the 10 sqm to 20 sqm terraces.

这些户外空间也与树顶相关,创造了一种沉浸式的自然体验。玻璃栏杆,从内部几乎无法察觉,将树顶反射到街道上。
These outdoor spaces also relate to the treetops, creating an immersive natural experience. The glass railings, almost imperceptible from the inside, reflect the treetops onto the street.

室内通过创造宽阔的中性空间,保留了材料的综合性,通过使用白色的墙壁和厨柜,以及浅色的木质地板,使自然光突出,与混凝土天花板和墙壁形成对比。
The interiors preserve the material synthesis by creating wide and neutral spaces, where natural light stands out by the use of white walls and kitchen cabinets, and the light wood floors, in contrast to the concrete ceilings and walls.



















Architects: F2M Arquitectos
Area : 6997 ft²
Year : 2019
Photographs :Fernando Schapochnik
Manufacturers : AutoDesk, ACT 3D, Domec, Godoy Vidrios, Horcrisa, Jms Amoblamientos, Longvie, Navarro Ache, Oblak, Sole Portones
Lead Architects : Hernán Feldmann, Néstor Feldmann
Engineering : José Zaldúa
City : Villa Urquiza
Country : Argentina