UTA的办公室已经超出了他们以前的空间,他们将纳什维尔的办公室搬迁到了一个新的活化的历史办公大楼,这将使他们能够创造一个新的环境来表达他们的文化和客户群。该办公室由屡获殊荣的HASTINGS建筑公司设计,该公司将中世纪的前纳什维尔公共图书馆改造成一个精致而现代的总部。对这个中世纪新形式主义地标的适应性再利用,保留并整合了原有图书馆的元素--为UTA所代表的一系列艺术家和创意人提供了一个永恒的背景。
Having outgrown their former space, UTA relocated their Nashville office to a newly revitalized historic office building that would allow them to create a new environment expressive of their culture and clientele. The office was designed by award-winning firm HASTINGS Architecture who transformed the mid-century former Nashville Public Library into a sophisticated and contemporary headquarters. The adaptive reuse of this mid-century New-Formalist landmark preserves and integrates elements of the original library—a timeless backdrop for the range of artists and creatives UTA represents.



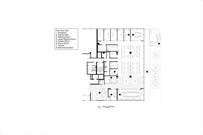
UTA新的15,000平方英尺的多层空间包括22个私人办公室、36个工作站、会议室、电话室、健康室、屋顶平台、夹层咖啡馆和各种休息室。作为一个 "人才画廊",这个白盒子空间被专门设计来展示UTA所代表的一系列艺术家、创意人和艺人。该设计引入了较暗的色调、纹理和材料,为环境注入了微妙的边缘和灵魂。
UTA’s new 15,000 square-foot, multi-level space includes 22 private offices, 36 workstations, meeting rooms, phone rooms, a wellness room, rooftop deck, mezzanine café, and various lounges. Envisioned as a “gallery of talent,” the white box space is specifically designed to showcase the range of artists, creatives, and entertainers UTA represents. The design introduces accents of darker tones, textures, and materials that infuse the environment with subtle touches of edge and soul.



迎接客人的是一个定制的、染成黑色的橡木接待台,其灵感来自于聆听时堆叠的黑胶唱片在地板上滑动的动作。相比之下,白色背漆的垂直玻璃板为更深色、更具雕塑感的办公桌提供了一个优雅的背景。参观者在舒适的休闲家具上放松,这些家具选择了舒缓的中性色调,并以大型的当代艺术作为点缀,等待着他们的光临。
Guests are greeted with a custom, black-stained oak reception desk inspired by the movement of stacked vinyl records sliding across the floor during a listening session. In contrast, white back-painted vertical glass panels provide an elegant backdrop to the darker, more sculptural desk. Visitors relax on comfortable lounge furniture chosen in a soothing neutral palette and accented with large-scale contemporary art as they wait to be seen.


在一楼,定制的黑色染色 "画框 "木制品围绕着玻璃系统--这是对舞台前景的赞美。最大的会议室位于一楼的东北角。黑色染色的Halcon桌子的椭圆形状模仿了16英寸大理石包覆的拱形窗户的曲线形状。一个类似于声波的Vibia灯具成为桌子上方的焦点。声学石膏天花板和棱纹墙面为数字演示和虚拟会议提供了声学隐私。
On the first floor, custom black-stained “picture frame” millwork surrounds the glass system—a nod to the stage proscenium. The largest meeting room anchors the northeast corner of the first floor. The elliptical shape of the black-stained Halcon table mimics the curvilinear form of the 16’ marble-clad arched windows. An articulated Vibia light fixture resembling sound waves serves as a focal point above the table. Acoustical gypsum ceilings and ribbed wallcovering provide acoustical privacy for digital presentations and virtual conferences.



一个中央休息室为一楼的会议室提供了前期功能空间。木质地板和定制地毯与中世纪灵感的木制品相得益彰,铜制架子的细节和放大器的灵感柜子都配有黑色网状织物。代理人办公室是业务的骨干,尺寸过大,以支持舒适和位置良好的客人座位。定制的Teknion坐式办公桌采用了橡木饰面,并配有浮动架,以展示个人和职业纪念品。
A central lounge provides pre-function space for the first-floor meeting rooms. Wood flooring with custom rugs complements the mid-century inspired millwork with brass-fitted shelving details and amplifier-inspired cabinets complete with black mesh fabric. Agent offices, the backbone of the business, are oversized to support comfortable and well-positioned guest seating. The custom Teknion sit-stand desks are clad in an oak veneer and framed with floating shelves to display personal and professional mementos.


夹层利用了一楼19英尺高的天花板,为员工提供了一个午餐、庆祝和观看颁奖晚会的空间。代理人办公室、保健室和电话室都藏在下面,充分利用了空隙空间。一个巨大的橡木楼梯是通往夹层的主要流通点,其位置是鼓励员工尽可能地走楼梯。
The mezzanine takes advantage of the 19-foot-high ceilings of the first floor, offering employees a space to gather for lunches, celebrations, and awards show watch parties. Agent offices, a wellness room, and phone rooms are tucked underneath making the most of the void space. A monumental oak stair acts as the main circulation point up to the mezzanine—positioned to encourage employees to take the stairs whenever possible.


二楼和顶楼的办公室可以看到纳什维尔市中心和州议会大厦的全景。开放式办公室顶楼区域的正对面是一个新的屋顶平台,配备了休闲家具、咖啡桌和垂直景观,为UTA提供了户外派对和活动的空间,同时也为员工提供了户外工作空间和亲水设计。
Offices on the second floor and penthouse levels feature sweeping views of downtown Nashville and the State Capitol. Directly off the open office penthouse area is a new rooftop deck, complete with lounge furniture, café tables, and vertical landscaping, providing UTA with space for outdoor parties and events as well as giving employees access to outdoor working spaces and biophilic design.










Architects: HASTINGS Architecture
Area : 15000 ft²
Year : 2021
Photographs :Eric Laignel
Manufacturers : Vibia, Clarus, Davis Furniture, MIRAGE, Teknion
Project Management : JLL
Principal In Charge : William Hastings
Associate : Aaron Petersen
Client : UTA
Furniture Dealer : Ai Corporate Interiors
City : Nashville
Country : United States