V宅是对60年代末设计和建造的现有房屋的改造和扩建。
V house is a renovation and extension of a existing house designed and builted in the late sixties.



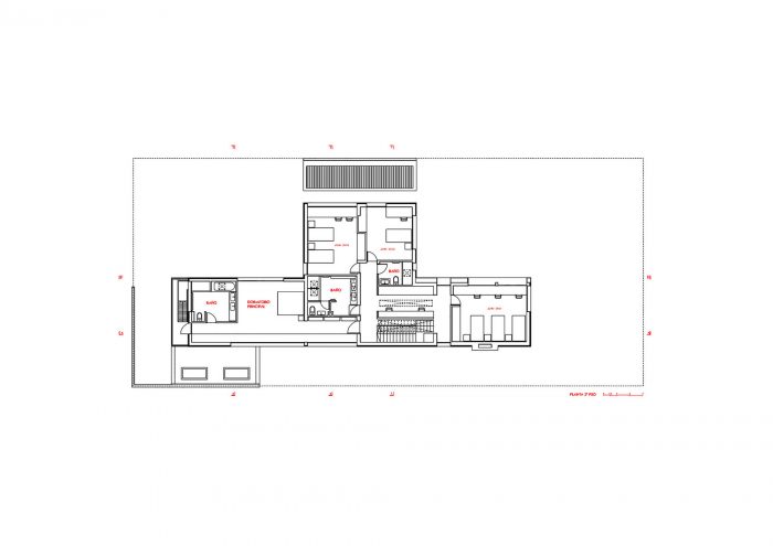
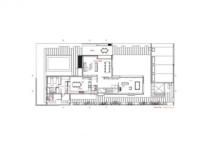
原先的房子是一个两层的建筑,有倾斜的屋顶,包括底层的公共空间和服务,一楼的卧室。改造包括拆除所有原来的屋顶,拆除底层的非结构性墙体,扩建,重新配置,并在一个更大的表面重新做同样的程序。
Originally the house consisted in a two levels building, with inclinated roofs, that included public spaces and services on the ground floor and bedrooms in the first floor. The renovation consisted in remove all the original roofs, demolish non structurals walls of the ground floor, extend this and reconfigurate and redo newly the same program in a bigger surface.


二楼也被扩展,包含卧室。
此外,我们创建了一个屋顶平台,可以从内部和外部进入,以便在屋顶上有一个延伸的院子,就像日光浴室和周围地区的阳台,改善了房子的绝缘性。在这一层,我们还设置了太阳能电池板,为房屋和游泳池提供加热水。
The second floor was extended also and contains the bedrooms.
Besides we create a roof terrace with access from the interior and exterior in order to have an extension of the yard on the roof serving like solarium and balcony of the surrounding area improving the insulation of the house. In this level we locate also solar panels contributing with the heating water of the house and the pool.


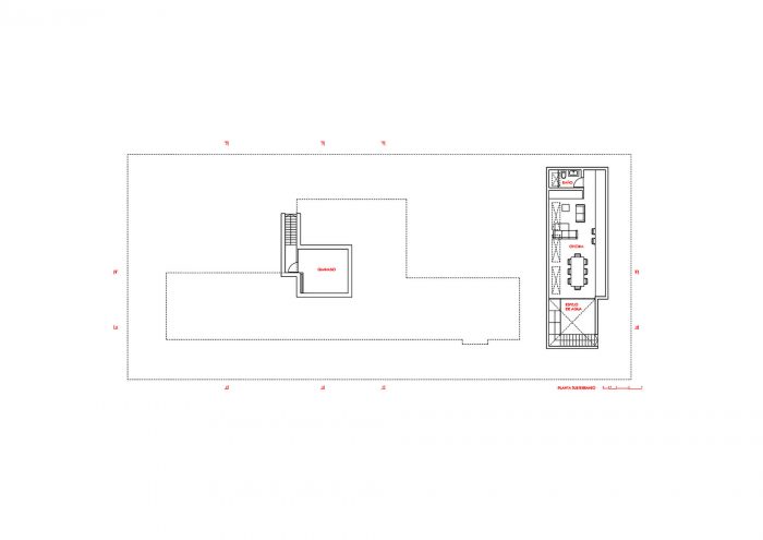
在停车场下面,我们在原来的锅炉房里设置了一个工作场所和一个健身房。
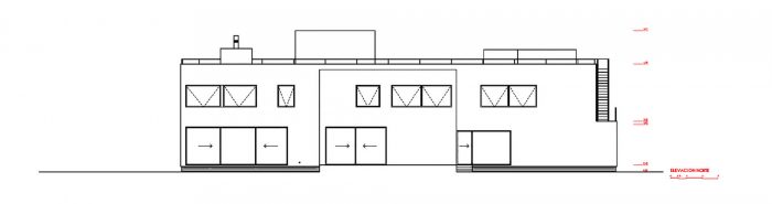
房子的材料是在新墙和内部的板块中混合使用混凝土,在所有的房子中使用石灰华铺设,在所有的外墙中使用皮质钢和铝锌护壁,以增加房子的绝缘性。
Under the parking we incorporate a place of work and a gym in what was formerly the boiler room.
The materiality of the house is a mix of concrete in the new walls and in the slab of the interior, travertine pavement in all the house and corten steel and aluzinc revetment for the exteriors in all the facades that are ventilated in order to increase the insulation of the house.

















Architects: Mathias Klotz
Area : 480 m²
Year : 2011
Photographs :Nico Saieh
Manufacturers : Hunter Douglas
Construction : Estructuras Cordillera
Architect Collaborator : Héctor Hormazábal
Structure : Patricio Stagno
Landscape : Francisca Saelzer
City : Las Condes
Country : Chile