Vaccinopolis于2022年3月25日星期五开业。针对各种病原体的疫苗将在位于Campus Drie Eiken的独特的疫苗研究中心进行测试和改进,以加速对新的和现有疾病的斗争。推动者皮埃尔-范达姆(UAntwerp)说:"通过Vaccinopolis,我们把我们的国家放在地图上"。疫苗开发是当今全球最大的挑战之一。疫苗学家皮埃尔-范-达姆教授(UAntwerp)解释说:"科罗纳在事实方面对我们施加了很大的压力"。"但这种意识已经存在了很长时间。
Vaccinopolis opened its doors on Friday 25 March 2022. Vaccines against all kinds of pathogens will be tested and improved in the unique vaccine research center on Campus Drie Eiken, accelerating the fight against new and existing diseases. “With Vaccinopolis we put our country on the map”, says driving force Pierre Van Damme (UAntwerp). Vaccine development is one of the greatest global challenges today. “Corona has pushed us very hard on the facts,” explains vaccinologist Prof. Pierre Van Damme (UAntwerp). “But the awareness has been there for a long time.




气候在变化,人们生活在一起,我们的旅行越来越多,而且我们越来越老:所有的演变都有助于病毒更快、更广泛的传播"。安特卫普大学与其合作伙伴一起,正在开发一个大流行病管理的创新生态系统。Vaccinopolis是该生态系统的一个重要基石。候选疫苗将在该中心针对许多传染病进行测试,如RSV、登革热或百日咳。它还将调查,例如,已知的流感疫苗如何能够被改进。
The climate is changing, people are living closer together, we are traveling more and more and we are getting older: all evolutions that contribute to a faster and broader spread of viruses.” Together with its partners, the University of Antwerp is developing an innovative ecosystem in pandemic management. Vaccinopolis is an important cornerstone in that ecosystem. Candidate vaccines will be tested at the center against numerous infectious diseases, such as RSV, dengue, or whooping cough. It will also be investigated how, for example, the known flu vaccines can be improved.




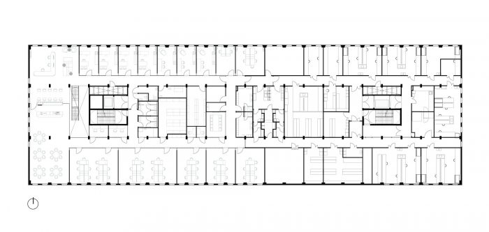
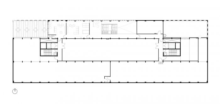
Vaccinopolis正被开发为一个独特的、学术性的一期CHIM试点单位,用于测试新疫苗。临床研究单元(临床试验单元,CTU)和实验室是这里的两个关键功能,辅以必要的后勤、操作和行政功能。该设计将该项目从公共的到私人的纵向组织起来。从相对繁忙到安静。在地面上,从Drie Eikenstraat街可以看到,入口和公共会议功能位于建筑的东侧。
Vaccinopolis is being developed as a unique, academic phase one CHIM pilot unit for testing new vaccines. The clinical study unit (Clinical Trial Unit, CTU) and the laboratory are the two key functions here, supplemented by the necessary logistical, operational, and administrative functions. The design organizes the program vertically from public to private. From relatively busy to quiet. At ground level, visible from Drie Eikenstraat, the entrance and public meeting functions are located on the east side of the building.

西侧包含一个封闭的体积,有所有的物流功能,BSL3实验室的技术空间,应急电源,以及气体、电力等的连接。汽车和自行车的停车位位于这两个区域之间。一楼是工作人员的办公室,以及BSL2和BSL3实验室。CTU第二部分(房间)和CTU第一部分的一部分(日间房间)位于二楼。最后,三楼一方面为CTU第一部分的客厅和屋顶露台提供了空间。
The west side contains a closed volume with all logistics functions, technical space for the BSL3 laboratory, emergency power, and the connections for gases, electricity, etc. The parking spaces for cars and bicycles are located between the two zones. The first floor houses the offices for the staff as well as the BSL2 and BSL3 laboratories. The CTU part 2 (rooms) and part of the CTU part 1 (day room) are located on the second floor. Finally, the third floor offers space for the living rooms and roof terrace of the CTU part 1 on the one hand.

另一方面,大部分的空气处理装置、应急电源和热泵都位于这里。屋顶上没有任何功能或装置,除了空气排风、太阳能电池板和沉香树屋顶。Vaccinopolis的立面概念是基于在建筑地块的北部建立一个紧凑和清晰的体量的雄心。建筑语言的意图一方面是高科技,但另一方面是适度的,有时完全没有。
On the other hand, a large part of the air treatment installations, emergency power, and heat pumps are located here. There are no functions or installations on the roof, except for air exhaust, solar panels, and a sedum roof. The facade concept for Vaccinopolis is based on the ambition of a compact and clear volume on the northern part of the building plot. The intention of the architectural language is high-tech on the one hand, but modest and sometimes completely absent on the other.



设计从一个紧凑而有效的梁形体开始。在地面上做了一个切口,为没有地下室的停车项目提供空间。随后,入口被稍稍向后推,以实现一个好客的接待。从一楼开始就采用了反射涂层,使该体量与周围环境融为一体。最后,房间的窗户突出来,以产生阳光保护和隐私。
The design starts from a compact and efficient beam-shaped volume. An incision is made at ground level to provide space for the parking program without a basement. Subsequently, the entrance is slightly pushed back to enable a hospitable reception. A reflective coating is applied from the first floor so that the volume blends in with its surroundings. Finally, the windows of the rooms protrude to generate both sun protection and privacy.

建议的物质化既是直言不讳的,又是温和的。从第一层开始的镜面包层使建筑既具有一定的内敛性,又具有高科技的外观。以一种精致的方式要求关注,而不喧宾夺主。建筑物的基座将被赋予深色方案,以使建筑物在景观中更自由地站立。
The proposed materialization is both outspoken and modest. The mirrored cladding from the first floor gives the building both certain introversion and a high-tech appearance. Demanding attention in a refined way without being loud. The plinth of the building will be given a dark color scheme to allow the building to stand more freely in the landscape.













Architects: Proof of the sum
Area : 6224 m²
Year : 2022
Photographs :Marcel van der Burg
Manufacturers : Alucobond, Gerflor, Rockfon, Saint-Gobain, C-fast
Lead Architect : Roy Pype
MEP & HVAC Consultant : Exilab
Structure Engineer : Establis
Landscape Designer : burO Groen
Contractor : Jansen The Building Group, Cordeel, Jansen Cleanrooms, Imtech
Architects : Amir Eismann, Ali Al Bahbahani Maurice van den Berg, Krzysztof Zinger, Ece Eren, Gosia Machaj
Co Designer : Abstract Architecten
City : Antwerp
Country : Belgium