VDA是一栋住宅楼,其公寓构成了一个雕刻的不规则体量。形状是其比较明显的区别,从结构上看,是一些小的横向摆动设计成重叠的对角线的结果。除了为当地住宅垂直建筑的千篇一律提出替代方案外,该项目还恢复了被房地产市场遗忘的元素,如百叶窗、公寓房、大阳台、院子和分层,使空间和房屋的典型温暖回归。
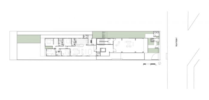
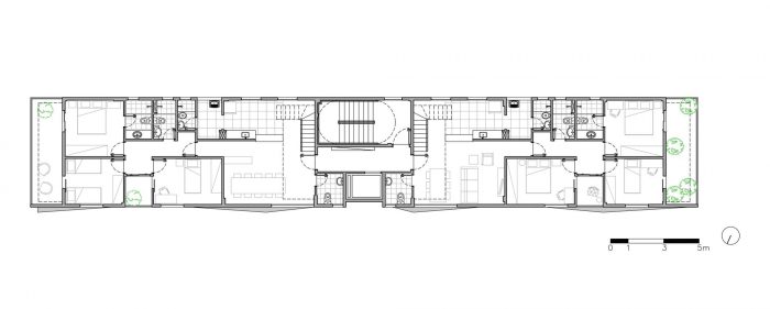
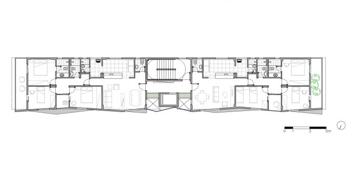
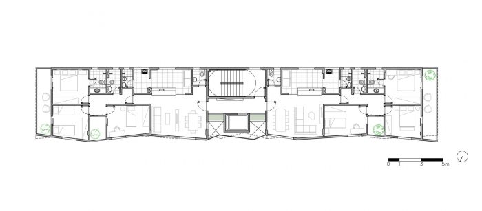
VDA is a residential building whose apartments make up a carved and irregular volume. The shape is its more explicit difference and, structurally, is the result of some small lateral swings designed as overlapping diagonals. In addition to proposing an alternative to the sameness of the local residential vertical architecture, the project recovers elements that have been forgotten by the real estate market, such as louvers, the apartment-house, large balconies, yard and splitting levels, bringing back the space and the typical warmth of the houses.



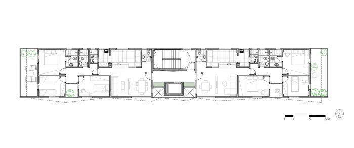
VDA与Vazio S/A以前的一个项目Ed.VDA有相似之处。蒙得维的亚285,如选择不整合娱乐区和设施(这一事实使公寓的成本降低),通过呈现所有不同的公寓(假设这种多样性反映了居民的多样性)和它的有机交错实施,这使得几个公寓有院子和花园。一些单元的天花板较高(3.2米),也就是说,该部分被用作获得空间的机制;而且所有卧室都有阳台。
Ed. VDA bears similarities with a previous Vazio S/A project, Ed. Montevideo 285, such as the choice not to integrate recreation area and amenities (a fact which enables condominium’s lower costs), by presenting all-different apartments (assuming the fact that this diversity reflects the diversity of the residents) and its organic staggered implementation, which enabled several apartments with yard and gardens. The ceiling of some units is higher (3.2m), that is, the section was used as a mechanism to get space; and all bedrooms have balconies.



该建筑不仅仅是一个建筑项目,它是办公室态度的一部分,既实用又实验,这得益于我们作为建筑师和开发商的双重责任。在该国目前的情况下,由几乎完全由建筑公司和房地产经纪人构思的产品所主导,我们认为建筑师参与嵌入建筑业的其他方面是至关重要的。构成城市结构的大部分是房屋和公寓,因此我们的城市不幸地被构成这个行业的最反动和最保守的部门所制造。
More than an architectural project, the building is part of the office attitude both practical and experimental, which was possible thanks to our dual responsibility as architects and developers. In the present scenario in the country, dominated by products almost exclusively conceived by construction companies and real estate agents, we believe that the participation of architects in other aspects embedded in the construction industry is critical. What makes up the bulk of the urban fabric are houses and apartments, therefore our cities have unfortunately been produced by the most reactionary and conservative sectors that make up this industry.






















Architects: Vazio S/A
Photographs :Gabriel Castro / Reverbo, Leonardo Finotti , Carlos Teixeira
Structural Design : MTF
Construction : Total Engenharia
Hydro Sanitary/Electrical Design : Projeta
Fire Prevention Design : Segurança Engenharia
Developers : Total Engenharia and Vazio S/A
Floor Area : 2.135m²
Net Area : 1.360m²
Land : 756m² (FAR 1.5)
Authors : Carlos M Teixeira, Leonardo Rodrigues, Ligia Milagres
Hydro Sanitary Design : Projeta
Electrical Design : Projeta
Fire Prevention Design : Segurança Engenharia
Hydro Sanitary Design : Projeta
Electrical Design : Projeta
City : Belo Horizonte
Country : Brazil