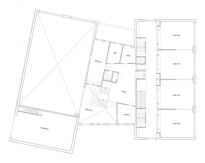
Veerkracht是一所位于阿姆斯特丹Slotermeer的多文化小学。安全、挑战和开放是Veerkracht教育愿景中的主要主题。这已经转化为建筑的布局和方向。有教室的部分与有主入口的中央部分 "断开",形成一个低刺激的学习区。建筑物的这一部分面向社区,因此远离建筑物前面的繁忙主干道。房间和走廊之间的窗户的位置是这样的:工作的学生不会受到路人的干扰,但教师在走廊上可以看到。
Veerkracht is a multi-cultural primary school in Slotermeer, Amsterdam. Safety, challenge and openness are the main themes in the educational vision of Veerkracht. This has been translated into the layout and orientation of the building. The section with classrooms is "disconnected" from the central section with the main entrance, creating a low-stimulus learning section. This part of the building is orientated to the neighbourhood, and therefore away from the busy main road in front of the building. The windows between the rooms and the corridors are positioned in such a way that working pupils are not disturbed by passers-by, but teachers have a view in the corridor.



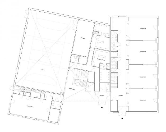
中央部分形成了建筑的入口,并且在性质上更加开放。职员室、体育馆、礼堂、会议室和学校操场之间存在着视觉关系,因此每个人或多或少都能看到对方。通过打开五米高的折叠墙,体育馆可以在活动期间作为礼堂的延伸。折叠墙被放置在所有教室之间,用它可以创造出开放的区域。
The central part forms the entrance to the building, and is more open in character. There are visual relations between staff room, gym, auditorium, boardroom and schoolyard, so that everyone is more or less visible to each other. By opening a five meter-high folding wall, the gym can be used as an extension of the auditorium during events. Folding walls have been placed between all the class rooms, with which open areas can be created.

Veerkracht是在 "Algemeen Uitbreidingsplan "中建造的,这是Cornelis van Eesteren在1934年制定的城市发展计划,其中光线、空气和空间是中心主题。这个计划包括一个角度旋转,在学校前面的街道上可以清楚地看到。为了将设计融入这一背景,学校建筑被分为三个部分:体育馆、礼堂和教室。这创造了一个体积的组合,而不是一个大体积,这尊重了环境中的 "光线、空气和空间"。体育馆的部分与Slotermeerlaan的西部一致,而教室的部分则与南部一致。建筑的中心向街道开放,创造了一个开放和欢迎的姿态。建筑的外部有倾斜的屋顶,是对该地区公寓楼的参考。
Veerkracht is built in the ‘Algemeen Uitbreidingsplan’, the urban development plan that Cornelis van Eesteren made in 1934, in which light, air and space are the central themes. This plan includes an angle rotation that is clearly visible in the street in front of the school. To fit the design into this context, the school building is divided into three parts: the gym, the auditorium and the classrooms. This creates an ensemble of volumes instead of one large volume, which respects the "light, air and space" in the environment. The part of the building with the gym stands in line with the western part of the Slotermeerlaan, while the part with the classrooms is aligned with the southern part. The center of the building opens to the street, creating an open and welcoming gesture. The outer parts of the building have sloping roofs, a reference to the apartment blocks in the area.

学校的直言不讳的身份已经转化为一个特色和现代的设计,这反映在Slotermeerlaan上引人注目的外墙。这个立面有一个大烟囱,形成了该地区的一个地标,同时也参考了老建筑上的烟囱。砖的颜色和砖块上的微妙装饰也是对前学校建筑的参考。
The outspoken identity of the school has been translated into a characteristic and contemporary design, which is reflected in the striking facade on the Slotermeerlaan. This façade has a large chimney, which forms a landmark in the neighbourhood and also refers to the chimney on the old building. The color of the brick and subtle ornaments in the brickwork are also references to the former school building.



Veerkracht是能源中立的,是所谓的 "Frisse学校"。Frisse学校是一个在空气质量、温度、舒适度、光线和声音方面具有低能耗和健康的室内环境的学校建筑。一个节能、健康和可持续发展的学校有助于建立一个可持续发展的世界。
Veerkracht is energy neutral and a so-called "Frisse School". A Frisse School is a school building with low energy consumption and a healthy indoor environment when it comes to air quality, temperature, comfort, light and sound. An energy-efficient, healthy and sustainable school contributes to a sustainable world.

在设计中,这种分类是通过尽可能多的被动干预措施来实现的,如巧妙的朝向、高质量的绝缘、良好的防晒、大量的日光和低维护的材料。该建筑配备了一个热泵和太阳能电池板作为支持。
In the design, this classification has been achieved with as many passive interventions as possible, such as smart orientation, high-quality insulation, good sun protection, lots of daylight and low-maintenance materials. The building is equipped with a heat pump and solar panels as support.







Architects: Studio Ard Hoksbergen, Studioninedots
Area: 1780 m²
Year: 2019
Photographs: Milad Pallesh
Manufacturers: Vectorworks, Eternit, Multiwal, Rijswaard, Schüco, STERTEKT, Schellekens, Solatube, Vilton
Lead Architects: Ard Hoksbergen, Albert Herder, Victor Spijkers
Contractors: Blanksma Bouw, Martinu, A. de Jong
Structural Engineer: Breed Integrated Design
Landscape: Dorrestijn
Design Team:Ard Hoksbergen, Albert Herder, Victor Spijkers, Steven Broekhof, André Cramer
Clients:LEV-WN, Municipality of Amsterdam
Consultants:Huygen Installatie Adviseurs, DPA, Vaecon
City:Amsterdam
Country:The Netherlands