这座建筑位于Bintaro South Tangerang,与周围的环境相比,感觉有点反常,因为我们选择了一种颜色作为区别因素。该住宅面积为6x15平方米,矗立在一个人口密集的住宅区。因此,房子的空间使用有一个特别的注意,以便房子在居住时感觉舒适。这个住宅的主要概念是使用分层。这个概念的产生是为了优化利用旧建筑的废弃物的翻新建筑。因此,我们可以将废物作为第二个建筑体(建筑的背面)的填埋物。因此,我们可以减少建筑过程中的剩余废物。
Located in Bintaro South Tangerang, this building feels a bit anomaly compared to the surroundings due to the chosen color that we use as a differentiating factor. Sized at 6x15m2, this residential stands in a densely populated residential area. Therefore, the use of space in the house has a special attention, so that the house feels comfortable when inhabited. The main concept for this residential is using split level. The concept was created in order to optimize renovated buildings that utilize waste from old buildings. Therefore, we can use the waste as a landfill for the second building mass (backside of the building). Hence, we can reduce the leftover waste from the construction process.



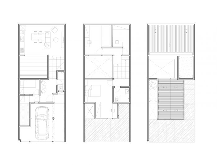
通过在住宅楼里做一个分层,空间的使用变得更加有效,并且可以操纵建筑的面貌。这座房子有4个不同的楼层,但由于采用了分层的概念,从外墙上只能看到2层。这也使房子适应了其他房子的高度。我们通过分层将建筑体量分为两个阶段,以内院为开放空间进行分隔。除了使其成为绿化区/花园,内院也将成为建筑的中心,作为空气流通的支持,作为空间之间的连接,以及建筑使用者之间的互动。
By making a split level in the residential building, the use of space becomes more effective and can manipulate the face of the building. This house has 4 different floor levels but with a split concept, only 2 floors are visible from the facade. This also makes the house adjust to the height of the other houses. We’re dividing the building mass into two phases through split levels that were separated with the inner courtyard as the open space. Besides making it a green zone/garden, the inner courtyard will also be the center of the building that will function as the support for air circulation, as a connection between spaces, and interactions between building users.


利用建筑的中心区域,作为内院的功能,基本上可以帮助建筑内的空气,使建筑内的空气循环更好,不会感觉到热,或者可以帮助加速热空气从每个房间流出来。这些区域也可以作为建筑每一侧的社会互动区,因为建筑中的分层,使得每层的互动感觉更紧密,因为建筑体之间的每一个高度。此外,建筑中心的开放空间的定位也可以作为建筑的自然采光和通风支持,使建筑从早上到中午可以减少不必要的电力。
Utilization of the central area of the building, which functions as an inner courtyard, basically helps the air in the building so that the air circulation in the building is better and does not feel hot or can help accelerate the flow of hot air out of each room. Those areas can also function as a social interaction area from each side of the building due to the split level that is carried in the building making the interaction of each floor feel closer because of each height between the building mass from one and another. Furthermore, the positioning of the open space at the center of the building also can function as a natural light and ventilation support for the building so that the building can reduce unnecessary electricity from morning till noon.

房屋内部的空间安排在水平方向上分为三个区域,分别是房屋正面的服务区、房屋中心的内院、房屋背面的私人区域以及房屋的第二层。主卧室在前面有更多的空间。同时,为了绕过被限制在后面的儿童房,儿童房的床垫或床在上面和下面做了不同的朝向,以便他们有自己的隐私。
The space arrangement inside the house is divided into three zones horizontally which are, the service area on the front side of the house, the inner courtyard in the center of the house, the private area at the back of the house, and the second floor of the house. The master bedroom has more space at the front. Meanwhile, to get around the children's room which is limited to the back, the mattress or bed in the children's room is made above and below with a different orientation in each room so that they have their own privacy.

对于建筑的颜色选择,我们采用了三色调的概念,从水泥揭露的灰色调为主,而外墙主要使用黑色和绿色。在墙面上选择灰色,是为了让建筑在水泥裸露的颜色和质感下显得更有阳刚之气。此外,建筑中选择的绿色也被用作外墙的主色调,使建筑比周围的建筑更显眼。
For the color selection of the building, we’re using a triple tone concept that dominates with gray tone from cement expose, while the facade is mainly using black and green. The choice of gray color on the walls is intended to make the building look more masculine with the color and texture of the exposed concrete. In addition, the choice of green color in the building is also used as a primary color on the facade so that the building stands out more than the surrounding buildings.











Architects: Atelier Bertiga
Area : 135 m²
Year : 2021
Photographs :Daniel Jiang
Manufacturers : Dulux, Toto, Alexindo, Fumira, Jaya Board, Mortar Utama, Niro Granito
Lead Architect : Mahadiyanto
Design Team : Mahadiyanto, Dhidhot Bima, Andrea Daniswara, Firman R. Faza, Aldana A Z, Bimantyo Cakra Donya
Country : Indonesia