Arauco是一家林业公司,它在2009年要求我们制定一项计划,以支持其工人获得最终住房。我们被要求在现行住房政策的范围内,为Fondo Solidario de Vivienda I(FSV I,600UF或25,000美元以下的单位,无债务)和FSV II(1,000UF或40,000美元以下的单位,有银行贷款)开发一套类型。这些设计将是公司对其工人的贡献,是一种补助金,因此住房委员会在申请常规公共资金系统时可以使用它们。
Arauco is a forestry company that called us in 2009 to develop a plan to support their workers in the process to have access to their definitive house. We were asked to develop a set of typologies within the current housing policy for Fondo Solidario de Vivienda I (FSV I, units up to 600 UF or US$25,000 without debt) and for FSV II (units up to 1,000 UF or US$40,000 with a bank loan). These designs would be a contribution of the company to their workers, a kind of subvention, so that housing committees could use them when applying for the regular system of public funds.


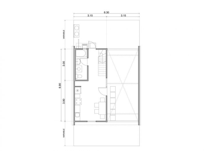
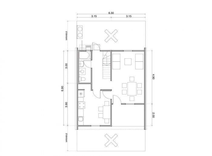
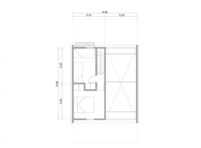
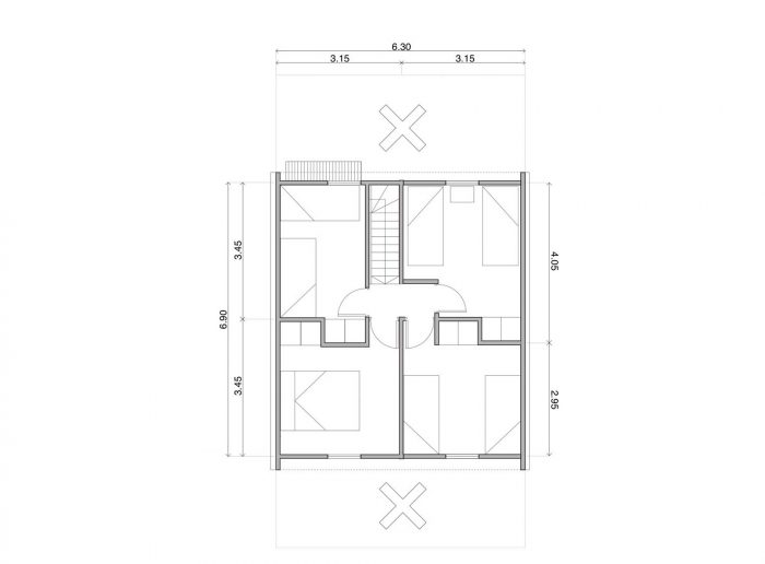
这个项目的重要性在于,一方面,它第一次让我们想到了住房政策的上层利基设计。如果我们开发出一个创新的、有竞争力的类型,我们将拓宽我们对社会住房的可能贡献。我们本来可以把自己比较经济的类型学,用多余的钱来完成,填补家庭预期完成的空白。但是,我们想到了再次运用增量建设的原则,优先考虑比较复杂的部分,这次无论是初始方案还是最终方案都有更高的标准。
The importance of this project is that on the one hand, for the first time, it allowed us to think about a design for the upper niche of the housing policy. If we developed an innovative and competitive typology, we would broaden our possible contribution to social housing. We could have taken one of our own more economic typologies and used the extra money to finish them, filling the void that families were expected to complete. But we thought of once again applying the principle of incremental construction and prioritization of the more complex components, this time with higher standards both for the initial and the final scenario.

这些创新之所以能够实现,是因为有阿劳科公司的直接资助,同时也是因为潜在需求量足够大,足以吸收这种研究的费用。该计划估计在三十个不同的城镇中共有9000个单位。
These innovations were possible because of the direct funding of Arauco, but also because the volume of the potential demand was big enough to absorb the costs of such research. The plan estimated a total of 9,000 units in thirty different towns.

最后,最相关的一点是,大多数项目都是为人口在1万至2万之间的城镇和乡村准备的。在这种规模的地方,安居工程无论好坏,都会产生重大影响。而正是在这些类型的城镇中,发现了最差的城市标准,因此,在这一领域的任何贡献都是非常受欢迎的。
Finally, one of the most relevant points was that most of the projects were intended for towns and villages of between 10,000 and 20,000 people. In places of such scale, housing projects, for good or for bad, do have a major impact. And it is in exactly these types of towns where the worst urban standard is found, so any contribution in this niche is more than welcome.































建筑师:ELEMENTAL
面积: 5688 m²
年份:2010年
摄影:Suyin Chia, Cristian Martinez
厂家:Arauco Arauco
合作者:Philip Zurman
结构工程:Patricio Bertholet
结构:Icafal
土木与管道工程:Fernando Montoya
电气工程:Ramón Prado
城市:Constitución
国家:智利
Architects: ELEMENTAL
Area: 5688 m²
Year: 2010
Photographs: Suyin Chia, Cristian Martinez
Manufacturers: Arauco
Collaborators:Philip Zurman
Structural Engineering:Patricio Bertholet
Construction:Icafal
Civil And Plumbing Engineering:Fernando Montoya
Electrical Engineering:Ramón Prado
City:Constitución
Country:Chile