一所房子如何能讲故事?Verdure House可以做得很好。因为这个房子的每一个配置都是为了让居民在每次聚会时讲述许多故事,分享他们的经验。这座房子矗立在万隆一条阴暗的街道边上。一年四季,周围的环境都是平静的氛围、茂盛的树木和凉爽的空气的结合。这座房子拥有相当大的地块,为了所有居民的舒适,最大限度地发挥了每个区域的功能。
How can a house tell a story? Verdure House can do well. Because every configuration in this house is intended to allow residents to tell many stories and share their experiences at each meeting. This house stands on the side of a shady street in Bandung. Throughout the year, the surrounding environment is a combination of a calm ambiance, lush trees, and cool air. This house has a fairly large plot of land and maximizes the function of each area for the comfort of all residents.




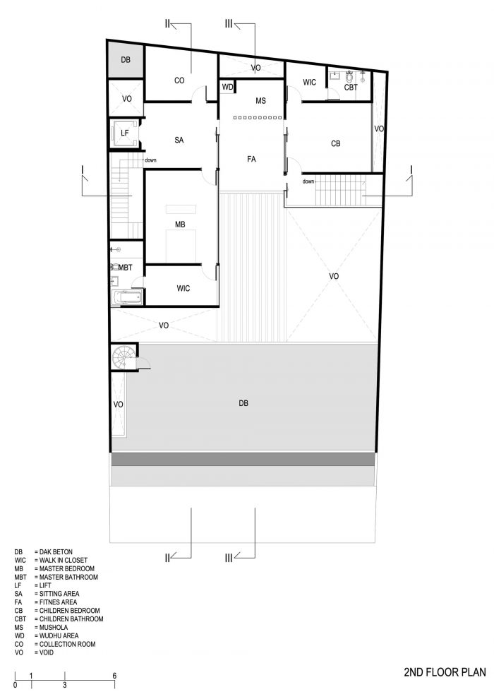
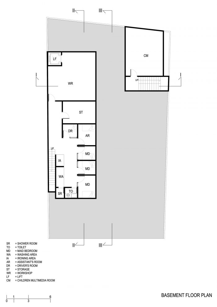
阿瓦那工作室采取了一种独特的方法,创造了两个大规模的建筑。由于住户的年龄各不相同,建筑体量分离的概念努力将住户的各种需求分开。虽然分开了,但Verdure House的设计允许通过一些成为聚会点的开口来实现强烈的联系。Verdure House有三层,两层在地上,还有一个地下室。地下室用于娱乐区,上面的两层用于支持其居民的各种私人和公共活动。
Studio Avana took a unique approach, creating two mass buildings. Because the residents are of varied generations, the concept of building mass separation strives to separate the occupants' various needs. Although separated, Verdure House is designed to allow strong connectedness through a number of openings that become a meeting spot. Verdure House has three levels, two above ground as well as a basement. The basement is used for an entertainment area, and the two floors above it are used to support various private and public activities of its residents.



几个宽敞舒适的房间被设计用来满足各种需求,包括招待经常来房子的广大亲戚。一个娱乐区、一个木工工作室、一个车库、四间卧室、多个浴室、一个日式茶水间、一个烧烤区和一个健身房都在设施之列。所有这些房间都由宽大的开口连接。
Several spacious and comfortable rooms are designed to accommodate a variety of needs, including entertaining a vast group of relatives that visit frequently the house. An entertainment area, a woodworking studio, a garage, four bedrooms, multiple bathrooms, a Japanese-style pantry, a BBQ area, and a gym are among the facilities. All of these rooms are linked by broad openings.


Verdure House通过天然石材、混凝土和木材等多种元素的安装显得很和谐,它采用了工业、传统日本建筑和现代热带等多种风格。这些方面合作解释了空间之间的过渡,而不仅仅是在美学方面。木质元素的自然颜色,在房间的每个区域都相当主要,无论是在外部还是内部,肯定会吸引人们的注意。
Verdure House appears harmonious through the installation of several elements such as natural stone, concrete, and wood, which adopts a multitude of styles such as industrial, traditional Japanese architecture, and modern tropical. These aspects collaborate to explain the transition between spaces, not just in terms of aesthetics. The natural color of the wood elements, which are quite dominant in every area of the room, both on the exterior and interior, surely attracts attention.

木质元素可以在房子的外部的大门、主入口、凉棚、第二层皮肤和木质甲板上看到。次级表皮上的木质元素具有双重功能,作为阳光直射的屏障,可以根据空气流通的需要打开和关闭。而在室内,为了传达一种温暖的感觉,安装了木质元素来涂抹墙壁,例如在客厅、家庭室和几个卧室。
Wooden elements may be spotted on the house's exterior at the gate, main entrance, pergola, secondary skin, and wooden decking. The wood element on the secondary skin serves a double function as a direct sunlight barrier that can be opened and closed based on the necessity for air circulation. While in the interior, wooden elements are installed to coat the walls in order to convey a warm feeling, such as in the living room, family room, and several bedrooms.



天窗的安装,几个宽大的窗户,次要的皮肤,以及位于游泳池旁边的一个独特的棕榈园区域,使得这个房子的空气流通。空间之间的每个隔断的开放也使交叉通风成为可能。由于在屋顶上安装了太阳能电池板,这所房子也更加节能。为了应对不同的需求,这一概念的实施创造了其自身的复杂性。花园面积和各种植物的分布使这个房子的绿化面积占到了总土地面积的40%,因此被称为Verdure House。
The installation of skylights, several wide windows, secondary skins, and a unique area of the paludarium situated next to the swimming pool allows for airflow in this house. Cross ventilation is also enabled by the opening of each partition between spaces. This house is also more energy efficient due to the installation of solar panels on the roof. The implementation of this concept creates its own complexity in order to respond to varied needs. The garden area and the distribution of various plants give this house a green area that accounts for 40% of the total land area, hence the name Verdure House.







Architects: Studio Avana
Area : 560 m²
Year : 2021
Photographs :KIE
Manufacturers : AutoDesk, Lumion, Antonio Lupi, SketchUp, Toto, Adobe Creative Cloud, Ateson, Niro Granite Indonesia, Owen, Panasonic, TOSTEM LIXIL, Venus Tiles
Lead Architects : Martin Pradipta, Ramos Saedi, Rayner Tulus
City : Bandung
Country : Indonesia