维阿杜托斯大厦,由建筑师阿塔乔-胡拉多在20世纪50年代设计和建造,是圣保罗的一个历史地标。它气势恢宏地植入Prestes Maia的大道计划中的一个岛屿,集中地划分了谁通过Nove de Julho高架桥的视觉轴。
The Viadutos Building, designed and built by the architect Artacho Jurado during the 1950s, is a historic landmark in São Paulo. Its imposing implantation in an island resulting from the Plan of Avenues of Prestes Maia, centrally demarcates the visual axis of who transits by the Viaduct Nove de Julho.



该公寓位于该建筑的第18层,通过其露台可以看到城市中心的优越景观。因此,拆除所有修剪过的原始计划的内墙是一个行动,使景观和自然光,由原来的木框框住,可以渗透到空间。
The apartment in question, in the 18th floor of that building, provides through its terraced area a privileged view of the city downtown. Demolishing all the internal walls of the trimmed original plan was, therefore, an action for which the landscape and the natural light, framed by the original wooden frames, could penetrate the space.



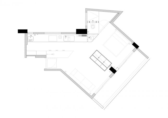
为了增加46平方米的内部空间的宽广感,环境之间的划分是通过漂浮在空中的家具来实现的,而不触及淹没整个公寓的绿色地板。计划中的木材体量具有双重功能,既向客厅开放,也向卧室开放:一边是放置书籍和电子产品的衣柜,另一边则作为衣柜。混凝土台面的功能也有助于组织和空间的增加,因为其中嵌入了洗衣用具、厨房和浴室,通过悬挂在台面上的镜子将它们分开。
To increase the feeling of amplitude within the 46 m2 of internal area, the division between environments was made through a furniture that floats suspended, without touching the green floor that floods the whole apartment. The timber volume amid the plan has a double function, opening up both to the living room and to the bedroom: while one side is a closet for books and electronics, the other serves as a wardrobe. The concrete countertop functionality also assisted in the organization and space gain,because in it is embedded the laundry utensils, kitchen and the bathroom, separated from those by a mirror suspended on the countertop.

由于它是唯一的封闭环境,而且自然光很少,浴室被半透明的玻璃板所包围,而不是砖石。酸性处理确保了隐私,但也允许光线的过滤通过,无论是在白天从房间里出来,还是在晚上,当内部的人造光线把它变成一个大手电筒时。这种人造光线是由厕所和淋浴间之间的技术隔断发出的,它也集中了所有的液压管道,方便在必要时进行维修。
As it was the only closed environment and with little incidence of natural light, the bathroom was enveloped by panels of translucent glass instead of masonry. The acid treatment ensures privacy, but also allows the filtered passage of light, both at the daytime coming from the room, as at night, when the internal artificial light transforms it into a large flashlight.This artificial light is emitted by the technical partition between the toilet and the shower, which also concentrates all the hydraulic pipes, facilitating their maintenance if necessary.

厨房里的高柜是另一个重要元素,因为它构成了面向客厅的第二个手电筒。其他间接灯具也从天花板上松开,使板块和剥离的混凝土横梁免受其他视觉干扰。
The tall cabinet in the kitchen is another important element, as it constitutes a second flashlight facing the living room. The other indirect luminaires are also loose from the ceiling, releasing the slab and stripped concrete beams from other visual interferences.

虽然面积仍然是一样的,但空间感觉已经完全改变了,从小的分割的公寓变成了一个大的空间。这仅仅是由于采用了两个连续平面的材料统一的策略,下面的环氧树脂地板和上面的混凝土天花板,环境之间的视觉整合和所有组成元素的最大功能利用。
Although the area still be the same, the spatial feeling has been completely transformed, from the small subdivided apartment into a large space. This has only become possible thanks to the adopted strategies of materials unification of the two continuous planes, the epoxy floor below and the concrete ceiling above, the visual integration between environments and the maximum functional utilization of all the elements that compose it.







Architects: Vão
Area : 56 m²
Year : 2016
Photographs :Rafaela Netto
Manufacturers : AEME Marcenaria, CIMAR Estruturas Metálicas, RX Pinturas, Reka Iluminação, SV Vidros
City:SÃO PAULO
Country:Brazil