通过Viale Giulini经济适用房项目,总部设在罗马的Alvisi Kirimoto工作室正在通过社会住房干预重新设计Barletta(普利亚)的郊区。该项目位于城市的西南部,在新的Zona 167区,旨在将城市的宏观尺度与家庭层面融合起来,在一个更大的项目系统中振兴该社区,包括ABDR设计的Parco dell'Umanità-步行长廊。
With the Viale Giulini Affordable Housing project, Rome-based studio Alvisi Kirimoto is redesigning the outskirts of Barletta (Puglia) through a social housing intervention. The project, located in the south-west of the city, in the new Zona 167 district, aims to fuse the urban macro-scale with the domestic dimension, within a larger system of projects to revitalize the neighbourhood, including the Parco dell’Umanità — Design of the pedestrian promenade by ABDR.



工作室长期以来一直致力于意大利及其他国家的城市复兴主题--从与伦佐-皮亚诺对G124工作组的承诺,到罗马南郊Grotta Perfetta的幼儿园、市民中心、图书馆和公园的开放式施工现场,以及在中国南京和上海城市周边的大型购物中心激活实验性实验室。
The studio has long been committed to the theme of urban regeneration in Italy and beyond - from its commitment with Renzo Piano for the G124 working group, to the open construction site of a nursery school, civic centre, library and park in Grotta Perfetta in the southern suburbs of Rome, and the activation of experimental laboratories in the large shopping centres in the peripheries of the cities of Nanjing and Shanghai in China.


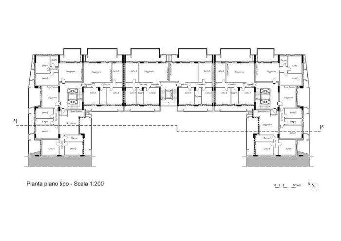
在这个项目中,Alvisi Kirimoto创造了 "紧凑和朴实的建筑",正如建筑师所描述的。该建筑具有清醒和严谨的轮廓,以雕塑般的方式与城市联系在一起,与它所处的多样化、震耳欲聋的环境形成鲜明的对比,后者缺乏绿色空间,其特点是浮夸的装饰方案,以及僵硬的住房和城市类型。该建筑群有50个单元,包括地下停车场和一个专门用于商业活动的底层,看起来像一个C形的巨石,跨越了六层楼的高度,总面积超过5000平方米。立面的规则性代表了建筑的主要特征:统一的深灰色砖幕成为一种中性的乐谱,动态的节奏由突出的白色金属板元素传递。
For this project, Alvisi Kirimoto created "compact and down-to-earth architecture", as the architects describe it. With a sober and rigorous profile, the building relates to the city in a sculptural way, in stark contrast to the diverse, deafening context in which it is nestled, which lack green spaces and are characterized by ostentatious decorative solutions, and rigid housing and urban typologies. The complex, which has 50 units including underground car parks and a ground floor dedicated to commercial activities, looks like a C-shaped monolith, spanning a height of six floors and a total area of over 5,000 square metres. The regularity of the elevations represents the main character of the building: the uniform dark grey brick curtain becomes a sort of neutral score where dynamic rhythms are delivered by protuding, niche white metal sheet elements.


该项目被认为是城市这一部分总体重建的 "零点",打破了社会住房建设的典型形式,"工作室的联合创始人Massimo Alvisi解释说。"我们对空间的类型和质量感兴趣,而不仅仅是设计上。为了平衡体量的重力,它在底层的轮廓弯曲,以扩大公共空间,我们想象了一系列悬挂在外墙上的光线和渗透性的木屋,"民主地 "将额外的空间归属于每个人。这些木屋向外伸出,作为公寓的自然延伸。更重要的是,由于它们的白色和穿孔的表面,它们反映了家庭环境中的自然光,它们为公寓增加了10至15平方米,提高了更温和和有限的类型切割的空间质量"。
"The project, conceived as the 'zero point' of a general redevelopment of this part of the city, breaks away from the typical forms of social housing construction," explains Massimo Alvisi, co-founder of the studio. “We were interested in working on the typology and quality of the spaces, not only on the design. To balance the gravity of the volume, whose profile on the ground floor bends to expand the public space, we imagined a series of light and permeable loggias hanging on the facade, 'democratically' attributing extra space to everyone. The loggias project outwards, as a natural extension of the apartments. What’s more, thanks to their white and perforated surfaces, they reflect natural light within the domestic environment, and they add a further 10 to 15 m2 to the apartments, enhancing the spatial quality of the more modest and limited typological cuts".

阳台俯瞰Viale Giulini,以优化自然光,并在其他立面的体量中进行雕刻,以限制辐射现象。阳台顶部有防雨措施,侧面有穿孔金属板屏风,以提高隐私水平,侧面有技术基础设施和晾衣架。它们的形状允许最大限度的内部定制,而不改变外墙的一般美学。"从技术角度来看,该项目是高度创新的,"Massimo Alvisi继续说道。"所采用的解决方案确保了内部和外部的柱廊都是预制的,并且很容易在系列中复制,同时不放弃丰富的细节和耐久性。这个策略,与承包商共享,使得我们有可能在当前市场上以极其有限的预算来制造高质量的社会住房,并提供一个独特的、安全的、耐用的住宅。"
The balconies overlook Viale Giulini to optimize the natural light, and are carved into the volume in the other elevations to limit the phenomenon of radiation. Protected from rain at the top and laterally by perforated sheet metal screens to increase the level of privacy, they house the technological infrastructures and drying racks on the sides. Their shape allows for maximum internal customization, without altering the general aesthetics of the facades. "The project is highly innovative from a technological point of view," continues Massimo Alvisi. “The solutions adopted ensure that the internal and external loggias are prefabricated and easily reproducible in series, without renouncing the richness of detail and durability. This strategy, shared with the contractor, has made it possible to make quality social housing and to deliver a unique, safe and durable home, with an extremely limited budget for the current market. "

在白天,自然光减少了建筑的表面重量,木屋和阳台的体积变得轻微,将材料和抽象、轻盈和重力最大限度地结合起来。建筑物的底层也同时传递着坚实和活力:包层直接从地面开始,使建筑物扎根,而商业玻璃地板在街道上和其他两侧结束,有一个清晰的垂直对角线切割,提升了体积。同样的倾斜度在横向立面和主要正面之间的连接处也得到了应用,用一个喇叭口来解决,还有屋顶的护栏,它隐藏了太阳能热板。
During the day, natural light reduces the apparent weight of the building, the volumes of the loggias and balconies become slight, combining the material and the abstract, lightness and gravity with maximum simplicity. The ground floor of the building also transmits solidity and dynamism at once: the cladding starts directly from the ground, rooting the building, while the commercial glass floor ends on the street and on the other sides with a clear vertical diagonal cut, which boosts the volume. The same inclination is applied horizontally in the connection between the lateral elevations and the main front, resolved with a flare, as well as the parapet on the roof, which hides the thermal solar panels.

在功能上,该建筑被分为三个区块,每个区块都有自己的楼梯间和电梯。中央楼梯是完全朝向庭院的玻璃,而横向楼梯由天窗自然照亮,光线通过一个大的空隔间,在坡道和电梯隔间之间过滤到各层。所有的公寓都是围绕着一个庭院组织的,这个庭院占据了70%以上的土地。院子被设计成一个小公园,在那里居民可以离开城市的混乱,享受树木和落叶植物,这些植物在夏天提供阴凉,在冬天提供自然光。
Functionally, the building is divided into three blocks, each of which has its own stairwell and elevator. The central staircase is completely glazed towards the courtyard, while the lateral staircases are naturally illuminated by a skylight, through which light filters into all levels through a large empty compartment, between the ramps and the elevator compartment. All the apartments are organized around a courtyard, which occupies over 70% of the lot. The courtyard is designed as a small park, where the inhabitants can leave the chaos of the city behind, and enjoy trees and deciduous plants, which provide shade in summer and natural light in winter.

严谨的线条、基本的形状和平衡的色彩:结果是一个简单而精致的设计--与周围建筑的古怪形成对比--使郊区的社会住房恢复了尊严。该项目以其同样的优雅姿态,将以可负担得起的价格提供优质住房的主题带回了建筑辩论的中心。
Rigorous lines, essential shapes and balanced colours: the result is a simple and refined design - in contrast with the eccentricity of the surrounding buildings - which restores dignity to social housing in the suburbs. A project that, with the same grace with which it stands, brings the theme of quality accommodation at affordable prices back to the heart of the architectural debate.
































Architects: Alvisi Kirimoto + Partners
Area: 5380 m²
Year: 2020
Photographs: ©Marco Cappelletti
Project Team:Massimo Alvisi, Junko Kirimoto, Chiara Quadraccia, Donato Labella
Structural Project:Ing. Antonio Salzo
Installations And Fire Prevention System:Tumulo & Denuzi Engineers
City:Barletta
Country:Italy