岘港是越南的一个著名的海上旅游城市。它不仅有美丽的海滩,而且还有极其美妙的汉江和山特拉半岛。岘港也是通往世界文化遗产会安的一个目的地。因此,由于旅游业的发展,岘港的发展非常迅速。度假村和酒店的建立是为了服务来自世界上许多国家的游客到越南。然而,旅舍的类型在4-5年前才被注意到并建成。这种类型的住宿在岘港并不流行,所以没有足够的需求来满足游客。
Danang is a famous sea-tourism city in Vietnam. It has not only the beautiful beaches, but also the extremely wonderful Han River and Son Tra Peninsula. Danang is also a destination on the way to the World Heritage site of Hoi An. Therefore, thanks to Tourism, Danang has developed very quickly. Resorts and hotels are built to serve tourists from many countries in the world to Vietnam. However, the type of hostel has just been noticed and built in 4-5 years ago. This type of accommodation is not popular in Da Nang, so there is not enough demand to cater to tourists.



VietNam旅馆建在Han市场的对面,Han市场是岘港最著名的地方,对所有居民和世界各地的游客来说,都是最著名的地方。韩市场被认为是城市的中心。每天都有成千上万的游客来这里参观和购物,特别是购买当地的特色产品。此外,从VietNam旅馆步行到浪漫的汉江,只需要不到一分钟的时间。从这里,游客可以很容易地在市内旅行。
The VietNam Hostel is built opposite to Han Market, the most famous place in Da Nang for all residents and tourists worldwide. Han Market is regarded as the heart of the city. Every day, thousands of visitors come to visit and go shopping here, especially buy the local specialties. In addition, it takes less than a minute to walk from the VietNam Hostel to the romantic Han River. From here, tourists can easily travel around the city.



VietNam旅馆的设计采用了极简主义的方式,排除了所有复杂的元素,尽可能地降低投资成本,但仍能保证最大的使用系数。因此,我们使用了大量简单和廉价的材料。而且特别是,我们限制破坏环境的材料,如油漆、石膏等。我们更倾向于使用环保的解决方案,如建造未烘烤的砖,不在房子里抹灰的墙,以限制水泥的使用。此外,我们还利用大量的树木和阳光来获取阳光和风,以达到使空间更通风、更友好的目的,从而降低材料的硬度。
The VietNam Hostel is designed in a minimalist way, which eliminates all complicated elements to reduce the investment cost as low as possible but still ensures the maximum use factor. So, we use a lot of simple and inexpensive materials. And especially, we limit the materials that damage the environment such as paint, gypsum, etc. We prefer to use environmentally friendly solutions such as construction of unbaked bricks, not plastered walls in the house to limit the use of cement. In addition, we also use a lot of trees and sunlight to get the sun and wind for the purpose of making the space airier and friendlier, which reduces the hardness of the materials.

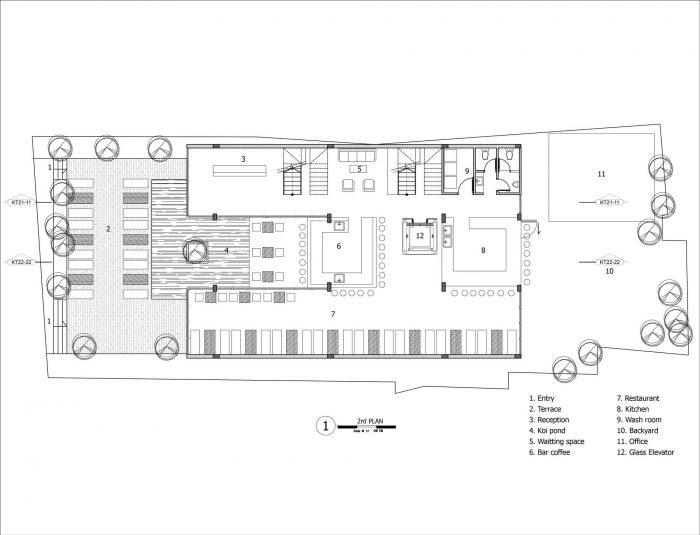
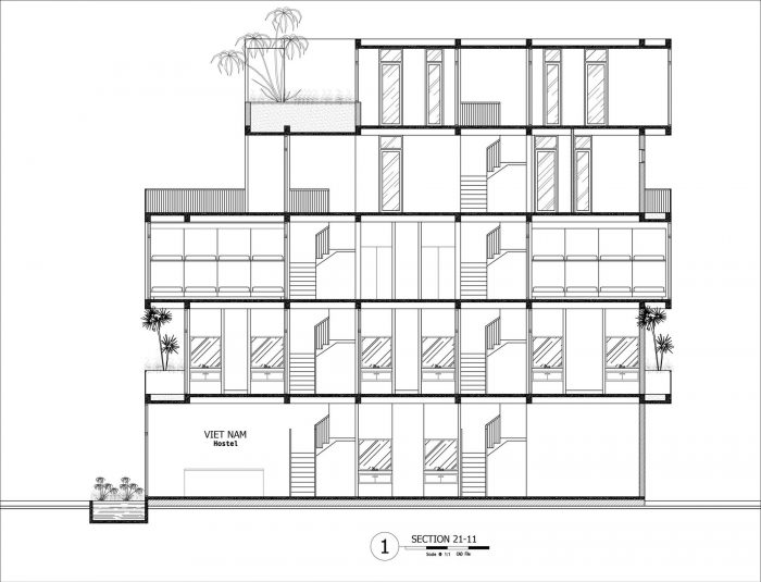
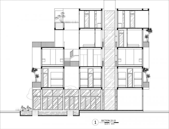
在1楼。我们把整个建筑推到后面,预留了一个停车和花园的空间,以隔离汉字市场和街道的骚乱噪音。此外,该区域被用来享受咖啡和观看街道。在内部,接待区是一个侧面。其余的部分用来做餐厅和咖啡馆,为旅舍的客人和常客提供服务。建筑的后面是办公室和花园。电梯是用玻璃设计的,给人以宽敞和通风的感觉。
On the 1st floor: We pushed back the whole building back to the back to reserve a space for parking and garden to isolate the riotous noise of the Han Market and the streets. In addition, the area is used to enjoy coffee and watch the streets. Inside, the reception area is one side. The rest is used to make restaurants and coffee shop to serve both the guests of the hostel and frequent guests. The back of the building is office and garden. Elevators are designed with glass to provide a spacious and airy feeling.

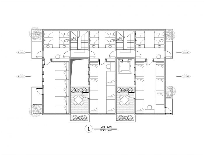
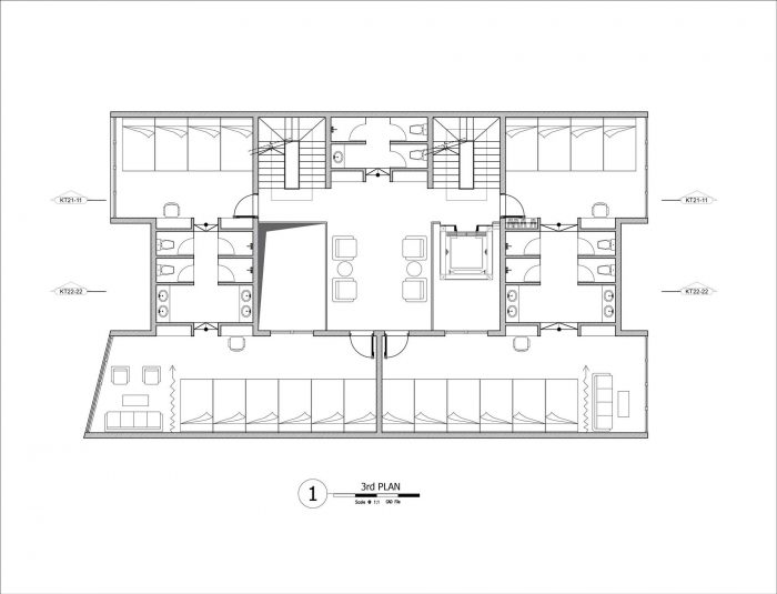
在2楼和3楼。它们是居住层的开始,包括宿舍的房间。房间之间是一口井,空间里有绿色的树木,人们可以走到这些地方去工作、放松、交谈、抽烟,很舒服,不会打扰到里面的其他人。
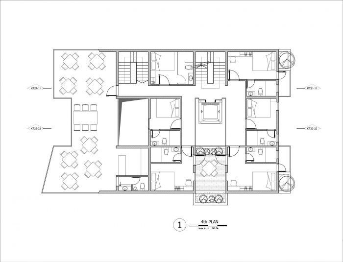
在四楼。这一层包括私人房间、操场、咖啡馆和共用厨房。
On the 2nd and 3rd floors: They are the beginning of the residence floor, including the Dorm rooms. Between the rooms is a well and the space has green trees, people can walk to these areas to work, relax, talk, and smoke comfortably without disturbing the other on the inside.
On the 4th floor: This floor included Private rooms, playground, coffee shop and shared kitchen


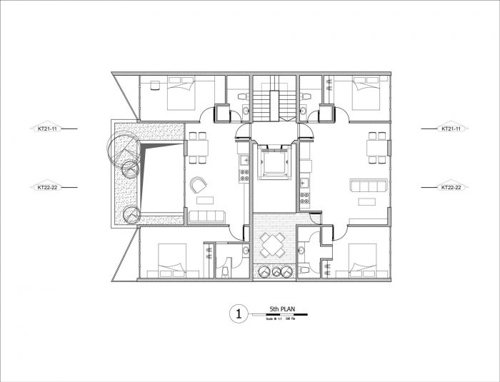
在5楼。我们设计了两套公寓。我们为什么这样做?有两个原因:首先,这块地是租来建设的,所以业主需要一个财务安全计划。如果我们在上面建造公寓,就很容易以比旅馆更好的价格出租。第二,由于这个地区对旅游公寓的需求非常大,但是,周边地区的服务不足。
On the 5th floor: We designed two apartments. Why do we do that? There are two reasons: firstly, this land is rented for construction, so the owner needs a financial security plan. If we construct the apartment above, it is very easy to rent for a better price than the Hostel. Secondly, due to the demand for tourist apartments in this area is very large, however, the surrounding area is not enough to serve.

VietNam旅馆的设计和建造目的是为游客来岘港时带来令人兴奋的体验。而通过这个项目,我们也想向人们传递这样的信息。我们完全可以用低廉的成本建造工程,最好使用对环境危害较小的方案,但它们仍然是美丽的。最重要的是,它们能满足用户的需求。
The VietNam Hostel is designed and built with the purpose to bring visitors exciting experiences when coming to Danang. And through this project, we also want to send messages to people that: We can completely build the works at low cost, preferably use less harmful solutions to the environment, but they are still beautiful. Most importantly, they satisfy the users.













Architects: 85 Design
Area : 600 m²
Year : 2018
Manufacturers : Saggitta Construction JSC, Thien Trung Viet door, VinPro
Client : Mac Bao Gia Co.Ltd
Architect : To Huu Dung
Country : Vietnam