保加利亚的Vision咨询公司已经在具有挑战性的技术限制范围内工作了近三年,将现有的学校食堂建筑改造成一个艺术中心。
Bulgarian studio Vision consulting has been working for almost three years within the challenging technical constraints of existing school canteen building transformed into an Art centre.



现有建筑最初建于80年代初,具有典型的共产主义时代的设计特点。没有任何资质的当地人参与了工程,这反映了施工质量差。建筑和公共领域的特点是过时的,不鼓励游客逗留。
Originally the existing building was built in the early 80 s, and had typical design characteristics of Communist era. Local people without any qualification had been involved in the works which reflected on poor construction quality. The character of the building and public realm were dated and did not encourage the visitors to linger.

该建筑已被遗弃多年,几乎被毁。至少有30%的承重结构件缺失,这给本已紧张的预算增加了更多的挑战。然而,我们的建议旨在重新利用现有的结构,同时提高外墙的质量和增加画廊的空间。一个积极的可持续再利用的方法将保留现有的地下室到一楼的结构放在设计的最前面。
The building has been abandoned for years and almost ruined. At least 30 % of the load bearing structural members were missing which added more challenge to the already tight budget. However our proposal aimed to reuse the existing structure whilst improving the quality of the facades and increasing the gallery space. A proactive approach to sustainable reuse put the retention of the existing basement to first floor structure at the forefront of the design.

该中心的再生受到了一些挑战的阻碍,特别是在2020-2022年的时间框架内。我们的应对措施是简化设计,专注于三维思维而不是昂贵的材料。
The regeneration of the centre was impeded by a number of challenges particularly in the time frame of 2020-2022. Our response was to simplify the design and focus on three dimensional thinking rather than on expensive materials.

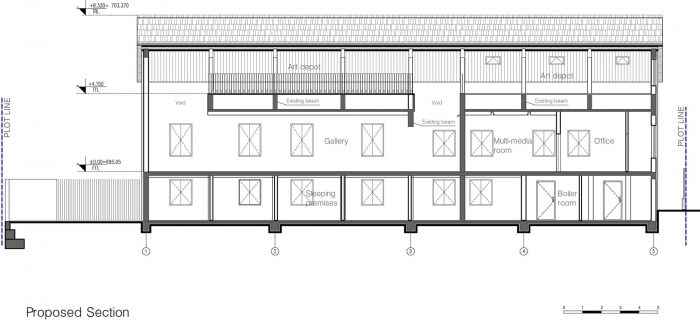
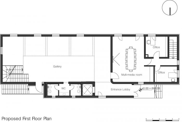
在底层,所有旧食堂的隔墙都被拆除,以简化空间,为画廊提供更宽敞的展示区。
On the Ground floor level all partition walls of the old canteen were demolished to simplify the space and provide more spacious exposition area to the Gallery.


该项目引入了一个全新的顶层扩展,其中包括艺术仓库,以容纳客户的终身艺术收藏。通过设计单跨木质框架,实现了提供无柱开放空间布局的目标。创新的工程和现代结构技术应用了胶合板和环氧树脂木柱-椽子连接。
The project introduced an all new top floor extension with Art Depot to accommodate a lifetime Art Collection of the Client. The goal to provide open space layout free of columns was achieved by designing a single span timber frames. Innovative engineering and contemporary structural techniques applying Glulam and epoxy timber column-rafter connections was adopted.


一楼和二楼之间的板块被部分拆除,这为空间增加了更多的体积,在艺术展示方面也有了更多的灵活性。
The slab between Ground floor and First floor levels was partially demolished which added more volume to the space and more flexibility in terms of art showcasing.

在设计过程中,我们与艺术家紧密合作,以加强项目中的工艺和艺术参与。入口区的特点是,从地板到顶部的外墙都是由当地艺术家手工制作和刻画的再生木材。至少有70%的材料以公共艺术的形式被重新使用。一些现场可用的材料,如地板水磨石和现有的混凝土梁被整合到室内设计中,加强了新旧之间的对比。
During the design process we worked in close collaboration with artists to enhance craftsmanship and art involvement in the project. The entrance area features a floor to top façade cladded with reclaimed timber manually formed and etched by a local artist. At least 70 % of the materials were reused in a form of public art. Some of the materials available on site, such as the floor terrazzo and existing concrete beams were integrated within the interior design enhancing the contrast between old and new.

部分拆除、部分扩建和完全翻新将使该建筑重新焕发活力,成为一个有吸引力的艺术目的地。至少有80%的原始结构被保留下来,与新建筑相比,该建筑的碳含量减少了一半以上。
The part-demolition, part-extension and complete refurbishment will reinvigorate the building into an attractive artistic destination. At least 80 % of the original structure was retained which cuts the building’s embodied carbon by over half compared to a new building.


本框架通过在短期内采取切实可行的干预措施,力求将维罗尼艺术中心打造成一个充满活力的文化场所,成为保加利亚文化和艺术生活的焦点。 这反过来将有助于当地更持久的复兴和振兴。
The Framework, trough targeting realistic and deliverable interventions in the short term seeks to promote Art Centre Vihrony as a vibrant cultural place which acts as a focal point for cultural and art life in Bulgaria. This in turn will assist in the more permanent regeneration and rejuvenation of the local area.









Architects: Vision Consulting
Area : 700 m²
Year : 2022
Photographs :Assen Emilov
Manufacturers : Bespoke ceramics , BAUX, Bramac, Knauf
Lead Architects : Eva Popnedeleva
Structural Design : Mihail Ralev
Structural Design And Construction Management : Borislav Aleksandrov
Program / Use / Building Function : Art Centre and Gallery
Paintings : Vihrony Popnedelev
City : Dolno Kamartsi
Country : Bulgaria