Vila Oxalá是一套两栋房子,位于巴西巴伊亚州南部的马拉乌半岛,占地1.475平方米。它位于一个安静的区域,被大自然所包围,离Barra Grande村不远。主屋Vila Oxalá I是作为业主的第一个家而建造的,业主是一对来自圣保罗的夫妇,他们希望放慢脚步,抚养他们的孩子。该项目的概念是一个融合了室内和室外生活空间的房子,具有宽敞的开口、花园景观和丰富的自然通风。一个实用的房子,拥有紧凑而舒适的房间和宽阔的视野,可以享受宁静的环境和舒适的气候。
Vila Oxalá is a set o two houses in a 1.475m2 plot on the Peninsula of Maraú, Southern Bahia, Brazil. It is located in a quiet area, surrounded by nature, and not far from the Barra Grande village. The main house, Vila Oxalá I, has been built as the first home of the owners, a couple from São Paulo, who were looking to slow down and raise their children. The project's concept is a house that merges indoor and outdoor living spaces with generous openings, garden views, and abundant natural ventilation. A practical house with compact yet comfortable rooms and wide views to enjoy the peaceful surroundings and the pleasant climate.




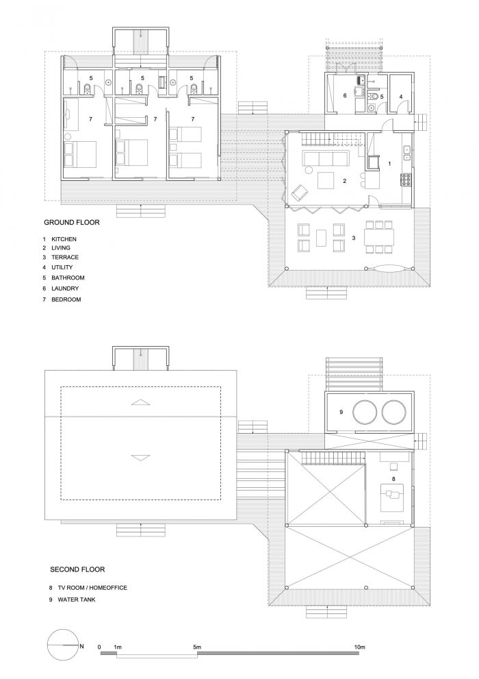
该项目的体量非常简单,由两座带坡屋顶的建筑组成,通过木质平台和凉棚相互连接。循环完全在外面进行,使两个建筑体量独立,并使睡眠区免受社交区的噪音影响,因为业主通常会接待家人和朋友。材料的选择是基于当地现成的材料。房屋采用传统的建筑方法,如混凝土、粘土砖和木材,以保持简单,并尽可能多地利用当地的知识和技术。
The project's volumetry is very simple, made of two blocks with gabled roofs, interconnected by wooden decks and a pergola. Circulation runs entirely outside, making both built volumes independently and preserving the sleeping area from the noise of the social area, as the owners usually host family and friends. The materials were chosen based on what was readily available locally. The house was built using traditional construction methods such as concrete, clay blocks, and wood, to keep it simple and utilize as much local knowledge and technologies as possible.


关于生物气候标准,主要方向被定义为东西向,确保所有的主要房间都能接受早晨的阳光,并通过湿润的区域保护下午的热量。所有封闭的空间都有丰富的自然交叉通风,这些通风口主要面向盛行的风向,在每个房间的较高部分有次要的通风口。面向西面的空间有很高的天花板和cobogós(空心砖),以帮助散去多余的热量,使房子保持足够的凉爽,以避免一年中大部分时间在卧室使用空调,在社交区全年使用空调。
Regarding bioclimatic criteria, the main orientation was defined as east-west, ensuring that all main rooms receive the morning sun and are protected from the afternoon heat by the wet area. All enclosed spaces have abundant natural cross-ventilation provided by the primary openings that are directed towards the prevailing winds and secondary ones in the higher part of each room. Spaces located facing the west facade have high ceilings and cobogós (hollow bricks) to help dissipate excess heat, keeping the house cool enough to avoid the use of air conditioning in the bedrooms for most of the year and all year round in the social area.

通风和阳光都可以通过不同的方式来控制,可以通过木制的铰链百叶窗,也可以通过棕榈草制成的卷帘,在需要的时候还可以在露台上提供隐私。房子离地面约70厘米,这使地板在雨季时不会受潮,而且管道装置很容易接近,以便最终维修。
Both ventilation and sunlight can be controlled in different ways, either by the wooden hinged shutters or by roller blinds made of palm straw, which also provide privacy on the terraces when desired. The house is suspended from the ground by about 70cm, which isolates the floor from humidity in the rainy season and piping installations are easily accessible for eventual maintenance.












Architects: Paloma Siqueira Arquiteta
Area: 222 m²
Year: 2017
Photographs:OKA Fotografia
Manufacturers: Cores da Roça, Deca, Madecol, Nemetscheck, Pau Brasil Marcenaria, Simonassi Bahia, Taurino Silva, Trimble Navigation
Architect In Charge: Paloma Siqueira
Engineering: Renato Manzoli, e DMA Engenharia
City: Maraú
Country: Brazil