Vila Venus Sol是位于马德拉岛Caniço de Baixo地区的一座房子。作为一个翻新项目,它的原始项目从20世纪70年代开始就没有特别感兴趣的特点,而且其建筑质量较差,因此选择通过 "白板 "操作进行全面干预。因此,整个内部被拆除,外部围护结构被整合,其原始体积被恢复,以利用现有的倾斜屋顶提供的高天花板。
Vila Venus Sol is a house located in the area of Caniço de Baixo on Madeira island. Being a renovation whose original project from the 1970s did not have characteristics of particular interest and whose construction was of inferior quality, the option was a total intervention through a “tabula rasa” operation. Thus, the entire interior was demolished, the outer envelope was consolidated and its original volume restored in order to take advantage of the high ceiling provided by the existing sloping roof.




这座房子坐落在一个特殊的位置,就在海的前面,俯瞰着大西洋,它试图将景观带入其内部,同时旨在控制该地区的强烈阳光。在这个意义上,窗户的设计是通过几层构成光线过滤器,控制房子的亮度和温度。同时,这些过滤器通过反射和阴影将周围的绿色环境转移到室内。
Inserted in an exceptional location, right in front of the sea, overlooking the Atlantic Ocean, the house seeks to bring the landscape to its interior while aiming to control the intense sunlight in the region. In this sense, the windows are designed through several layers that constitute light filters that control the house's luminosity and temperature. At the same time, these filters transpose the green surroundings into the interior through reflections and shadows.


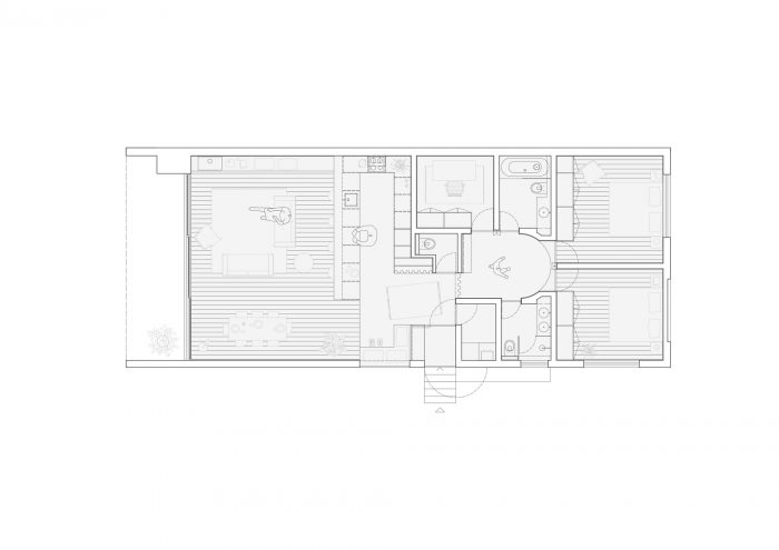
就其组织而言,南北纵轴在私人性质的空间和社会性质的空间之间,在阴影和光线之间建立了一个梯度。
In terms of its organization, the longitudinal axis North-South establishes a gradation between spaces of a private nature and spaces of a social nature, between shadow and light.











Architects: COM/O atelier
Year : 2020
Lead Architects : Joana Duarte
City : Caniço
Country : Portugal