公共行政部门推动的加利西亚历史中心废弃建筑的修复工程,旨在促进加利西亚各城镇最破败的历史中心的城市恢复。这些行动包括收购和随后的修复,用于公共开发的出租房。
The rehabilitation works of abandoned buildings in the historic centers of Galicia promoted by the public administration aim to promote the urban recovery of the most degraded historical centers of different Galician towns. These actions consist of the acquisition and subsequent rehabilitation of properties to be used for publicly-developed rental housing.





我们要修复的建筑位于奥伦塞历史中心最古老和最退化的地区之一。它有两个门面,主门面朝向Rúa do Vilar,后门面朝向一个庭院。干预前,该建筑有3层,底层为商业用途,上面两层为房屋。
The building that we had to recover is located in one of the oldest and most degraded areas of the historic center of Ourense. It has two facades, the main one facing Rúa do Vilar and the back facing a courtyard. Before the intervention, the building had 3 floors, a ground floor for commercial use and a house on the two upper floors.


Rúa do Vilar是一条非常狭窄的街道,宽3.5米,两边都是建筑,所以由于街道本身的部分和西北方向,房子的主立面几乎没有阳光。但是,后立面所开辟的庭院却是房屋的一个重要出口。它的东南方向对房子来说是一个非常积极的价值,因为所有的内部空间将能够在一天中的大部分时间里直接接受阳光。
Rúa do Vilar is a very narrow street, 3.5 m. wide, with buildings on both sides, so the main facade of the house enjoys little sunlight, due to the section of the street itself and its northwest orientation. However, the courtyard to which the rear façade opens is an important outlet for the house. Its southeast orientation is a very positive value for the house since all the interior spaces will be able to receive direct sunlight throughout most of the day.

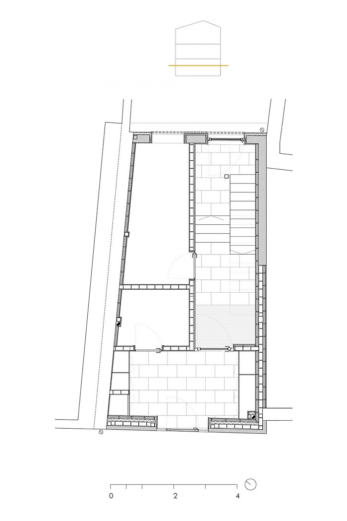
由于该地块的尺寸缩小,我们决定建议建造一栋单体房屋,在底层和两层上开发其程序。底层是房屋的通道和附属设施、储藏室、洗衣房和设施室。二楼是房屋的日间区域,主要朝后院开放,三楼是由两间卧室和一间卫生间形成的夜间区域。
Due to the reduced dimensions of the plot, we decided to propose the construction of a single house that develops its program on the ground floor and on two upper floors. On the ground floor are the access and annexes of the house, storage room, laundry room, and facilities room. The first floor is occupied by the day area of the house open mainly towards the rear courtyard, and on the second floor is the night area formed by two bedrooms and a bathroom.


建议的建筑方案的特点是使用传统和当地的材料,如结构中使用的松木,围墙的轻型框架系统,外部木工和人行道的栗木;非常高的隔热性能,高气密性,由低消耗的空气热和地板加热组成的热装置,以及可控制的机械通风。
The proposed construction solutions are characterized by the use of traditional and local materials, such as the pinewood used in the structure, in the light framework system of the enclosures, and the chestnut wood of the exterior carpentry and the pavement; a very high thermal insulation, a high airtightness, a thermal installation consisting of low consumption aerothermal and underfloor heating, and controlled mechanical ventilation.



在朝向庭院的立面,东南方向,更大的曝光率,一个木格子被设计成一个完全移动的太阳能控制系统,可以调节太阳辐射和房子的过热。
On the façade towards the courtyard, with southeast orientation and greater exposure, a wooden lattice was designed as a completely mobile solar control system that allows regulating solar radiation and overheating of the house.

由于这些都是社会租赁房,我们认为从项目开始就必须尽可能地减少与设施的能源成本相关的经济账单,未来的租户将不得不承担这些费用,所以最终的目标是在任何时候都要以可负担的成本建造一个低消耗的建筑,具有非常低的能源需求和高于法规规定的标准的效率。
As these are social rental housing, we consider it essential from the beginning of the project to reduce as much as possible the economic bill associated with the energy costs of the facilities, which future tenants will have to assume, so the final objective was to at all times, build a low-consumption building at affordable costs, with very low energy demand and an efficiency above the standards established by the regulations.






建筑师:Müller.Feijoo
面积: 140 m²
年份:2020年
照片:Luis Díaz Díaz
制造商:Sika, Knauf, LIVOS, ROCKWOOL
首席建筑师:Estefanía Vázquez Müller. Roi Feijoo
设计团队:Müller.Feijoo
客户:Instituto Galego de Vivenda e Solo. Xunta de Galicia
合作者:Xoán Carlos Malvárez, Roi Fdez. de la Gala
城市:奥伦塞
国家:西班牙Architects: Müller.Feijoo
Area: 140 m²
Year: 2020
Photographs: Luis Díaz Díaz
Manufacturers: Sika, Knauf, LIVOS, ROCKWOOL
Lead Architect:Estefanía Vázquez Müller. Roi Feijoo
Design Team:Müller.Feijoo
Clients:Instituto Galego de Vivenda e Solo. Xunta de Galicia
Collaborators:Xoán Carlos Malvárez, Roi Fdez. de la Gala
City:Orense
Country:Spain