Villa de mûrir是美容策划品牌mûrir的旗舰店,顾客可以在这里体验mûrir的特色美容配对服务。Collective B创造了一个室内设计,作为一个有效的品牌沟通接触点,让千禧一代从日常生活中寻找突破,在这里他们可以探索他们的个人美。
Villa de mûrir is the flagship store of beauty curation brand mûrir at which customers can experience mûrir’s signature Beauty Pairing service. Collective B created an interior design that works as an effective brand communication touchpoint for millenials looking for a break from everyday routine at which they can explore their personal beauty.



设计理念。Villa de mûrir的室内设计概念的灵感来自于mûrir品牌中的关键词。重叠;' 重叠的灵感来自于mûrir的命名。开花的动机和水果的生长过程通过分层的墙壁和重复图案的曲线来表达。
Design Concept. The interior design concept for Villa de mûrir was inspired by keywords derived from the mûrir branding. ‘Overlap;’ Overlap was inspired by mûrir’s naming. The motive of blooming flowers and the growth process of fruits were expressed through layered walls and the curves of repeating patterns.

自由的圆圈。自由圆,象征着mûrir对美的多样性的尊重,以不同的方式应用在天花板上的物体、照明吊灯和墙纸图案。对于每个空间都利用了不同的材料来表达整个空间的品牌形象。颜色。
Free circles. The free circle, symbolizing mûrir’s respect for the diversity of beauty, was applied in various ways with ceiling objects, lighting pendants, and wallpaper patterns. For each space different materials were utilized to express the brand identity throughout the whole space. Color.



粉红色象征着水果和鲜花的盛开之美。匹配不同的使用场景,mûrir粉色被使用在三种不同的色调中。婴儿粉红色被用在化妆店,以减少亮度的影响。桃粉色被应用于美容精选店,以使绿色的mûrir产品尽可能的突出。三种粉红色调中最明亮的珊瑚粉色被用于咖啡馆,其色彩丰富。
The color pink symbolizes the beauty of fruits and flowers in full bloom. Matching different usage scenarios, mûrir pink was used in three different tones. Baby pink was used in the Makeup Shop in order to reduce the effects of luminance. Peach pink was applied in the Beauty Select Shop to make the green mûrir products stand out as much as possible. The brightest of the three pink tones, coral pink, was used in the Cafe with its rich colors.

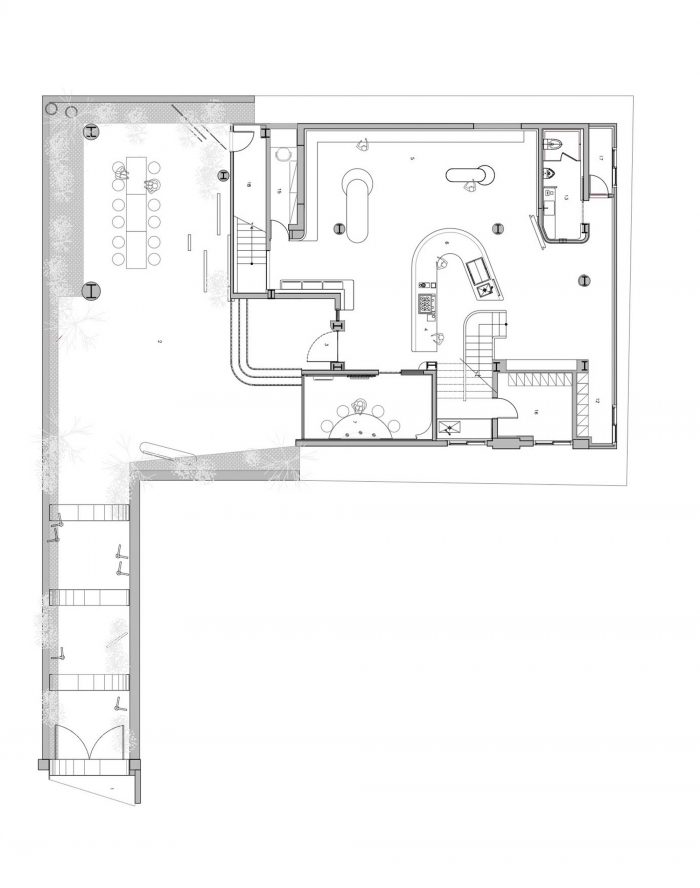
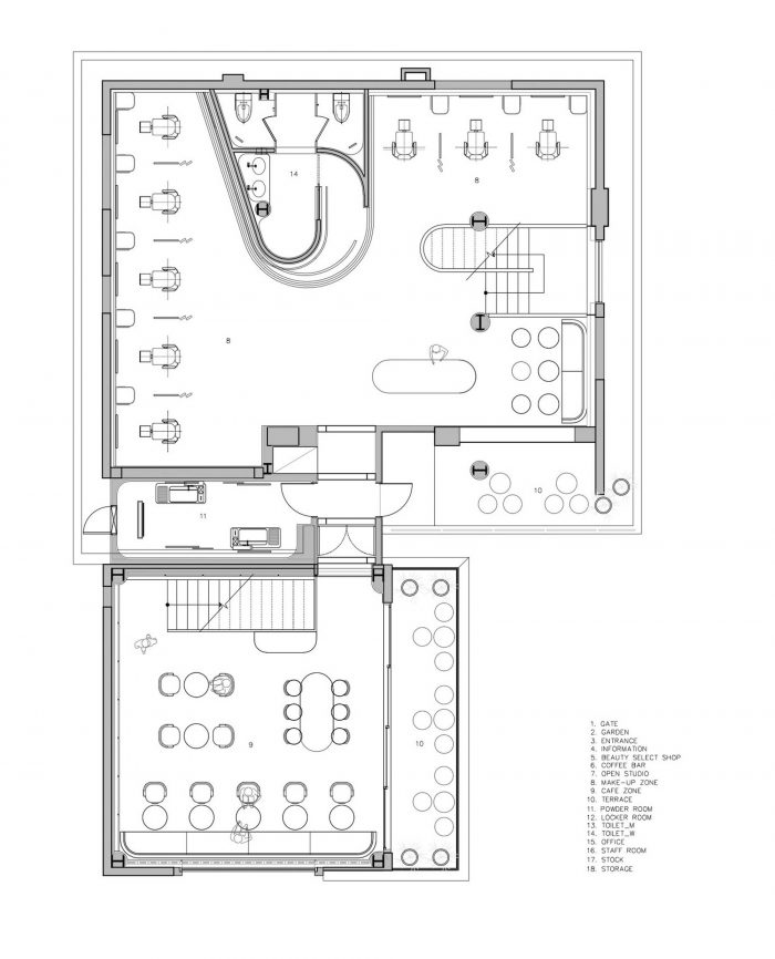
空间方案。Villa de mûrir提供的体验超过了一个普通的化妆品零售店。分布在两层楼的四个程序性部分的安排方式是,无论顾客在空间中的行程如何,都可以随时看到它们。
Space program.The experience Villa de mûrir provides exceeds that of a plain cosmetics retail store. The four programmatic sections distributed on two floors are arranged in a way that they can be seen at any time regardless of the customer journey through the space:

1. 美容精选店展示了mûrir的产品以及其他品牌的精选产品。2. 2. 化妆品商店提供由mûrir开发的五种不同的化妆护理。3. 3.开放工作室为美容youtube内容创作者提供一个制作工作室。4. 4.咖啡馆是为精通SNS的千禧一代而设计的。
1. The Beauty Select Shop presents mûrir’s products as well as curated products by other brands. 2. The Makeup Shop offers five different makeup treatments developed by mûrir. 3. The Open Studio provides a production studio for beauty youtube content creators. 4. The Cafe is designed SNS savvy millennials in mind.

在入口处,天花板上的mûrir自由圆圈物体和叶子形状的物体的装置在街道和实际的零售空间之间架起了15米长的距离,刺激了人们对这个美容策展品牌场地的好奇心。通过这个入口区后,带有透明窗户的开放工作室可以让人了解化妆内容的创作过程。
In the entrance area, the ceiling installation of mûrir free circle objects and leaf-shaped objects bridges the 15 meter long distance between the street and the actual retail space and stimulates curiosity about the beauty curation brand’s venue. After passing this entrance area, the Open Studio with transparent windows allows an insight into the creation process of makeup content.

二楼由化妆区和咖啡厅组成。化妆区感觉像是从公共区域延伸出来的,让参观者自然而然地感觉到与化妆空间的联系,而自动屏幕则为每个站提供了隐私。在化妆椅之间安装了以渐变的mûrir粉色调绘制的物体,以便顾客可以不受干扰地享受化妆服务治疗。
The second floor consists of the Makeup Zone and the Cafe. The Makeup Zone feels like an extension from the public area and allows visitors to naturally feel connected to the makeup spaces, while automatic screens provide privacy at each station. Objects painted in gradual mûrir pink color tones are installed in between the makeup chairs so that customers can enjoy the makeup service treatment undisturbed.

咖啡厅区域的墙面采用了最强烈的mûrir粉色展示。不同大小的mûrir自由圆圈和多色家具以一致的方式清楚地传达了 "活泼美丽 "的品牌信息。
The Cafe area features the strongest exhibition of mûrir pink applied to the walls. mûrir free circles in various sizes and multi-colored furniture clearly communicate the brand message of “Lively Beauty” in a consistent manner.










Architects: Collective B
Area: 562 m²
Year: 2019
Photographs: Young Kim
Manufacturers: AutoDesk, LG Hausys, McNeel, Metal Blossom, Samwoo Aluminum, Seongan D&C, Terraco Korea, Trimble
Engineering: Dawon ID&C Co.
Clients:The Cell Company
Lead Architects:Younjin Jeong, Dongwook Kim
Design Team:Taesu Kim, Seokmi Hong, Yoonjin Lee, Hyuongseok Lee, Minjeong Choi
City:Gangnam-gu
Country:South Korea