Hesar别墅位于马什哈德气候最好的山区之一;该场地的一个特殊规格是它从山顶延伸到河脚,有超过20米的高度差,因此它享有大约4℃的温差。在设计过程中,由于要创造一个内省的空间,并考虑到操作者的隐私,设计师团队考虑了将中心院子转移到山区的经验。
Hesar Villa is situated in one of the best-weather mountainous regions in Mashhad; one of the particular specifications of the site is its stretch from the top of the peak to the foot of the river with more than 20m altitude difference so that it enjoys a temperature difference for 4°C approximately. During the design process, the experience of transferring the central yard to a mountainous area was considered by the designers' team due to creating an introspective space and with the intended privacy of the operator as well.




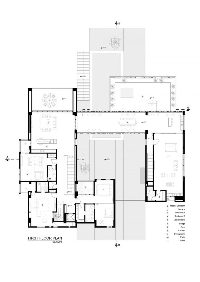
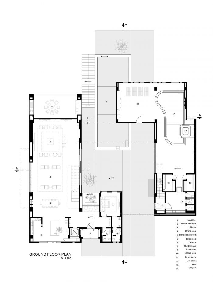
对项目的气候和视觉力量的分析创造了一个在城市有利的东南风方向的斜切面,将两个住宅和休闲区放在其结构中。一座线性桥,一方面与项目的主要景观形成良好的视觉关系,另一方面又与中央庭院相连接。各种类型的阳台和屋顶花园的形状,在这个建筑中具有不同的风格、风味和围合程度。
The analysis of climatic and visual forces of the project created a diagonal cut in the direction of the favorable southeast wind of the city that puts two residential and recreational areas in its structure. A linear bridge that creates a good visual relation with a dominant view of the project on one hand and the central yard, on the other hand, connects these two. Various types of balconies and roof gardens are shaped with different styles, flavors, and degrees of enclosure in this building.


区域的主导风向是从山谷往上吹,上述切口为这个院子提供了芬芳植物的香风,对创造一个平静的区域具有重要作用。院子入口的自动系统使项目的中心院子更加私有化。这个院子在室内和室外周围空间之间创造了视觉和物理关系。
The dominant regional wind direction is from the valley upwards, and the said cut provides a scented breeze of fragrant plants to this yard and has a significant role in creating a calm area. The yard entrance door automatic system makes more privatization for the central yard of the project. This yard creates visual and physical relations between the interior and exterior surrounding spaces.



项目的外部游泳池位于内省和外省空间的中心,具有双重规格,位于当地微风的路径上,这对降低中央庭院的温度具有重要作用。保护最大的绿地和树木一直是设计师团队在堆砌项目时的一个重要因素,所选择的外墙材料(伊斯法罕银石)及其垂直线条使项目与自然兼容,尽管它的尺寸很大,但与树干相似。
The exterior swimming pool of the project is located at the center of introspective and extrospective spaces with a dual specification, on the path of the local breeze, which has a significant role in decreasing the central yard temperature. Preserving the utmost green spaces and trees has been an important factor for the designer's team in piling up the project and the chosen facade materials (Esfahan silver stone) with its vertical lines make the project compatible with nature with its similarity with the tree trunk despite the large size.












Architects: Afshin Khosravian and Associates
Area : 1800 m²
Year : 2023
Photographs :Nimkat Studio
Manufacturers : AutoDesk, GSG ceramics, LG, Mamoli, Mazinoor, PACKMAN, Rak ceramics, Roshana, Trimble Navigation
Lead Architect : Afshin Khosravian
Landscape : Elgreen
Construction : Saman CISE
Design Team : Ghazaleh Davari, Mahsa Sedaghat Sharifi, Mahnaz Dolat Abadi, Sogol Firouz, Susan Sajadian, Fatemeh Karimi, Sabereh Nikoo, Omid Sayah
Graphic Design : Reza Mohtashami ,Zahra Bahra
General Contractor : Mohamadhoseyn Khodaverdi & associats
Site Manager : Hassan Amirfakhrian
Project Manager : Musa Zohour Omid
Supervisor : Vajihe Hosseyni Abrishami
Electrical Engineer : Farzad Mortezayi
Mechanical Engineer : Mr. Rezayi , Mr. Saadat
Program / Use / Building Function : Houses
City : Toroqbeh
Country : Iran