弗里斯兰景观的特点是森林、沟渠、湖泊和广阔的草场。难怪环境会影响建筑。这座具有现代气息的谷仓式房屋就是一个很好的例子,它被固定在景观中,斜放在一个国家纪念碑的后面:是该地块上真正吸引人眼球的地方。
The Frisian landscape is characterized by forests, ditches, lakes, and vast meadows. It is no wonder that an environment influences architecture. A good example of this is this barn house with a modern touch, which was anchored in the landscape, diagonally placed behind a national monument: the actual eye-catcher on the plot.




这个十八世纪的园丁的房子多年来一直作为办公室,几年前他和他的妻子决定住在纪念碑的后面。在具有历史价值的土地上建房需要非常谨慎。别墅矗立在这个地区,仿佛它一直都在那里。它不是一个令人不安的元素,它没有掩盖纪念碑的光芒。如果你不知道它在那里,你就不会想到在这个不起眼的外墙后面隐藏着一整座房子"。
This eighteenth-century gardener's house has been serving as an office for years and a few years ago he and his wife decided to live at the rear of the monument. Building on land that has historical value requires a great deal of care. The villa stands in the area as if it has always been there. It is not a disturbing element, it does not overshadow the monument. If you didn't know it's there, it wouldn't occur to you that there's an entire house hidden behind this modest facade.”

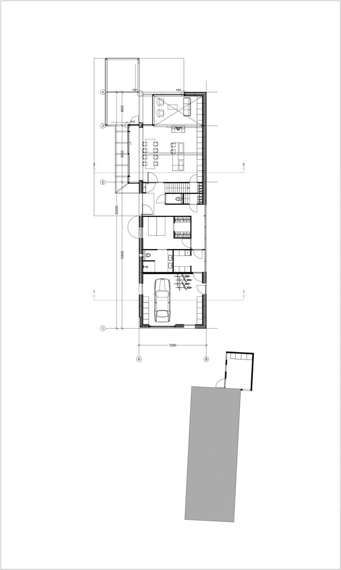
要到达别墅的入口,你必须去到拉长的侧墙。只有这样,你才能看到房子的实际大小。在里面,你立即看到光线和宽敞的空间构成了设计的基础。对细节也给予了很大的关注。就外观而言,衣柜不仅仅是存放大衣和包的地方,金色的元素,如覆盖着石膏的墙壁,以及厕所里的金色瓷砖,是对外墙火焰效果的无声暗示。入口处有一个通往一楼的楼梯,那里为客人提供了空间。再往前走一点,就到了位于一楼的主人套房。它配备了一个步入式衣柜和套房浴室。面向未来的生活是居民们的愿望之一。
To get to the entrance of the villa, you have to go to the elongated side wall. Only then do you see the actual size of the house. Inside you immediately see that light and spaciousness formed the basis for the design. A lot of attention has also been paid to details. In terms of appearance, the wardrobe is more than a place to store coats and bags, and the golden elements, such as the walls covered with plaster, and the gold-colored tiles in the toilet, are a silent hint to the flame effect of the facade. The entrance has a staircase to the first floor, where space has been made for guests. A little further you turn to the master suite on the ground floor. This is equipped with a walk-in closet and en-suite bathroom. Future-proof living was one of the residents' wishes.


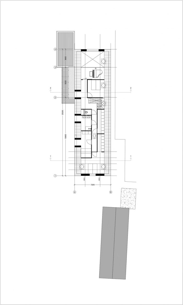
因为房子的后部大部分都是开放的,所以生活区的光线特别好。但是,没有黑暗就没有光明:通过将深色元素,如厨房、窗框和钢制转轴门,与浅色材料,如白色灰泥、浅色橡木人字形地板和白色餐椅相结合,形成了一种令人兴奋的对比。惊喜的效果也体现在细节和装饰上。你会被浮动台面的美丽脉络所吸引,你会注意到在金色的凹槽中对外墙的木材的微妙参考。
Because the rear of the house is for the greater part open, the living areas are particularly light. But without dark, no light: by combining dark elements, such as the kitchen, the window frames, and the steel pivot door, with light materials, such as white stucco, a light, oak herringbone floor, and white dining room chairs, an exciting contrast has been created. The surprise effect is also in the details and the finish. You will be captivated by the beautiful veins in the floating countertop and you will notice a subtle reference to the wood in the facade in the gold-colored notches.


一个现代的房子需要一个现代的布局。客厅、用餐区和厨房彼此之间以及与上层楼之间都是开放式的连接。还有什么地方比夹层更适合摆放三角钢琴呢?伴随着奏鸣曲的甜美声音,同时享受着一杯酒,住户们可以凝视农田数小时之久。如果它是一幅画,你会相信它。
A modern house needs a modern layout. The living room, dining area, and kitchen are in open connection with each other and with the upper floor. What better place for a grand piano than on the mezzanine? Accompanied by the sweet sounds of a sonata while enjoying a glass of wine, the residents can gaze over the farmlands for hours. If it were a painting you would believe it.


从公共街道上看,你几乎看不到这所房子。就规模而言,房子与纪念碑很相称。这两座房子形成了一个对比。谷仓式房屋在细节和材料上都非常简朴,但纪念碑在传统上是用古典装饰品设计的。房屋的装置很微妙。太阳能电池板被放置在屋顶上,这样它们就不会形成一个令人不安的元素,太阳能屏幕也被放置在外墙后面。外墙被包起来了。车库门也被纳入了前立面。通过保持正面封闭,住宅功能位于侧面和后面,可以为大窗户留出空间,既不失去隐私,又能看到广阔的风景,非常壮观。
From the public street, you see little of the house. In terms of scale, the house is well-proportioned to the monument. The two houses form a contrast. The barn house is very modest in detail and material, but the monument has traditionally been designed with classical ornaments. The installations of the house are subtle. The solar panels have been placed on the roof so that they do not form a disturbing element and the solar screens have also been placed behind the facade. The facade is clad in. The garage door is also incorporated into the front facade. By keeping the front closed and the residential functions situated at the side and rear, space could be made for large windows, without losing privacy, but with a spectacular view of the wide landscape.














Architects: Lautenbag Architectuur
Area : 200 m²
Year : 2021
Photographs :Jaro van Meerten
Manufacturers : Concordia Heerenveen, Exasun X-Roof indakzonnepanelen, Rollecate, Siematic, Solano Wonen, Vihta Wellness
Architectural Design : Diana Lautenbag
City : Oranjewoud
Country : The Netherlands