伍德别墅在哥本哈根的郊区脱颖而出,成为如何以气候友好的方式生活和建设的典范。这个现代典型的房子采用大量木材元素(CLT)建造,并通过数字编程进行设计,使设计能够满足各种不同生活模式的家庭--和偏好。
Villa Wood stands out in the suburbs of Copenhagen as an example on how to live and build in a climate-friendly way. Built with mass-timber elements (CLT) and designed through digital programming, this modern archetypic house, makes design possible for a wide variety of families with different living patterns - and preferences.



伍德别墅被开发为现代和可持续建筑类型的 "生活实验室",旨在实现低气候足迹,但对生活质量以及健康的室内气候产生最大影响。在丹麦,住房占建筑总量的很大一部分,我们每天有一半以上的时间是在室内度过的,因此家庭环境对人们幸福的影响是显而易见的。
Villa Wood is developed as a ‘living laboratory’ of modern and sustainable building types that aim for a low climate footprint, but maximum impact on life quality as well as a healthy indoor climate. Housing makes up a large part of the building stock in Denmark, and we spend more than half of our days inside, so the influence of the home environments on people’s well-being, is obvious.


有了大规模木材中的CLT元素,我们可以创造和定制无数变化的房屋,从而满足许多不同的生活方式,健康的室内环境是所有人的共同标准。我们体验到,生活在这种环境中对我们的日常生活有着宝贵的影响。除了环绕我们的良好氛围,我们还体验到更少的过敏',NORD建筑事务所的合伙人和建筑师Morten Rask Gregersen说,他住在Villa Wood。
’With CLT elements in mass-timber, we can create and customize houses in countless variations and thus meet a lot of different ways of living, with a healthy indoor environment as a common denominator for all. We experience that living in this environment has a valuable effect on our everyday lives. Besides the nice atmosphere that surrounds us, we also experience fewer allergies’ says Morten Rask Gregersen, partner and architect at NORD Architects and living in Villa Wood.

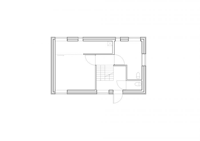
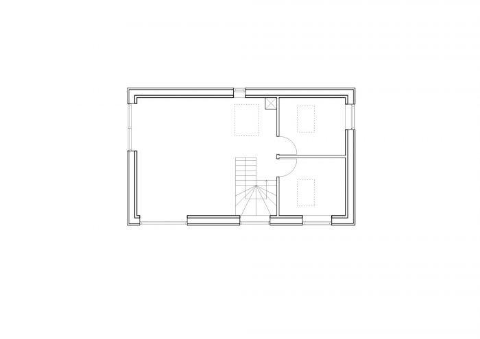
变化和定制,以匹配不同的生活模式。木质元素可以被切割和配置成许多星座,在尺寸、空间、功能和房间之间的连接方面有许多变化。该房屋基于3D细节设计和数字生产方法,为几种类型的独立式单户住宅让路,也可以按比例用于大型住房。该方法提供了有效的设计管理,这对大型开发项目是有益的。对于较小的住房,它邀请个人共同创造和合作,建筑师和客户可以在密切的对话中开发和定制类型,这主要是为了满足个人客户的需求和梦想。
Variations and customization to match a diverse range of life patterns. The wood elements can be cut and configured in many constellations with numerous variations of size, space, function, and connections between rooms. The house is based on 3D detailing and digital production methods that make way for several types of detached single-family dwellings and can also be scaled for larger housing. The method provides efficient design management, which is beneficial in larger developments. For smaller housing, it invites individual co-creation and cooperation, where the architect and client can develop and customize typologies in a close dialogue that is focused on the needs and dreams of the individual client.

人、生活模式、场所和地点的多样性要求进行实验和定制,以满足现代和可持续的生活方式,并创造健康的建筑环境,让人们茁壮成长,欣赏长期的生活。Villa Wood是为拆卸而设计的,所以所有部件都有可能被重新使用。灵活性、原则的变化、共同创造和优化都是我们所追求的这个生活和创意实验室的要素。
The diversity of people, life patterns, places, and sites call for experiments and customization to meet modern and sustainable ways of living and to create healthy built environments where people thrive and appreciate living for a long period of time. Villa Wood is designed for disassembly, so all parts are potentially destined for reuse. Flexibility, variations on principles, co-creation, and optimization are all elements of this living and creative laboratory we aimed for.

有趣的是,你可以通过数字设计和生产方法,在一个具有原型特征的建筑中融入和转移可识别的和独特的东西。从草图到制作,或从起源到结果,似乎没有质量上的损失。基本的想法是非常明显的。莫滕-拉斯克-格雷格森继续说:"木材中的元素使这个特征轮廓如此精确和鲜明。
‘It’s interesting how you can incorporate and transfer the recognizable and unique in a building with archetypical characteristics through digital design and production methods. It seems like there is no loss in quality from sketch to production or from origin to the outcome. The basic idea is very visible. The elements in the wood make this characteristic silhouette so precise and distinct, Morten Rask Gregersen continues.

在施工和可扩展设计方面的优势。在这所房子里,元素在内部用碱液处理,创造出明亮和自然的室内环境,与房子外部覆盖的炭化松木形成对比。炭化法是日本传统的保护形式,取代了有毒的浸渍法--shou sugi ban。维京人也用这种方法来保护他们的木制建筑。外部覆层使作为独立屋的体积的轮廓和几何形状更加清晰。
Advantages in construction and scalable design. In this house, the elements are treated with lye on the inside to create bright and natural interiors, in contrast to the charred pine that the house is clad with on the exterior. The charring method is a traditional Japanese form of protection that replaces toxic impregnation – shou sugi ban. The same was used by the Vikings to protect their wood constructions. The exterior cladding sharpens the profile and geometry of the volume as a detached house.



实木构件可以在几天内组装完成,这意味着在现场的施工成本较低,并且与暴露的开放式建筑相比,减少了天气的影响。
The solid wood elements can be assembled in a few days, which means lower construction costs on site and reduces the weather impact compared to an exposed and open construction.



固体稳定的木质元素的紧凑性、容易组装、材料浪费少、重量轻,使可持续生活的优势显而易见。这个位于郊区的家庭住宅展示了可持续发展和典型设计的愿景,可以很容易地从草图发展到实现一个定制的房子,具有丰富的生活质量和对气候的影响。
The compact nature of the solid and stable wood element, the easy assembly, the low material waste, and the lightweight, make the advantages of sustainable living evident. This family house in a suburban area shows how the vision of sustainable and archetypical design, can easily develop from a sketch to the realization of a customized house with generous amounts of life quality and a responsible impact on climate
















Architects: NORD Architects
Area : 180 m²
Year : 2019
Photographs :Adam Mørk
Mass Timber Elements : Lilleheden A/S
City : Copenhagen
Country : Denmark