亭子的项目从提供开放空间的前提下开始,同时也要避免影响该地区的强烈阳光和雨水。该建筑位于一个原有的高原上,设计时考虑到了它与现有房屋和它所在的山谷的关系,激活了两座建筑之间的中间空间,同时提供了当地茂盛的地理环境的新视野。这些空间由四个尺寸相同的结构模块组成。3x4.5米,每个模块有13.5平方米的面积。
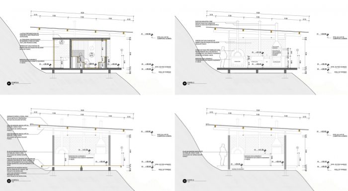
The project for the pavilion started from the premise of providing open space and, at the same time, protected from the strong sun and rain that affect the region. Located on a pre-existing plateau, the building was designed regarding its relationship with the existing house and with the valley on which it lies, activating the intermediate space between the two buildings while offering a new view of the lush local geography. The spaces are organized by four structural modules of identical measures: 3x4.5m, each with 13.5m² of area.


第一个模块,更接近原有的建筑,被设计为侧重于使其更接近外部花园的品质,与外部地面处于同一水平,并由直接植入地面的木片覆盖。在这个模块中,安装了两个吊床。第二个模块接受了铸木结构的地板处理,并有一张用于集体用餐的大桌子,而第三个模块包含了设置在预制混凝土板上的厨房设备。在第四个也是最后一个模块中,分配了砖石结构的封闭墙:桑拿、浴室和储藏室。
The first module, closer to the preexisting construction, was designed to focus on qualities that bring it closer to an external garden, on the same level of the exterior ground and covered with wooden pieces implanted directly on the ground. In this module, two hammacs are installed. The second module received a floor treatment with cast wood structure and a large table for group meals, while the third module contains the kitchen equipment set on a slab in prefabricated concrete. In the fourth and last module were allocated the enclosed walls of made of masonry: sauna, bathroom, and storage.

这四个模块总面积为54平方米,由一个宽大的金属盖板保护,并有一个斜坡。大面积的盖板向山谷缓缓倾斜,将与新建筑平行的绿色斜坡带入室内空间。一个木质结构元素的框架被设计为探索金属盖板所允许的最大跨度,产生了保护内部循环的阳光和雨水的屋檐。不同的结构系统的关联以这样一种方式发生,以探索它们各自的特点。
The four modules totalize 54m² and are protected by a generous metallic cover in a single slope. The large cover plane slopes gently towards the valley, bringing into the interior space the presence of the green slope that rises parallel to the new construction. A frame of structural elements in wood has been dimensioned to explore the maximum spans allowed by the metallic cover, generating eaves that protect the internal circulation of the incidence of the sun and the rain. The association of different structural systems occurs in such a way as to explore the characteristics of each of them.


地基是用模压混凝土就地建造的,方便了它的施工过程,并将其他建筑元素与该地的强湿度隔离。支柱和横梁是由实木制成的,利用了这种系统通常的限制和措施。3米长的柱子和6米长的横梁。在桑拿区,木质支柱被由预制混凝土瓦片连接的砖石结构墙取代。上层木质框架和垂直元素--砌体支柱和墙壁--之间的所有连接都是通过一个简单的 "U “形金属片实现的,它保证了金属罩的顺利倾斜。
The foundations were built in molded concrete in-place, facilitating its construction process and isolating the other constructive elements from the strong humidity of the place. The pillars and beams are made of pieces of solid wood that exploit the limitations and measures that área usual for this kind of system: 3m long pillars and 6m beams. In the sauna area, the wooden pillars are replaced by structural masonry walls connected by precast concrete tiles. All the connections between the upper wooden frame and the vertical elements - masonry pillars and walls - were realized with a simple "U" shaped metal piece that guarantees the smooth inclination of the metallic cover.







Architects: gru.a
Area : 150 m²
Year : 2016
Photographs :Federico Cairoli
Lead Architects : Caio Calafate, Pedro Varella, Sergio Garcia-Gasco, André Cavendish
Structural Project : Rodrigo Affonso
Lighting Project : Maneco Quinderé
Constructor : Aleandro Souza da Silva
City : Araras
Country : Brazil