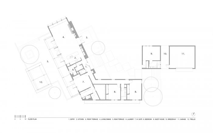
为了利用倾斜的地形并创造一种 "地方 "感,这个3400平方英尺的住宅被拉开成两翼,创造了一个中央花园空间,使人们能够进入主屋。村庄般的构图感觉在相对无特色的场地上建立了一种场所感。
To engage the sloping topography and to create a sense of “place”, this 3,400sf residence was pulled apart into two wings that create a central garden space that orients one to the entry of the main house. The village-like feel of the composition establishes a sense of place on the relatively featureless site.




在入口处,简单的标志性金属屋顶元素由防火护墙板覆盖,并由一个彩色雪松特征提升--主要的北景立面由钢制遮阳板和钢制窗墙覆盖,增加了构图的生动性。钢制和木制的棚架和拱廊有助于为房屋遮挡夏季的烈日,并使冬季的阳光能够深入到居住空间。
Simple iconic metal-roofed elements clad in fire-proof siding are elevated at the entry by a stained cedar feature - adding to the animated nature of the composition is the primary North view elevation clad in a steel sunshade and steel window wall. Steel and wood trellises and arcades help to shelter the house from the hot summer sun and are designed to allow the low winter sun to penetrate deep into the living spaces.


主要的生活空间采用了最小化的渲染,包括暴露的天花板结构、钢拉杆、石膏板墙、定制的木质橱柜以及木质和混凝土地板。暗示项目的现代主义倾向,主生活空间的自由规划性质与家庭生活区的蜂窝状结构形成空间对比。
Main living spaces were minimally rendered with exposed ceiling structure, steel tie rods, gypsum board walls, custom wood cabinetry, and wood and concrete floors. Alluding to the project’s modernist leanings, the free-plan nature of the main living space contrasted spatially by the more cellular makeup of the family living areas.


客户要求住宅对环境负责,便于维护,并能防火。为此,被动式太阳能策略、可持续收获的木材、复合护墙板、金属屋顶、钢材、木制门窗和板状混凝土都是项目的组成部分。
The clients requested a residence that was environmentally responsible, maintenance-friendly, and fire-resistant. To that end - passive solar strategies, sustainably harvested wood, composite siding, metal roofing, steel, clad wood windows and doors, and board-formed concrete are all integral to the project.

严格的工艺和安静的材料丰富感在整个项目的内部是显而易见的,而外部材料的克制调色板为项目提供了一种静态的感觉。
Exacting craft and a quiet sense of material richness are evident throughout the interior of the project and the restrained exterior palette of materials provided a sense of stasis for the project.











Architects: Nick Noyes Architecture
Area : 3490 ft²
Year : 2018
Photographs :Cesar Rubio
Manufacturers : Crittall Windows, James Hardie, Kolbe & Kolbe Milwork, Milgard
Contractor : Tim Agapoff Construction, Tim Agapoff -Tim Agapoff Construction
Structural : Duncan Engineering Inc, Dave Duncan - Duncan Engineering Inc
Principal Architect : Nick Noyes
Senior Associate : Michael Perkins
Program / Use / Building Function : Single Family Residence
Country : United States