V_Itaim是由工作室mk27在圣保罗设计的一栋拥有10套公寓的小楼。它的简洁性和对宽大空间的追求,以及对材料的精心组合,是这个建筑项目的导向。
V_Itaim is a small building with 10 apartments in São Paulo designed by studio mk27. Its simplicity and the search for generous spaces in a careful composition of material oriented the architectural project.




建筑的外立面采用了裸露的钢筋混凝土和木板,旨在为内部环境遮阳,居民可以根据自己的意愿移动。通过这种方式,用户可以根据他们的使用情况和太阳的照射情况来优化他们的舒适度。
The façade of the building is done in exposed reinforced concrete and wooden panels, conceived to shade the inner environments and which the residents can move according to their desires. In this way, the users can optimize their comfort depending on their use and the incidence of the sun.

元素中的木材有穿孔的方形图案,不阻挡风,就像阿拉伯的muxarabis,为巴西殖民建筑带来,然后被现代主义者使用。这种解决方案的结果是非常舒适的温度。
The wood in the elements have perforated squared patterns and do not block the wind, just as the Arabian muxarabis, brought over for Brazilian colonial architecture and then was later used as well by the modernists. This solution results in very pleasant temperatures.

暴露的混凝土指的是圣保罗的野蛮主义类型的建筑。木头形状的材料有自己的生命,正如巴西现代主义大师Lina Bo Bardi建筑师所说的 "一个活的有机体"。板条的质感--在阳光的照耀下--为较大的檐口产生了令人惊讶的诗意效果。
The exposed concrete refers to the brutalist-type buildings of São Paulo. The material done in the shape of wood has its own life, “a living organism” as Architect Lina Bo Bardi, the master of Brazilian modernism said. The texture of the slats – when lit by the sun – produces a surprising and poetic effect for the larger gables.

公寓的多功能性使得工厂可以根据家庭的需求重新布置,就像在一个完全开放的阁楼或一个楼层的两个卧室一样。起居室朝东,有大面积的玻璃窗,增加了与外部的关系。这种环境与一个3米乘3.7米的露台完全融合在一起,因为它延长了公寓的生活区域。其中一个木质元素滑动到这个露台,以遮蔽环境或给空间更大的隐私,没有任何封闭的配置,并以这种方式给人一种外部空间的感觉。
The versatility of the apartments makes it possible for the plant to be rearranged according to the needs of the family, just as much in a totally open loft or one floor with two bedrooms. The living room – facing east – has large panes of glass which increase the relation with the outside. This environment integrates fully with a terrace that measures 3m by 3.7m, as it lengthens the living area of the apartments. One of the wooden elements slides to this terrace to shade the environment or give greater privacy to the space, without any closing configuration and in this way gives the feeling of an external space.

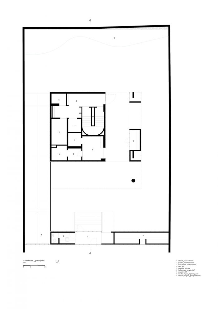
与客厅和卧室的大跨度相连,有一个垂直流通和公用设施的刚性核心。这个核心的位置靠近建筑的一侧,以减少电梯或楼梯对平面的干扰。
Joined to the great span of the living room and bedrooms there is a rigid nucleus of vertical circulation and utilities. This nucleus was positioned near the side of the building to minimize the interference of the elevators or stairs on the floor plan.

底层被提升在细长的柱子上,使得这一层也有更大的室内和室外的整合--花园。
The ground floor is lifted on slender columns allowing this floor to also have greater integration between the indoors and outdoors – the garden.

V_Itaim是一栋只有13层的城市现代建筑,通过材料的使用以及植物和立面的建筑解决方案,创造出多功能和动态的建筑,为居住者提供舒适和功能性的空间,并与外部空间进行了极大的整合。
V_Itaim is an urban contemporary building of only 13 floors which, through the use of the material as well as the architectural solutions of the plant and façade, create versatile and dynamic architecture, comfortable and functional for the dwellers with great integration of the spaces with the outside.




















建筑师:Carolina Castroviejo, Studio MK27 - Marcio Kogan
面积:3305平方米
年份:2014年
摄影:Pedro Vannucchi
制造商:panoramah!®
城市:圣保罗
国家:巴西
Architects: Carolina Castroviejo, Studio MK27 - Marcio Kogan
Area: 3305 m²
Year: 2014
Photographs: Pedro Vannucchi
Manufacturers: panoramah!®
City: São Paulo
Country: Brazil