实现这个项目的主要动机是通过在该地区增加具有环境和生态意义的元素的存在,来改善该地区的宜居性和生活质量。该公园位于一个独特的后工业基地,夹在Vizafogo预制房屋区和新的Agora办公大楼之间。
The primary motivation behind the realization of this project was to improve the livability and quality of life in the neighborhood by increasing the presence of environmentally and ecologically significant elements in the area. The park is located on a unique post-industrial site wedged between the Vizafogo prefabricated housing block and the new Agora office buildings.



尽管该地区的去工业化始于20世纪末的社会主义Vizafogo住宅区等项目,并持续到2000年的Agora办公大楼等大型开发项目,但工业铁路的旧址至今仍然空置。
Even though the de-industrialization of the area began in the late 20th century with projects like the socialist Vizafogo housing block and continued into the 2000s with large developments such as the Agora office complex, the former site of the industrial railways remains vacant to this day.

在当地社区的鼓励下,市长办公室挺身而出,改变了该地块的分区,从而使Vizafogo公园项目得以实现。该公园是一个独特功能的组合,以满足各种娱乐活动。它的中心组织属性是一个不对称形状的湖泊,由于岸边散布着生物多样性的植物,它具有生态自洁能力,而且它也有能力改善当地的小气候。
The Mayor’s Office stepped up, as encouraged by the local community, and changed the zoning of the site, thus allowing for the Vizafogo Park project to be materialized. The park is a combination of unique features that cater to various recreational activities. Its central organizing attribute is an asymmetrically shaped lake, which has an ecologically self-cleaning ability thanks to the biodiverse plant life scattered along its shore, and it has the capacity to improve the local microclimate, too.

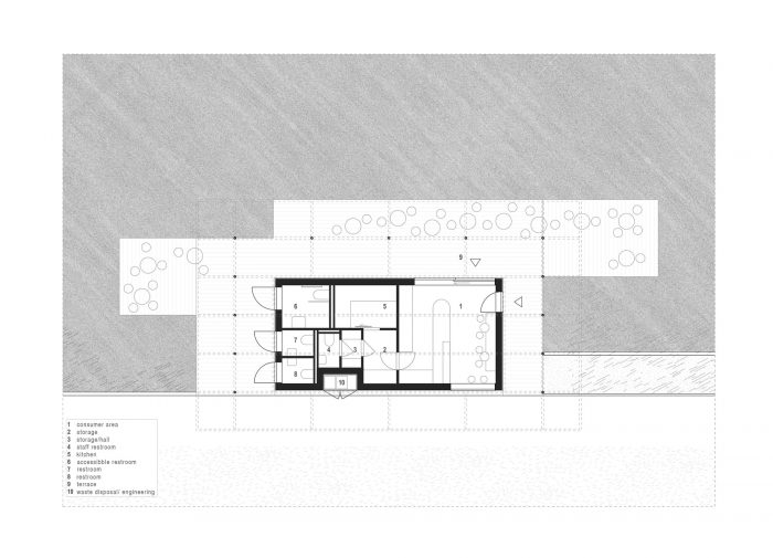
亭子在伸入湖中的轻型码头上找到了自己的位置。锯齿形的凉棚和凉棚下紧凑的木制咖啡屋使凉亭具有独特的特征,使它与周围更坚固的环境区分开来。
The pavilion found its place on a lightweight pier reaching into the lake. The sawtooth pergola and the compact wooden cafe house underneath it lends the pavilion a distinctive character, setting it apart from its more robust surroundings.


创建一个既有利于当地生态又有利于社区的公园的愿望也被带入了Vizafogo馆的设计中,其中材料和建筑技术在将建筑定位为公园的可持续发展理念的延伸方面发挥了重要作用。
The aspiration of creating a park that benefits both the local ecology and the community was also carried into the design of the Vizafogo Pavilion, where both the materiality and the building technology played an important role in positioning the building as an extension of the sustainable ideology of the park.







Architects: ARCHIKON ARCHITECTS
Area : 1962 m²
Year : 2021
Photographs :Balázs Danyi
Lead Architect : Csaba Nagy, Károly Pólus
Landscape Architecture : Objekt Landscape Architecture Office
Structural Engineer : Tetraplan Mérnökiroda Kft
Building Engineer : PHQ Kft
Electrical Engineer : ENOVA Consult Kft
Contractor : Miskolczy Energiaterv Kft
Architect : Bianka Varga, Miklós Batta
Program / Use / Building Function : Pavilion
Client : Budapest Capital 13th District Mayor's Office
City : Budapest
Country : Hungary