通过大约40年的急剧重建,德黑兰已经从一个拥有无限花园和独栋住宅的城市,变成了一个拥有无限公寓楼的城市。在城市结构中发生的这一重大生活方式的变化,影响了共同所有权、隐私、安全、领土、集体记忆等问题,最重要的是生活空间的质量。德黑兰目前的计划大多是由开发商建造的,他们的主要标准是容易建造、方便和成本,影响了空间质量。这种方法塑造了一个没有背景根基或故事的大都市。这就是德黑兰目前的城市景观。该项目的主要挑战是建筑如何能描绘出另一种生活方式,解决从单户住宅到公寓楼的过渡。
Through drastic re-building in about 4 decades, Tehran has gone from a city of infinite gardens with its single-family dwellings, to a city of infinite apartment blocks. This significant lifestyle change that has occurred within its urban fabric, has impacted issues such as shared ownership, privacy, safety, territory, collective memory, and most importantly, the quality of the living space. Tehran’s current schemes are mostly constructed by developers, whose main criteria are ease of construction, convenience, and cost, compromising spatial quality. This approach has shaped a metropolis with no contextual roots or stories to tell. This is Tehran’s current cityscape. The main challenge of the project is how architecture can portray alternative ways of living, addressing the transition from a single-family dwellings to apartment buildings.





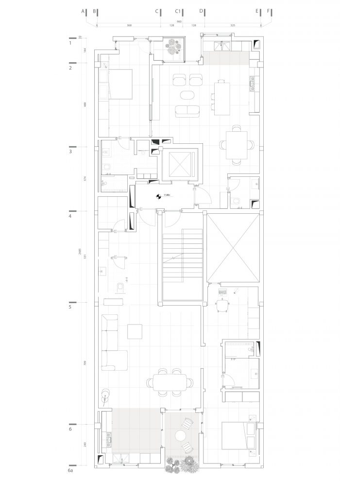
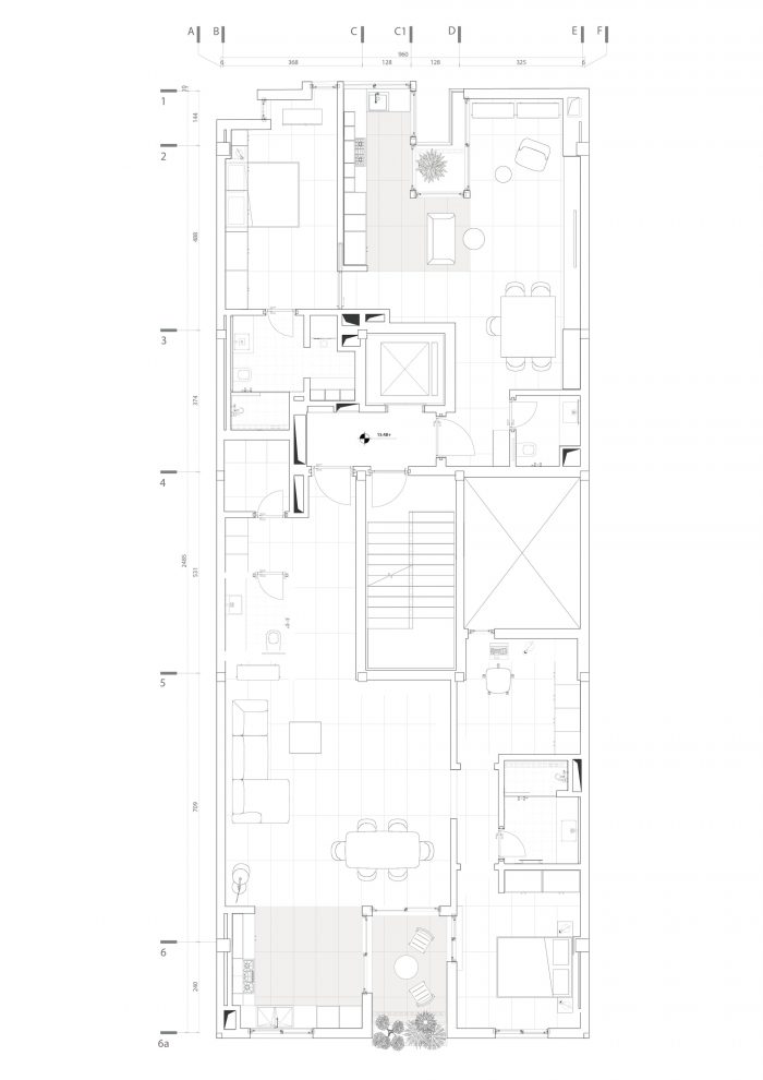
VOID+是Maryam Pousti的第一个住宅方案。它试图为传统的居住模式和密集的城市生活提供一个替代方案,这导致了封闭的建筑围护结构,缺乏与环境的对话。VOID+位于一个极其狭窄的场地上,由5层的10个单元组成。该项目的突出特点是在北侧立面上战略性地雕刻了一个亲密的空隙,试图让建筑与周边环境接触。空隙的体量在建筑的天际线和它的脚之间创造了一个垂直流。主入口被定义为一个特殊的时刻,即空隙的垂直度变成了一个沿建筑长度延伸20米的水平平面。这个水平平台连接了街道层面和后花园,允许在附近进行公共活动。
VOID+ is the first residential scheme by Maryam Pousti. It tries to offer an alternative to conventional models of habitation and dense urban living which has resulted in closed-up building envelopes that lack a dialogue with their context. Situated on an extremely narrow site, VOID+ consists of 10 units on 5 Floors. The striking feature of the project is an intimate void strategically carved into the north façade in an attempt to engage the building with its periphery. The massing of the void creates a vertical flow between the skyline of the building and its feet. The main entrance is defined by the particular moment when the verticality of the void turns into a horizontal plane that is stretched 20 meters along the length of the building. This horizontal platform connects the street level to the back garden, allowing for communal activities in the neighborhood.


这里的目的是重新定义建筑的领土,并吸收一个单家独户的房子,在没有僵硬边界的干扰下扩展到周围环境中。建筑的内部布局显示了与外墙的深层结构和体积的联系;这种语汇贯穿整个项目。并列的空隙体量通过变换的视角和视野提供了游戏性,使室内和室外的边界得以同时体验。内部和外部之间的捉迷藏是通过实体和空隙的相互作用来进行的,挑战了暴露和隐私的概念。每层楼有两个单元;使噪音和隐私成为长方形楼梯间定位的驱动力,楼梯间作为一个缓冲区,防止单元之间的声音和直接的视觉接触。
The aim here is to redefine the building’s territory and to assimilate a single-family house that expands into its surroundings without the interference of rigid borders. The interior layouts of the building reveal a deep structural and volumetric connection to the façade; a vocabulary that is used throughout the project. The juxtaposed volumes of the void offer playfulness through shifting perspectives and views, allowing the interior and exterior boundaries to be experienced simultaneously. The Hide-and-seek between inside and outside takes place through the interplay of solid and void, challenging notions of exposure and privacy. There are two units on each floor; making noise and privacy driving forces in the positioning of a rectangular stairwell, which acts as a buffer to prevent sound and direct visual contact between the units.

每个单元都围绕着一个亲密的阳台,这被视为一个室内花园。这里有一个材料的安排,以及饰面和纹理的层次,这是对与工匠合作的价值的赞扬。这在外墙的梳状水平水泥图案中很明显,它也是雨水的导体,保持建筑表皮的清洁。门把手、栏杆、照明设备和橱柜都被巧妙地整合到建筑的细节中。在这个项目中与不同背景的制作人合作,提醒人们建筑是强烈参与和时间的产物。
Each unit sits around an intimate balcony, which is perceived as an interior garden. There is an arrangement for materials and a hierarchy of finishes and textures, which celebrates the value of working with artisans. This is evident in the combed horizontal cement pattern of the façade, which also acts as a conductor of rainwater, keeping the building skin clean. Door handles, railings, lighting fixtures, and cabinets have been skillfully integrated into the architectural detailing of the building. Collaboration with makers of different backgrounds in this project is a reminder that buildings are a product of intense engagement and time.




























Architects: Studio Pousti
Area : 1947 m²
Year : 2021
Photographs :Parham Taghioff , Deed Studio
Manufacturers : Hansgrohe, Blanco, Muuto, prostoria, Avandad co, Silestone
Lead Architects : Maryam Pousti
Structure Engineers : Sajadian Engineers
Phase Ii Drawings : Melika Dezvarei
Concept Design : Sepehr Jafari, Amir Bakhshi
Visualisation : Soheil Shadi
City : Tehran
Country : Iran