在贝绍的南部山坡上有这唯一的农舍。它很古老,拥有村子里最突出的位置。建筑方面的挑战是拆除旧的马厩,并为客户和他的家人扩建一栋三层的现代木屋。剩余的正面建筑由叔叔居住。该项目是对如何解决当地大量空置的农舍问题的一个回答。我们的目标是创造一个以减少和谨慎的方式出现的建筑。它显然不是一个马厩,但为什么它只有三个开口?
There is this only farm house on the southern hillside of Bezau. It is old and has the most prominent site of the village. The architectural challenge was to remove the old stable and extend the building with a modern wooden house on three floors for the client and his family. The remaining front building keeps inhabited by the uncle. The project is one answer on how to solve the local issue of a high number of vacant farm houses. The goal was to create a building which appears in a reduced and discreet manner. It is obviously not a stable, but why does it have only three openings?





人们从东边接近这所房子。驶下山坡后,人们会到达一个小广场,在建筑和车库建筑之间延伸开来,它完全建在山坡上,为两个住房单元服务。这个广场也是孩子们的游乐场,夏天有树荫。两个入口的门,两个不同的木质外墙,新旧之间的交叉线在这一刻变得很明显。东侧是部分翻新的旧楼,西侧是新楼。都被同样的新屋顶所覆盖,建立在白色抹灰的基础上。
One approaches the house from the east. After driving down the hillside one reaches a small square, stretched out between the building and the garage building, which got completely built in the hillside and serves both housing units. This square is also the children’s playground, shaded in summer. The two entrance doors, the two varying wooden facades, the intersection line between old and new become obvious at this moment. The partially renovated old building on the east side, the new building on the west side. All covered by the same new roof, built on a white plastered base.

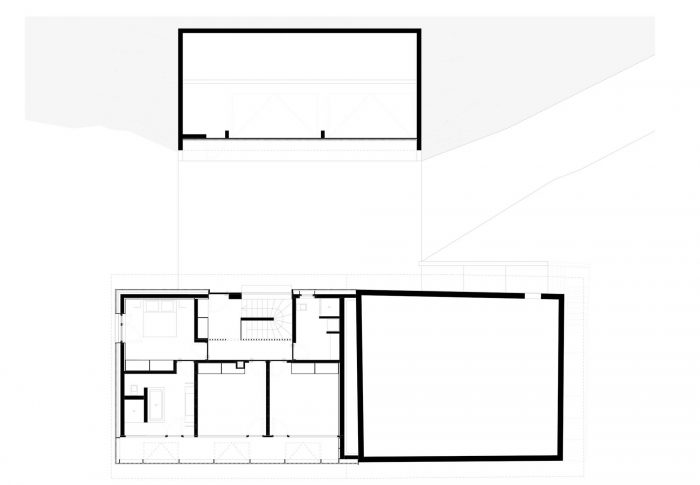
新房子的主要内部材料是裸露的混凝土和银杉,这是当地常见的木材。带有木条的楼梯可以过滤光线,并连接所有三层楼--上面是入口房间、卧室和浴室,中间是厨房、餐厅和客厅,下面是桑拿房。室内的宽敞空间让人惊讶,所有的房间都可以看到壮观的山景。线索是每层楼都有不同的遮阳方案。睡房和浴室从地板到天花板都有玻璃窗,通向一个小阳台。
The main interior materials of the new house are exposed concrete and silver fir, the common regional wood. The staircase with its wooden bars filters the light and links all three floors - the entrance room, sleeping- and bathrooms on top, the kitchen, dining- and living room in between and the sauna underneath. The interior surprises with generous rooms, all with a spectacular look into the mountains. The clue is the varying shading solution on each floor. The sleeping- and bath rooms have glass windows from floor to ceiling, leading on a small balcony.

阳台被锥形的木条包裹着。这样可以过滤光线,扩大人们看外面的角度。在每个房间的前面,都有一个折叠式百叶窗可以打开,让人看到没有任何过滤的景色。厨房、餐厅和生活区设置在一个宽敞的房间里。巨大的木窗可以沿着南侧打开。阳台成为室内的延伸。建筑物唯一的大开口在这层楼的南面,一年四季都可以直接看到风景。谨慎的慷慨。
The balcony is wrapped with conical wooden bars. This filters the light and extends the angle one is able to look into the outside. In front of each room a folding shutter can be opened to allow a view without any filter. Kitchen, dining and living area are set in one spacious room. The huge wooden windows can be opened along the south side. The balcony becomes the extension of the interior. The only large opening of the building is on the south façade of this floor and allows a direct view into the landscape all year round. Discreet generosity.

















Architects: firm architekten
Area: 240 m²
Year: 2018
Photographs: Adolf Bereuter
Manufacturers: Lapitec®, Georg Bechter Licht, Klafs, Living Divani
City:BEZAU
Country:Austria