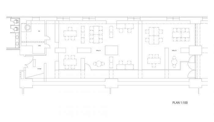
近年来,人们试图对一栋仓库建筑进行各种改造,在这栋建筑里,曾经有一家传奇的迪斯科舞厅 "朱莉安娜的东京",在20世纪90年代初作为东京海滨的象征而存在。然而,位于二楼的前迪斯科舞厅的阁楼部分长期以来一直没有被动过,因为它的天花板高度很低,只有2.1米,横梁下只有1.7米,造成空间的压抑感。
In recent years, various renovation projects have been attempted for a warehouse building, at which a legendary disco, “Juliana's Tokyo”, once existed as a symbol of the Tokyo waterfront in the early 1990s. However, the attic part of the former discotheque on the second floor remained untouched for a long time, since it had a low ceiling height of 2.1m with only 1.7m under the beams, causing an oppressive feeling in the space.



我们的设计旨在创造一个具有浮动墙和支柱的开放空间。梁和其他组件被重新考虑为不同的空间组件,并在空间中被重新定义。
Our design intended to create an open space with floating walls and pillars. The beams and other components were reconsidered as different spatial components, and were redefined in the space.



天花板被拆除,梁现在作为漂浮的墙壁环绕着空间,而灯光被用来加强漂浮的感觉。租户个人空间的分隔物是附着在墙体下方的透明玻璃。漂浮的墙体也被放置在入口处的休息室里,并作为书架或柜台的办公桌使用。毗邻入口休息室的 "租户A "区在视觉上实现了统一和开放的感觉,而后面的 "租户B "则由一个单一的空间组成,整个墙壁都是浮动的。过去象征着压抑的阁楼式空间像墙面上的云一样被改造,并重新成为一个令人印象深刻的空间。
The ceilings were removed, and the beams now surround the space as drifting walls, while lights are used to enhance the sense of floating. Dividers of individual spaces for tenants are transparent glass attached beneath the wall volume. Floating walls are also placed in the entrance lounge, and function as shelves or counter desks. The “Tenant A” zone adjacent to the entrance lounge visually achieves a sense of unity and openness, and the “Tenant B” in the back consists of a single space where the entire walls are floating. The oppressive attic-like space of a symbol of the past was transformed like a wall cloud, and regen erated as an impressive space.









Architects: Ryuichi Sasaki / Sasaki Architecture
Area: 195 m²
Year: 2014
Photographs: Takumi Ota
Lighting Design: Kazuhiro Nagashima, CHIPS LLC + Natsuha Kameoka, Lighting Sou
Leasing Management:E-Sohko Group
Contractor/Manufactures:E-Sohko Group + Urban Plan
Light:Lighting Sou
Producer/Client:Re-SOHKO, Hiroo Ikeda
Architect In Charge:Ryuichi Sasaki
City:Minato
Country:Japan