客户的主要要求是有一个位于水月山上的茶亭,不需要人工空调系统来实现空间的热舒适。但由于它位于这座山顶,建筑完全暴露在来自南方的阳光和来自东北的强风下。
The client’s main request was to have a tea pavilion located on Watermoon Mountain that does not require artificial air conditioning systems to achieve thermal comfort in the space. But due to its location on top of this hill, the building is completely exposed to the sun from the south and the strong winds coming from the northeast.



设计采用了两块交错的、朝南的弧形混凝土板,有助于控制气流,并将舒适的南风引入空间。两块弧形板之间的垂直错位和遮盖前面平台的水平混凝土板使太阳辐射进入空间,在寒冷的季节冲刷茶桌的表面。
The design uses two staggered, south-facing curved concrete plates that help to control the airflow and introduce a pleasant southern wind into the space. The vertical dislocation between the two curved plates and the horizontal concrete plate that canopies the front platform allows solar radiation into the space washing over the tea table’s surface during the colder season.


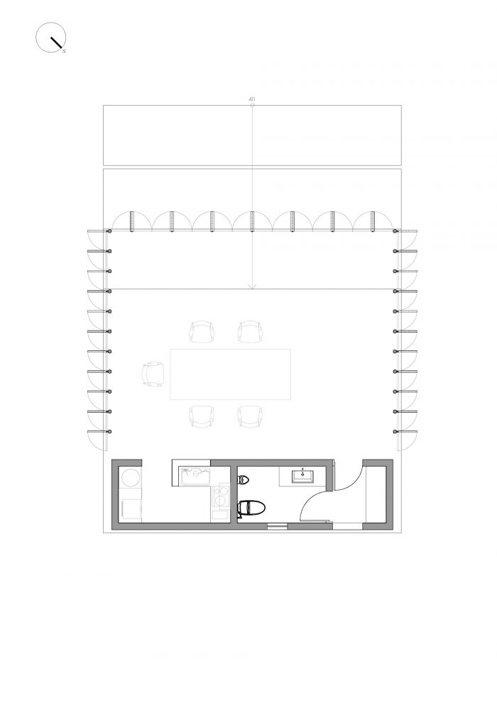
位于北面立面的三角形缅甸柚木格子阻挡了来自东北方向的强烈的不愉快的风。
The triangular-shaped Burmese Teak wood lattice located on the north facade blocks the strong unpleasant winds coming from the northeast.


同样由缅甸柚木制成的旋转门位于计划的周边,可以更好地控制光线,并将气流直接引入主休息空间。
The pivoting doors also made of Burmese Teak wood are located on the perimeter of the plan allowing for better control of the light and direct airflow into the main lounge space.


亭子作为一个岛屿矗立在一个椭圆形的水塘中间,东侧高出水面60厘米,西侧高出30厘米。水池上的水平变化允许自然的水流,并有助于改善空间的舒适度,增加在炎热季节流入空间的空气的相对湿度。
The pavilion stands as an island in the middle of an oval-shaped water pond elevated 60cm over the water level on the east side and 30 cm on the west side. The level changes on the pond allow for a natural water flow and help improve the space comfort, increasing the relative humidity in the air that flows into the space during the hot season.




















Architects: Behet Bondzio Lin Architekten
Area: 94 m²
Year: 2017
Photographs:YuChen Chao Photography
Manufacturers: Carl Hansen and Son, Catellani & Smith, Toto
Landscape Design: Behet Bondzio Lin Architekten
Lighting Design: LHLD Lighting Design
Project Management: Hui Yin Ko
Electrical & Plumbing Engineering: Hongcheng Hydropower Engineering Company
City: Changhua City
Country:China