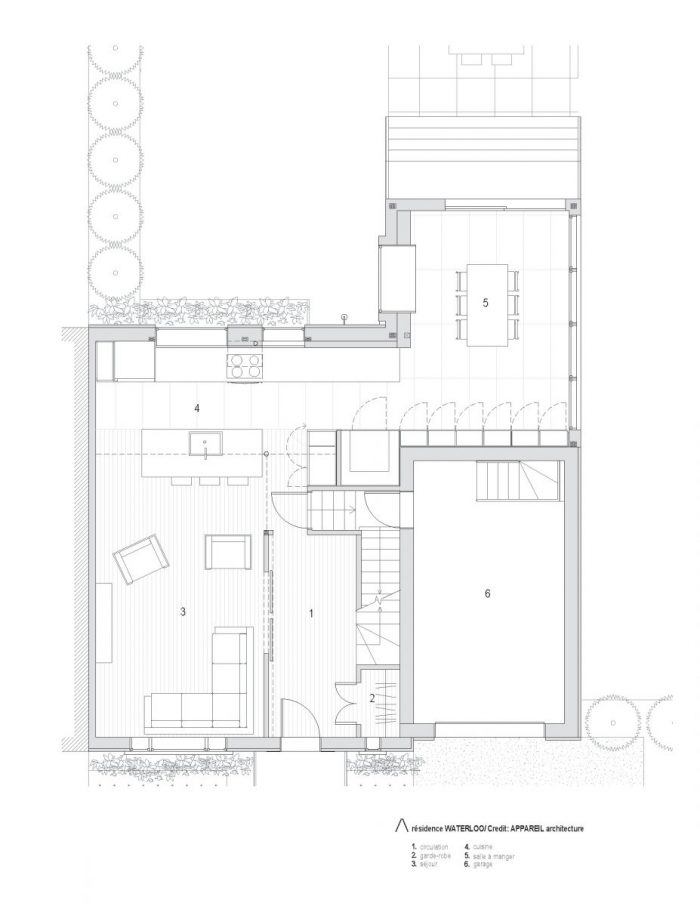
对于这个项目,APPAREIL建筑团队获得了翻新其公用空间的授权。利用照明设备在后院提供独特的景观。在内部,厨房经过重新设计,以促进新旧元素之间的对话。响应业主希望保留深色地板,集成材料更加明亮和中性。与这个完美无暇的白色环境形成鲜明对比的是,中央木质模块的表面采用木板条纹。由核桃木制成,该元素带来了一丝温暖,与现有的木地板搭配。它可以作为餐具柜和餐具室储藏所有必需品。空间因此畅通无阻,看起来更加宽敞。改造进一步延伸到整个一楼,使空间通透,以及营造温馨的房间。
For this project, the APPAREIL construction team was authorized to renovate its public space. Use lighting to provide a unique view in the backyard. Internally, the kitchen has been redesigned to promote dialogue between old and new elements. Responsive owners want to keep dark floors, and the integrated materials are brighter and more neutral. In sharp contrast to this flawless white environment, the surface of the central wooden module is made of wood stripe. Made of walnut wood, this element brings a touch of warmth to the existing wooden floor. It can be used as a sideboard and pantry to store all the necessities. The space is therefore unobstructed and looks more spacious. The renovation extends further to the entire first floor, making the space transparent and creating a welcoming room.












Design: APPAREIL
Photographer: Félix Michaud
Architecture: APPARATUS Architecture
Light fixtures: Hamster
Contractor: Simlande Construction
Cabinetmaker: Ebenisterie CST Enr, Steve Tousignant
Floe Chair: APPARATUS Workshop
Table and chairs: Kastella