瓦滕斯地区发展目的地公司是丹尼尔-施华洛世奇KG公司和瓦滕斯集镇的公私合作项目,于2015年在前施华洛世奇工厂大院 "Werk 2 "落成,这是一个为创始人和新创公司提供的国际中心。该项目被命名为 "Werkstaette Wattens"。
The Destination Wattens Company for Regional Development, a public/private partnership between the Daniel Swarovski KG and the Market Town Wattens, was inaugurated in 2015 in the former Swarovski factory compound “Werk 2”, an international center for founders and start-up companies. The project is named “Werkstaette Wattens”.


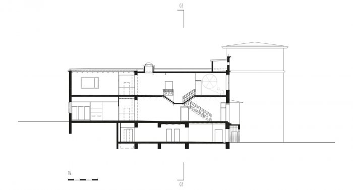
6号楼建于1906年,带有世纪之交早期工业建筑的典型元素。在一个类似于宫殿的外墙后面,有室外通道的楼梯,室内分布楼梯引入了四个 "抛光车间"。钢梁和水泥拱顶承载着楼梯间和平台,铸铁柱和木质天花板定义了 "抛光车间 "的特征。 多年来,清晰的结构和简单的空间顺序已经消失了。设计的目的集中在恢复原来的结构,使原来的空间序列重见天日,并增加明显的独特的新元素。
Built in 1906, Building 6 carries the typical elements of early-industrial architecture around the turn of the century. Behind a palazzo-like façade with outdoor-access stairs, the indoor distribution staircase introduces four “polishing workshops”. Steel beams and cement vaults carry stairwells and platforms, cast-iron columns, and wooden ceilings define the character of the “polishing workshops”. Over the years, the clear structure and the simple spatial sequence had vanished. The design´s aim has focused on regaining the original structure, bringing back to light the original spatial sequences, and adding clearly distinctive new elements.



公共区域。改造涉及到楼梯的外壳,即地板、墙壁和天花板。楼梯井和平台已经恢复到原来的状态。通过拆除空心墙和覆盖物,自然光的照射通过干预得到了恢复。
Public Areas. The renovation involved the staircase shell, namely the floor, walls, and ceiling. Stairwells and platforms have been brought back to their original state. By demolishing hollow walls and claddings, the natural light exposure has been restored by the intervention.


抛光车间. 在 "抛光车间 "里,地板、墙壁和天花板结构都保持了原来的状态,只有一些适应性的边际措施是例外。
Polishing Workshop . In the “polishing workshop” the floor, walls, and the ceiling-structure have been kept in their original condition, with exceptions made for a few marginal measures for adaptation purposes.


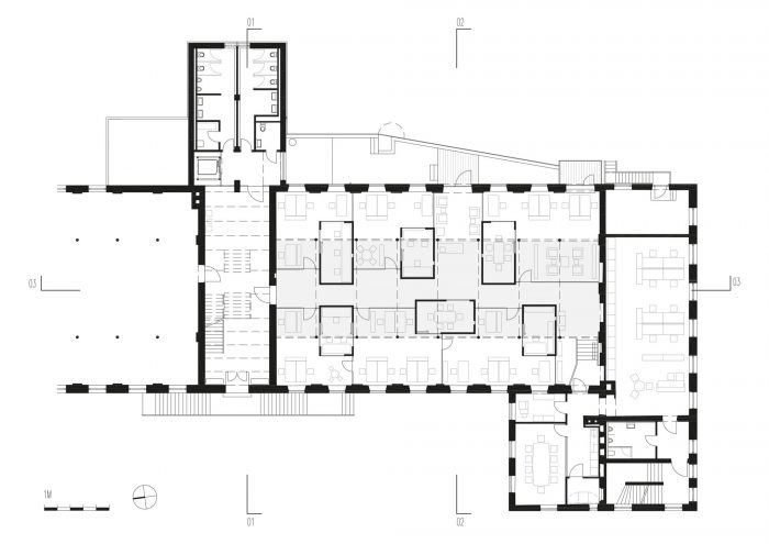
大尺寸的玻璃墙隔开了新的办公单元,每个单元都配备了一个木箱作为 "休息区"。每个箱体单元的内部都用橡木板覆盖,而外壳则涂有白色的抛光清漆。开放空间的原始 "外壳 "和极简主义的新 "内置元素 "之间的对比被有意地上演了。
Large-size glass walls separate the new office units, each one equipped with a wooden box as a “retreat area”. Each box-unit interior is clad with oak panels, while the outer shell is coated with white polished varnish. The contrast between the raw “original shell” of the open space and the minimalistic new “built-in elements” has been intentionally staged.

木箱和玻璃墙定义了一个蜿蜒的流通区,一个空间扩大和缩小的微妙序列,通向一个共享的小厨房和一个相邻的户外露台。两个 "光束",在房间的两边延伸到整个长度,为办公空间提供直接和间接的光线。
Wooden boxes and glass walls define a meandering circulation zone, a subtle sequence of spatial widening and narrowing, leading to a shared kitchenette with an adjacent outdoor terrace. Two “light beams”, extending on both sides of the room over the complete length, provide the office spaces with direct and indirect light.


车间和服务空间。在一楼,房间被改造成了车间单元。对于 "瓦滕斯车间 “的所有用户,还做了进一步的补充:一个新的轮椅坡道、存储区和淋浴。
Workshops and serving spaces. On the ground floor, rooms have been adapted to house workshop units. For all occupants of the “Workshops Wattens”, further additions have been made: a new wheelchair ramp, storage areas, and showers.
















Architects: Schlögl & Süss Architekten, obermoser + partner architekten
Area : 1200 m²
Year : 2018
Photographs :David Schreyer
Lead Architects : Johann Obermoser, Hanno Schlögl, Thomas Gasser
General Engineering : ZSZ-Schauer
Electrical Engineer : Ingenieurbüro Kainz Planung GmbH
Building Physics : Spektrum Bauphysik & Bauökologie GmbH
Lighting Consultant : A3 Jenewein Ingenieurbüro für Elektrotechnik
Design Team : Johann Obermoser, Hanno Schlögl, Thomas Gasser, Hanspeter Freisinger, Lukas Trenkwalder, Harald Brutscher (Renderings
Wooden Boxes : Holzmanufaktur und Vitrinenbau Auer GmbH
Building Services : Ingenieurbüro Kainz Planung GmbH
City : Wattens
Country : Austria