瓦滕斯地区发展目的地公司是丹尼尔-施华洛世奇KG公司和瓦滕斯集镇的公私合作项目,于2015年在前施华洛世奇工厂大院 "Werk 2 "落成,这是一个为创始人和新创公司提供的国际中心。该项目被命名为 "Werkstaette Wattens"。
The Destination Wattens Company for Regional Development, a public/private partnership between the Daniel Swarovski KG and the Market Town Wattens, was inaugurated in 2015 in the former Swarovski factory compound “Werk 2”, an international center for founders and start-up companies. The project is named “Werkstaette Wattens”.



6号楼建于1906年,带有世纪之交早期工业建筑的典型元素。在一个类似于宫殿的外墙后面,有室外通道的楼梯,室内分布楼梯引入了四个 "抛光车间"。
Built in 1906, the building 6 carried typical elements of early-industrial architecture around the turn of the century. Behind a palazzo-like façade with outdoor-access stairs, the indoor distribution staircase introduces four “polishing workshops”.



钢梁和水泥拱顶承载着楼梯间和平台,铸铁柱和木质天花板定义了 "抛光车间 "的特征。多年来,清晰的结构和简单的空间顺序已经消失了。
Steel beams and cement vaults carry stairwells and platforms, cast-iron columns, and wooden ceilings define the character of the “polishing workshops”. Over the years, the clear structure and the simple spatial sequence had vanished.



本设计的目的在于恢复原来的结构,使原来的空间序列重见天日,并加入明显的独特的新元素。
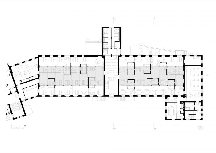
一般说明。6号楼和7号楼的第一次扩建是在2017/2018年进行的,2019年之后,5号楼和6号楼被重新改造为办公区。
The design ́s aim has focused on regaining the original structure, bringing back to light the original spatial sequences, and adding clearly distinctive new elements.
General Notes. The first extension of buildings 6 and 7 took place in 2017/2018, and 2019 followed by the re-conversion of buildings 5 and 6 into office space.


6号楼,研磨室。6号楼的重新改造采用了与第一个重新改造阶段类似的方法,通过释放原有的大空间,使其恢复到原来的状态。新的办公单元用玻璃墙隔开,每个办公室的两边都有一个毡盖箱,作为撤退区,改善了房间的声学效果。
Building 6, Grinding Rooms. The re-conversion of building 6 was carried out with a similar approach as for the first re-conversion stage, by freeing the original large spaces and bringing them back to their original state. The new office units have been separated with glass walls, each office with a felt-cover box on both sides as a retreat area, improving room acoustics.


位于1楼的研磨室被划分为几个办公组。现有的铸铁沥青地面已被打磨,铸铁柱子被涂成深灰色,天花板为浅灰色,墙壁被磨光。
The grinding room on the 1st floor is divided into several office groups. The existing cast iron asphalt floor has been sanded, the cast-iron columns have been painted dark grey, the ceilings in light grey, walls have been milled.

水平结构的玻璃元素在办公室之间提供了视觉庇护。照明系统包括两个直接和间接的光束,延伸到整个长度。在公共区域,灯光元素被整合到现有的天花板横梁中。
二楼。二楼的研磨室被作为一个开放空间使用。
Horizontal structural glass elements provide visual shelter between offices. The lighting system consists of two direct and indirect light beams extending over the whole length. In common areas, light elements have been integrated within existing ceiling beams.
2nd Floor. The grinding room on the second floor is used as an open-space.


墙壁、天花板和柱子都被涂成白色。
Walls, ceilings and columns have been painted white.


在这个带有落叶松木地板的白色房间里,放置了两个黑色的毡箱,以形成不同用途的房间。
In this white room with a larch wooden floor, two black felt boxes are placed in order to form rooms for different purposes.

一个作为呼叫中心的区域被玻璃墙所包围。房间的声学问题是由悬挂在天花板上的声学挡板解决的。
An area serving as call centre has been framed by glass walls. Room acoustics are solved by acoustic baffles hanging from the ceiling.





Architects: obermoser + partner architekten
Area : 850 m²
Year : 2019
Photographs :David Schreyer
Lead Architects : Johann Obermoser, Thomas Gasser
General Engineering : ZSZ-Schauer
Electrical Engineering : Ingenieurbüro Kainz Planung GmbH
Building Physics : Spektrum Bauphysik & Bauökologie GmbH
Lighting Consultant : A3 Jenewein Ingenieurbüro für Elektrotechnik
Design : Tobias Reitzner
Execution : Hanspeter Freisinger
Renderings : Harald Brutscher
Wooden Boxes, With Felt Cladding : Holzmanufaktur und Vitrinenbau Auer GmbH
Building Services : Ingenieurbüro Kainz Planung GmbH
City : Wattens
Country : Austria