We Coffee是一家具有东方风格的咖啡店,拥有个性化的产品和多样化的自信咖啡、茶、糖果和小吃。
We Coffee is an oriental-influenced coffee shop, with personalized products and a diverse menu of confident coffees, teas, sweets, and snacks.




对于它在巴西的第二家店,位于圣保罗的Jardins Paulista社区,我们设计的空间与我们在Liberdade社区开发的第一家店的原则相同,具有沉浸式、简约和现代的空间,始终使用白色色调的材料和纹理。通过这种方式,该空间使得突出那些大多色彩鲜艳、具有独特形状和口味的食品成为可能。
For its second store in Brazil, located in the Jardins Paulista neighborhood in São Paulo, we designed the space based on the same principle as the first store we developed in the Liberdade neighborhood, with an immersive, minimalist, and contemporary space, always using materialities and textures in white tones. In this way, the space makes it possible to highlight foods that are mostly colorful and have unique shapes and flavors.


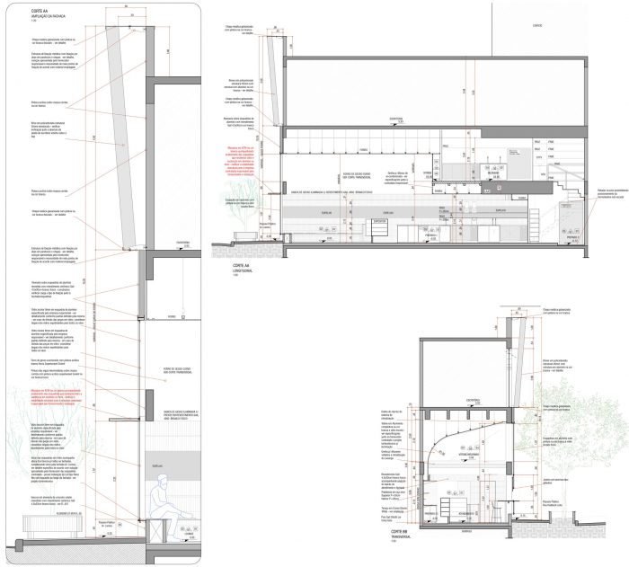
曲线元素是项目氛围的一部分,无论是天花板还是布局,以及弯曲的陶瓷涂层,都在感官上扩大了顾客的体验。
Curved elements are part of the project's atmosphere, whether in the ceiling or in the layout, as well as in the curved ceramic coating, sensorial expanding the customer's experience.

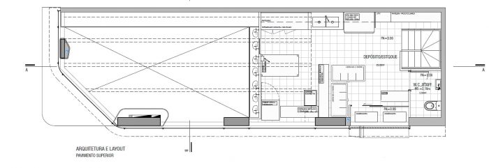
通过专门为咖啡馆设计的桌子和设计师Marcelo Caruso的椅子,我们用中性和复杂的元素来组织布局。
With tables designed exclusively for the café and chairs by designer Marcelo Caruso, we organized the layout with neutral and sophisticated elements.

我们还通过设计垂直遮阳板为立面带来了宏伟的感觉,这有助于底层和夹层的视觉语言的连续性,确保Alameda Lorena和Haddock Lobo街角的咖啡馆更加突出。
We also brought grandeur to the façade by designing vertical sunshades that help in the continuity of the visual language of the ground floor and mezzanine, ensuring greater prominence for the cafeteria on the corner of Alameda Lorena and Haddock Lobo.












Architects: ENTRE Arquitetos, byn studio
Area : 100 m²
Year : 2019
Photographs :Manuel Sá
Manufacturers : Boobam, Gail revestimento, Portobello
Lead Architect : Vinícius Capella
Project Team : Vinícius Capella, Daniele Capella, Bittor Monasterio, André Furtado e Gabriela Sthefany
Lighting Design : Studio Iris
City : São Paulo
Country : Brazil