该项目象征着城市和农村环境的融合。它是为一个生活在城市混乱中的小家庭设计的,他们被剥夺了新鲜空气和自由感,但非常愿意与乡村生活重新联系。这个建筑环境的核心理念是保留我们的祖先在他们的时代曾经拥有的朴素的本质,并通过承认区域背景、文化和乡土策略的当代设计方法,将其中的一些东西超越给下一代人。
The project symbolizes a fusion between urban-rural environments. It has been designed for a small family living in the midst of urban chaos, who are deprived of fresh air and a sense of freedom but very much willing to reconnect with the bucolic life. The core idea of this built environment is to preserve the essence of the simplicity our ancestors once had back in their times and transcend some of that to the next generations through contemporary design approaches that recognize regional context, culture, and vernacular strategies.



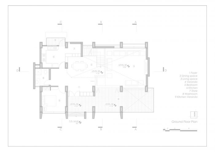
这个周末度假胜地可容纳三间卧室、两个家庭生活空间(一个在底层,另一个在夹层)、用餐空间、厨房、书房和一个看守室。总体规划的分区已经划定,保留了所有现有种植的树木。此外,通过紧凑的设计减少了建筑的占地面积,使整个场地尽可能的绿色和自然。
This weekend retreat accommodates three bedrooms, two family living spaces, one on the ground level and the other on the mezzanine level, dining space, kitchen, study room, and a caretaker room. The zoning of the master plan has been delineated, keeping all existing planted trees in place. Moreover, the building footprint has been reduced through compact design to leave the entire site as green and natural as possible.



建筑物被放置在东西方向,这使得最大限度的微风从南方进入,并减少太阳热量的摄入。然而,这种朝向使建筑暴露在南面的阳光和季风雨中。阳台和走廊在这里发挥了关键作用,创造了从室外到室内的缓冲区。它们保护室内生活空间免受阳光和雨水的直接照射。在温暖潮湿的地区,这种不同形式的半户外空间对于舒适度和创造室内外环境之间的对话来说是至关重要的。不同层次的阳台和游廊通过连接周围稻田内外的乡村环境,提供不同的空间体验。
The building is placed in east-west orientation, which allows maximum breeze to get in from the South and reduces the solar heat gain. However, this orientation exposes the building to the south sun and driving monsoon rain. Balconies and verandas play a pivotal role here to create the buffer from outdoor to indoor. They protect the indoor living space from direct sun and rain. Such semi-outdoor spaces of different forms are fundamental in warm, humid regions in terms of comfort and creating a dialogue between the indoor and outdoor environment. Balconies and verandas at different levels provide different spatial experiences by connecting to the surrounding rustic environment within and beyond the surrounding paddy field.

中央的生活和餐饮空间是建筑的核心,由于其双高的体积特性,始终保持着自然凉爽。建筑北侧的可操作高窗允许上升的热空气出去,并引起内部的压力变化,在整个空间创造持续的交叉通风,这在这样一个潮湿的气候中至关重要。
The central living and dining space is the kernel of the building, which due to its double-height volumetric nature, always stays cool naturally. Operable high windows on the north side of the building allow rising heated air to go out and induce a pressure variation inside, creating constant cross-ventilation across the space, critical in such a humid climate.

传统上,"Kachari Ghar "的概念是孟加拉国农村建筑中的一种普遍做法。这个项目以图书馆的形式体现了这种理念。这个单一的房间作为一个带有书籍储存的书房,似乎漂浮在设计的水体上,在这个地方和周围创造了一种宁静的感觉。景观是用当地的普通树木和植物重新创造的,这些树木和植物被选为与当地环境的微妙融合。
Traditionally, the “Kachari Ghar” concept was a widespread practice in the rural architecture of Bangladesh. This project carries that idea in the form of a library. This single room which serves as a study room with book storage, seemingly floats over the designed water body, creating a sense of tranquility in and around the place. The landscape has been recreated with locally-sourced common trees and plants, which has been selected as a subtle blend of the local environment.



主要的建筑材料是来自当地的气烧砖。裸露的砖被用来唤起一种坚固的触感。家具和门窗都使用了当地的木材。为了最大限度地减少材料的浪费,剩余的碎砖被作为砖屑用于场地内景观铺装块的浇筑工作。主要的结构系统是一个带有支撑承重墙的柱梁框架。 为了保留整个砖的真实表达,设计了一个复合柱,用RCC包围一层砖。倒置的梁支撑着屋顶,它的好处有两个方面。首先,它给出了一个无梁的干净的天花板,特别是在内部双高的空间。其次,屋顶上的倒梁有助于保留填土,用于屋顶绿化和种植。
The prime building material is gas-burnt brick which is sourced locally. Exposed brick has been used to evoke a robust tactile feeling. Local woods are used for the furniture and door windows. In order to minimize material waste, leftover broken bricks have been used as brick chips in casting work for landscape pavement blocks in the site. The main structural system is a column-beam frame with supporting load-bearing walls. To preserve the true expression of brick throughout, a composite column has been designed with RCC surrounded by one layer of bricks. Inverted beams support the roof, and its benefit is twofold. Firstly, it gives a beam-free clean ceiling, especially in the interior double-height space. Secondly, the inverted beam on the roof helps to retain filled earth for rooftop green and planting.

在材料和劳动力的采购过程中,当地的农村人被优先考虑。没有经验的当地工人接受了培训,以便准确地使用材料。在施工过程中,这种优先权帮助当地的穷人挣钱并得到培训,这有助于大大降低项目的供应和运输成本。这个周末别墅的设计打算通过拥抱自然来回应自然,通过其表达方式成为景观的一部分,并唤起居住者的归属感。建筑的抽象性、形式表达和空间体验受到区域背景、文化和乡土策略的强烈驱动。
Local rural people were given priority in the procurement process of materials and workforce. Inexperienced local workers have been trained to work precisely with materials. During construction, this prioritization helped the poor people of the locality to earn money and get trained, which helped to reduce project costs of supply and transportation significantly. The design of this weekend house intends to respond to nature by embracing it, becoming part of the landscape through its expression, and evoking a sense of belonging to its occupants. The architectural abstraction, formal expression, and spatial experiences are strongly driven by the regional context, culture, and vernacular strategies.















Architects: Lightscape Architects
Year: 2018
Photographs: Noufel Sharif Sojol
Manufacturers: AutoDesk, Adobe, RAK, Trimble
Design Team:Mohammad Abdul Kader, Mohammad Ridwan Tanvir
Structural Engineer:Rakibur Rahman
Electrical Engineer:Niloy Das, Humaiun Kabir
Contractor:Humaiun Kabir
Site Manager:Arman Rahman Rana
Wood Contractor:Komol
Architects:Lightscape Architects
Country:Bangladesh