这座提供现代化工作环境的建筑是奥格斯堡新兴创新园的第一个组成部分,是一个将工作和研究领域结合起来的地方。因此,它的概念是针对研究和技术部门的初创企业和公司。除了开放式的工作空间设计、餐饮和底层的当地商店外,屋顶上的共享会议中心、日托中心和许多数字智能功能确保该建筑提供用户所需的一切。
The building providing modern working environments is the first component of the emerging innovation park in Augsburg, a place bringing together the worlds of work and research. Consequently, its concept is aimed at start-ups and companies from the research and tech sectors. In addition to the open-plan workspace design, catering, and local shops on the ground floor, a shared conference centre on the rooftop, a day-care centre, and many digital smart features ensure that the building offers everything its users need.



该建筑的独特特征源于其整体的创新方法。这种方法实现了以下几个方面的综合:充满活力的形式,向外界传达用户的动态;通过社会文化的混合使用和建筑的LEED白金认证,实现高水平的可持续性;具有不同特点的工作环境的高感觉因素;提供访问建筑所有智能功能的租户应用程序;以及通过微妙的香味产生振奋效果的空气概念,同时过滤病菌和病毒,从而促进员工的健康。
The building’s unique characteristic stems from its holistic approach to innovation. This approach achieves a synthesis of a vigorous form that conveys the user dynamics to the outside world, a high level of sustainability through a socio-cultural mix of uses and the building’s LEED Platinum certification along with a high feel-good factor of the working environments with varying characteristics, a tenant app providing access to all of the building’s smart features, and an air concept that has an invigorating effect thanks to subtle scenting, while at the same time filtering germs and viruses and therefore promoting the health of the employees.


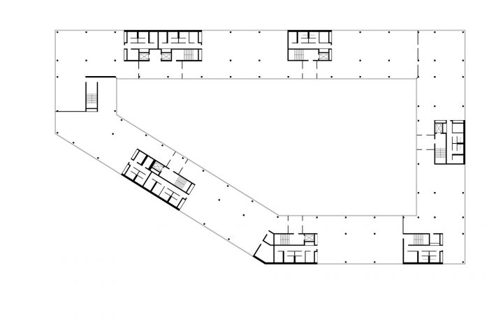
工作是多种多样的,需要不同的框架条件,不仅仅是在办公桌前进行,而且也可能是有趣的!在这里,我们可以看到各种不同的用途。各种各样的用途在建筑中汇集,形成一个单元,或者说是一个充满活力的共存。任何事情都可以做:单元可以从最小的空间开始出租,但也可以水平或垂直地组合,创造出高达3000平方米的面积。每个单元内都有最大的灵活性:空间没有承重横墙,辅助房间被安置在楼梯口。可能的布局包括从单独的办公室到带有中央区域的组合办公室,再到开放式办公室或具有非常不同工作氛围的最先进的办公景观。
Work is versatile, requires variable framework conditions, does not only take place at a desk, and may also be fun! A variety of uses come together in the building, forming a unit or rather a vibrant coexistence. Anything goes: units can be rented from the smallest of spaces, but can also be combined horizontally or vertically to create areas of up to 3,000 m2. There is maximum flexibility within each unit: the space is free of load-bearing transverse walls, and ancillary rooms are positioned at the staircases. Possible layouts range from individual offices to combi-offices with a central zone, to open-plan offices or state-of-the-art office landscapes with very different working atmospheres.

作为钢筋混凝土骨架结构的设计,以支持网格和坚实的楼梯和辅助房间核心作为支撑,是经济的,并允许在使用方面有最大的灵活性和长期可改变性。室内墙壁采用轻质结构,或由住户自己安装。表面材料的选择是为了让它们散发出价值,创造一个吸引人的氛围,同时也是耐用和低维护的。可持续材料的使用是为了最大限度地减少二氧化碳的排放量和内含的能量平衡。
The design as a reinforced concrete skeleton structure with a support grid and solid staircase and ancillary room cores as bracing is economical and allows for the greatest possible flexibility and long-term changeability regarding use. Interior walls were built in lightweight construction or installed by the tenants themselves. Surface materials were chosen so that they radiate value and create an appealing ambiance, but are also durable and low-maintenance. Sustainable materials were used to minimise the CO2 footprint and the embodied energy balance.


这个概念通过雨水收集和在屋顶使用光伏的创新太阳能储存概念得到了完善。坚固的护栏隐藏在醒目的水平防晒板条后面,这减少了外墙的玻璃比例,以达到更好的绝缘值,并为建筑的认证赢得积分。建筑服务在全球温室气体排放中占很大比例,这就是为什么计划中的建筑被设计成一个几乎零碳的概念。LEED白金认证设定了一个高标准。
The concept is rounded off by rainwater harvesting and the implementation of an innovative solar power storage concept using photovoltaics on the rooftop. Solid parapets are hidden behind the striking horizontal sun protection slats, which reduce the glass proportion of the façade to achieve a better insulation value and earn credits towards the certification of the building. Building services are responsible for a large proportion of global greenhouse gas emissions, which is why the planned building is being designed as a nearly-zero carbon concept. LEED Platinum certification sets a high standard.















Architects: Sehw Architektur
Area: 29826 m²
Year: 2021
Photographs: Philipp Obkircher
Landscape architect: Landschaftsarchitekten Kübler
Electrical Engineering: Burnickl Ingenieur GmbH
Architect:Kathi Weber, Michael Cornelsen, Achim Eilmsteiner, Anna Lena Berger, Eun Kyoung Song, Thu Thao Nguyen
Fire Protection Consultant:Brandschutzservice Zobel GmbH
City:Augsburg
Country:Germany