Westbeat的建成为阿姆斯特丹新西区的公共空间网络增添了一个动态的新环节。由Studioninedots设计的新住宅综合体的特点是由86个拱门组成的公共基地,塑造了一个诱人的共享开放空间网络。这个超级空间的尺寸为65 x 50米,高8.5米,从字面上和隐喻上都将Westbeat提升到城市密集的外围地区,成为一个杰出的目的地。
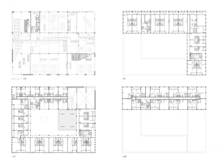
The completion of Westbeat adds a dynamic new link in the public space network of Amsterdam Nieuw-West. Designed by Studioninedots the new housing complex features a public base composed of 86 arches that shape a network of inviting, shared open spaces. Measuring 65 x 50 metres and 8.5 metres high, this superspace literally and metaphorically elevates Westbeat to become a distinguished destination in the city’s densifying urban periphery.




Westbeat优雅的拱形空间设置了一个雕塑环境,邀请居民、当地人和公众来发现这个新的公共中心,并将其变成自己的。这个超级空间在功能上交替使用,可以举办工作空间、接待场所、表演、音乐会等。支撑这种灵活使用的,也是未来的,是高拱形结构所创造的大片开放空间。
The gracefully arched spaces of Westbeat set a sculptural setting that invites residents, locals and the public to discover this new public hub and make it their own. This superspace alternates in function, hosting workspaces, hospitality venues, performances, concerts and more. What supports this flexibility of use, also for the future, are vast areas of open floor space created by the high arched structures.



不同大小的拱门网络和楼层高度的差异形成了不同类型的开放和私密空间。此外,这些拱门是具有宽跨度的地下停车场和超空间上面150个住宅之间的视觉和结构过渡。外立面框架中宽大的拱门突出了内部的文化活动,最大的拱门位于拐角处,作为这个显赫地址的一个邀请姿态。
Diverse types of open and intimate spaces are shaped by the network of different sized arches and differences in floor heights. Additionally, the arches are a visual and structural transition between the basement car park, with its wide spans, and the 150 dwellings above the superspace. Generous arches in the facade frame highlight the cultural activities within, with the largest arches positioned at the corner as an inviting gesture on this prominent address.

Westbeat的野心很大。它标志着 "飞跃环形"(超越A10高速公路),通过新的人行道弥合了场地的高度差异,并利用消音外墙和绿色画廊作为噪音和交通屏障。从社会角度来看,Westbeat关注的是年轻的城市居民,并支持这个新兴社区的创业和创新精神。Studioninedots将与首批入住者合作,设计他们在超级空间内部的部分。
Westbeat has high ambitions. It marks the ‘Leap over the Ring’ (beyond the A10 highway), bridges the height differences on site with new pedestrian routes through the building and acts as a noise and traffic barrier using sound-dampening facades and green galleries. From a social perspective, Westbeat focuses on young urban residents and supports the entrepreneurial and creative spirit of this emerging neighbourhood. In collaboration with the first occupants, Studioninedots will design their part of the interior of the superspace.










建筑师:Studioninedots
面积:24300平方米
年份:2020年
摄影:Frans Parthesius
客户:Achmea Dutch Residential Fund
承包商:Heddes Bouw en Ontwikkeling BV
安装:Huygen installatie advies
预算:Skaal
技术架构师:Atelier Bouwkunde
灯光:Clemens Lichtadvies
城市:阿姆斯特丹
国家:荷兰
Architects: Studioninedots
Area: 24300 m²
Year: 2020
Photographs: Frans Parthesius
Client:Achmea Dutch Residential Fund
Contractor:Heddes Bouw en Ontwikkeling BV
Installations:Huygen installatie advies
Cost Calculation:Skaal
Technical Architect:Atelier Bouwkunde
Light:Clemens Lichtadvies
City:Amsterdam
Country:The Netherlands