位于伦敦韦斯特本格罗夫南区的一栋基本未翻新的维多利亚式房屋,最初的设计理念是为两个成年人和他们的年幼子女建立一个新的家庭住宅。在项目进行过程中,这个家庭从两个孩子扩大到四个。在原来的外墙后面,建筑的流通性、后部形式和门窗限制了新部分的发展,使其能够为不断增长的家庭提供足够的空间。
The initial brief for a largely unrefurbished Victorian house on the South Side of London’s Westbourne Grove, centred around establishing a new family home for two adults and their young children. During the course of the project the family expanded from two children to four. Behind the original façade, the buildings circulation, rear form and fenestration limited the development of a new section able to generate enough space for a growing family.



由此产生的项目涉及到完全拆除前立面后面的所有原始设施,并进行大量挖掘以促进新方案的实施。
The resulting project involved the complete demolition of all original accommodation behind the front façade, and substantial excavation to facilitate the new proposal.

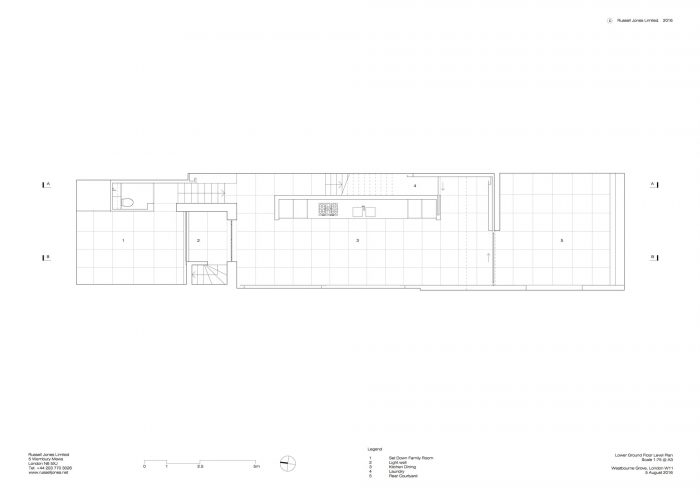
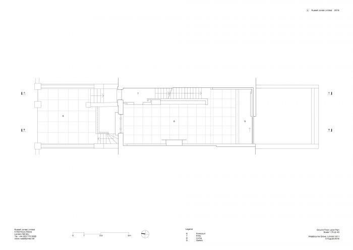
原有的半层楼和横墙配置被六层的垂直堆叠的流通系统所取代,以及更慷慨的比例和规划空间。两层的起居室和用餐区由一个双高廊和电动门连接,直接通向后院。家庭住宿从新的低层延伸到Westbourne Grove的人行道上。
The original half landing and cross wall configuration was superseded by vertically stacked circulation over six levels, and more generously proportioned and planned spaces. The living and dining area, over two levels, are linked by a double height gallery and motorized door, which opens directly onto a rear courtyard. Family accommodation extends beyond the new lower ground level up to the Westbourne Grove pavement.

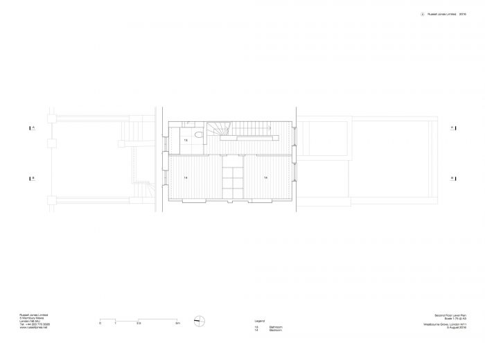
第一层是主人套房,上面几层是4个孩子的住宿。仔细考虑过的简单的材料调色板被选择来吸收和反射光线,并为客户的大量艺术收藏提供连续的表面。佛罗伦萨Pietra Serena石灰石被用于整个生活空间和浴室,灰色涂油橡木是所有卧室的主要地板表面。
Level 1 is dedicated to the Master suite, with the upper levels accommodating the 4 children. The carefully considered simple palette of materials have been chosen to absorb and reflect light and provide continuous surfaces for the clients substantial art collection. Florentine Pietra Serena limestone is used throughout the living spaces and bathrooms, and grey oiled Oak is the primary floor surface in all bedrooms.






















Architects: Russell Jones
Area : 330 m²
Year : 2012
Photographs : Helene Binet
Manufacturers : FSB Franz Schneider Brakel, Glazing Vision, Nu-Heat, Vola
Building Contractor : Task Services
Architectural Assistants : Douglas Kenney Consulting, Technical Solutions, Sofia Ferreira, Malcolm Thorpe, Melissa Beasley, Eleni Makri, Ross Tredget, Jonathan Douglas, John Treadgold
Party Wall Surveyor : Andrew Rysdale, Robert Martell & Partners
Client : Private
City : London
Country : United Kingdom