当我们想到十字路口时,我们很少称它为道路的MEETING场所,更多时候只是它们的交叉点。毕竟,这个地方让我们停下来,选择另一个运动方向,看到对方。它是一种神话般的地方,在童话、传说中也提到过,英雄们在这里被迫决定自己的命运。客户选择了一个位于郊区街道的小而舒适的社区的地块,只有一个十字路口。
When we think of crossroads, we rarely call it a MEETING place of roads, much more often just their intersection. And after all, this place makes us stop, choose another direction of movement, see each other. It is a kind of mythological place, also mentioned in fairy tales, legends, where heroes are forced to decide their own destiny. The clients chose a plot in a small, cozy community located along a suburban street, having only a single crossroad.


在检查了该地区后,第一次尝试促使自己尽可能地隔离,以保护该地区免受噪音和陌生人的影响。然而,在观察了当地的生活节奏后,这个空间对社区的重要性变得清晰起来--它是不同社区的流动的地方,是发生MEETING的地方。
After inspecting the territory, the first attempt prompted to isolate oneself as much as possible, to protect the area from noise and strangers. However, after observing the local rhythm of life, the importance of this space for the community became clear - it is a place where the flows of different communities pass, place where the MEETING happens.



在这样的背景下,我们对这种情况的处理方法发生了变化。我们希望调和隐私和在社区生活的好处。我们提议放弃传统的用栅栏围住领土的做法,将保护家庭空间的功能委托给房子本身。房屋的雕塑混凝土墙与植物夹层的提议也有助于突出不将街道空间私有化的愿望,而是丰富它,将它变成通往社区深处世界的大门。
In such a context, our approach to the situation has changed. We desired to reconcile privacy and the benefits of living in the community. We have proposed to abandon the traditional fencing of the territory with fences, delegating the function of protecting the family space to the house itself. The proposal of the sculptural concrete wall of the house with plant inclusions also helps to highlight the desire not to privatize the street space, but rather to enrich it and turn it into a gateway to the deep world of the community.

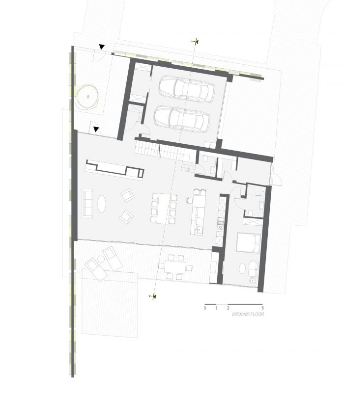
因此,提到的墙成为建筑的一个重要的构成和功能形式。以一个角度排列的结构,形成了交叉点,创造了一个舒适的家庭空间。墙的设计不仅是为了保护街道区域,而且也让西方的阳光进入房舍。在北角,房子的入口院子成了一种休闲区,一个秘密花园,在它后面是另一个世界的开始。房子的三面都有最少的窗户,所有的内部空间都向南部封闭的院子开放。
Thus, the mentioned wall becomes an essential compositional and functional formant of the building. The structure arranged at an angle, forming the intersection, creates a cozy family space. The wall is designed not only to protect from the streetarea, but let the western sun into the premises as well. In the north corner, the entrance yard of the house became a kind of relaxation zone, a secret garden, behind which the other world begins. The house, with a minimum of windows on three sides, opens up with all its interior spaces to the southern, enclosed courtyard.

一楼的起居室和厨房区域可以直接通向带有户外壁炉区的有顶庭院露台,而二楼的卧室则有一个朝南的阳台,可以享受一个有趣的夜晚。在重要的十字路口空间之后,光线是影响房屋表达的第二个因素。在这样的背景下,该建筑试图让自然光从四面八方进入,通过同时塑造相应的建筑元素,尽可能多地产生阳光。
The living and kitchen areas on the first floor have direct access to the covered courtyard terrace with an outdoor fireplace area, while the bedrooms on the second floor have a south-facing balcony for a fun evening. After the vital crossroad space, light is the second factor that influences the expression of a house. In such a context, the building has tried to let the natural light in from all sides, to generate as much sunlight as possible by shaping the elements of architecture accordingly at the same time.



房屋的混凝土墙被设计成不超过第一层的整个高度,为阳光的进入留下了一个小缺口。总而言之,如果认为房子只是一个光的使用者,那就会让人误解--在周围变暗的晚上,通过天窗和狭长的窗户射出的光线进一步照亮了MEETING十字路口,从现在起,它象征着社区空间的开始。
The concrete wall of the house is designed not over the entire height of the first level, leaving a small gap for the sunlight to come in. All in all, it would be misleading to think that the house is just a user of the light - on the evening when it gets dark around, the light emanating through skylights and slit windows further illuminates the MEETING crossroad, which from now on symbolizes the beginning of community space.














Architects: arches
Area : 290 m²
Year : 2020
Photographs :Ieva Saudargaitė
Manufacturers : AGROB BUCHTAL, Reynaers Aluminium, Sto, Benjamin Moore, Kebony, Woodlife Flooring
Design Team : Ruūta Vitonytėe, Milda Lišauskaitėe
Structural Engineer : Aikus
Inside And Outside Lighting : Sostines šviesos
Main Contractor : Profesionalios statybos
Landscape Design : Herbela
Interior Lights : Aromas
Country : Lithuania