该项目是对一个现有的维多利亚式露台的扩建和改造。它被设想为城市密集型生活的原型,在当地的规划限制下,开发被深思熟虑地最大化了。传统类型的背靠花园的排屋已被改造成一种新的类型--天井屋。它成功地应对了在拥挤的城市景观背景下建造体验丰富的住宅这一挑战。
The project is an extension and renovation of an existing Victorian terrace. It was conceived as a prototype for urban dense living, where the development has been thoughtfully maximized within local planning constraints. The traditional type of terraced house backed by a garden has been transformed into a new type - a patio house. It successfully responds to the challenge of making experientially rich dwellings within the context of congested cityscape.



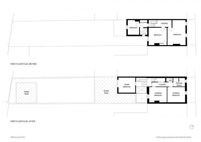
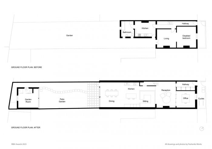
该项目由五个不同的部分组成,进入建筑后可以依次体验: 1. 1.面向港湾路的原维多利亚式露台;2.玻璃 "桥"--中庭;3.地面和第一层的新的现代扩建部分;4.一个天井花园的框架: 5. 位于场地另一端的花园房间。空间序列不仅在水平方向上,而且在垂直方向上进行了思考。一楼是开放的、公共的、喧闹的;一楼被划分为客人和儿童的房间。而最后的顶层是新增加的人字形屋顶上的主卧室--在目的地交通的尽头,充满了光线和安静。
The project consists of five distinct parts which can be experienced in sequence when entering the building: 1. The original Victorian terrace facing Harbour Road; 2. A glass ‘bridge’ - atrium; 3. The new contemporary extensions at the ground and first levels; 4. A patio garden framed by: 5. a garden room at the opposite end of the site. The space sequence is thought through not only horizontally but also vertically. The ground floor is open, public, and noisy; the first floor is divided into rooms for guests and children. And the last top floor is a master bedroom on the newly added mansard roof – full of light and quiet at the end of destination traffic.


旧的 "主楼 "和新的体量由一个概念性的玻璃 "桥 "连接;这个中庭将日光带入房子的中心,同时在视觉和物理上连接所有的楼层。桥 "的配置体现了老建筑的 "记忆"。
The “old” host building and the new volumes are connected by a conceptual glass “bridge”; this atrium brings daylight into the center of the house while visually and physically connecting all floor levels. The configuration of the “bridge” embodies the “memory” of the old building.


受比利时野蛮主义的启发,裸露的砖砌体与高度回收的内容划定了整个场地的周边,作为一个统一的主题,并创造了禁欲主义的家庭氛围。块状结构、钢梁和柱子、地板和金属甲板--大部分材料都被保留下来并暴露在外。新增加的建筑立面采用了米白色的波纹钢板,与窗框和门的铝色相匹配。这使人感到轻盈,阳光的微妙反射,同时也呼应了周围城市结构的白色元素。
Being inspired by Belgian brutalism, the exposed blockwork with highly recycled content delineate the whole perimeter of the site as a uniting theme and contriving ascetic domesticity. The blockwork, the steel beams and columns, the floor, and the metal deck - most of the materials have been left true and exposed. The new additions’ façade has been clad in off-white corrugated steel sheets matching to the aluminum color of window frames and doors. This enables the impression of lightness, subtle reflections of the sunlight, but also echoing of the white elements of the surrounding urban fabric.


我们正在努力实现内部和外部之间的无缝连接。拉杆的轮廓是最小的,在视觉上消除了内部空间和花园之间的障碍。外部使用的材料和调色板以及灯具与内部使用的相同,增强了两者构成一个整体的感觉。
We were striving to achieve a seamless connection between the inside and the outside. The profiles of the sliders are minimal visually dissolving the barriers between the internal spaces and the garden. The materials and color palettes, and light fixtures which were used on the exterior are the same as in the interior, enhancing the feeling that both form part of one whole.
































Architects: Pashenko Works
Area: 190 m²
Year: 2021
Photographs:Stijn Bollaert
City: London
Country: United Kingdom