东京都丰岛的一所房子,由日本建筑师平田平久建造。设计概念基于树及其物理结构。正如平田自己所说:“这棵树是由几个不同特征的部分组成的 - 树干,树枝,树叶。我们试图建立一个基于整体部分的层次组合的有机建筑:植物,开口(窗户,阳台,露台)和混凝土箱。“ 因此,建筑与自然相互联系,外部和内部之间的界限变得模糊。所有这些都遵循日本文化的传统原则:简单,规律,沉思自然。
A house in Toshima, Tokyo, was built by Japanese architect Hirakata. The design concept is based on the tree and its physical structure. As Putian himself said: "This tree is made up of several different parts of the tree - trunks, branches, leaves. We are trying to build an organic building based on a hierarchical combination of whole parts: plants, openings (windows, balconies, terraces) ) and concrete boxes. "Therefore, architecture and nature are interconnected, and the boundaries between the exterior and interior become blurred. All of these follow the traditional principles of Japanese culture: simplicity, regularity, and meditation.







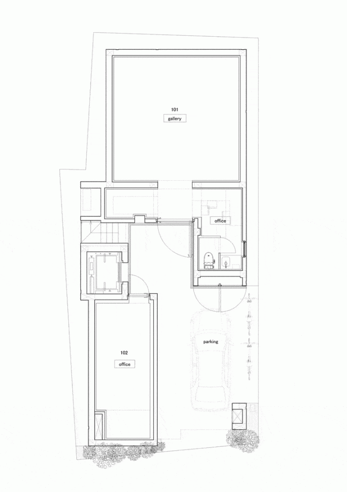
每个盒子里面都有自己的应用。更多私人空间,如画廊和卧室,更深入地定位。公共区域 - 起居区和用餐区 - 位于由玻璃包围的盒子中,将玻璃连接到外部露台和花园。
Each box has its own application. More private spaces, such as galleries and bedrooms, are positioned more deeply. Common areas - living area and dining area - in a box surrounded by glass, connecting the glass to the outside terrace and garden.



Design: Akihisa Hirata
Photography: Vincent Hecht