通过一条宽1.20米、长20米的狭窄走廊,我们最终进入一个由铁质门廊和覆盖着纤维素浆料的屋顶组成的中央空间,这个办公项目是衔接的,它试图将不同的空间和它们的功能以及居住在其中的人整合在一起。
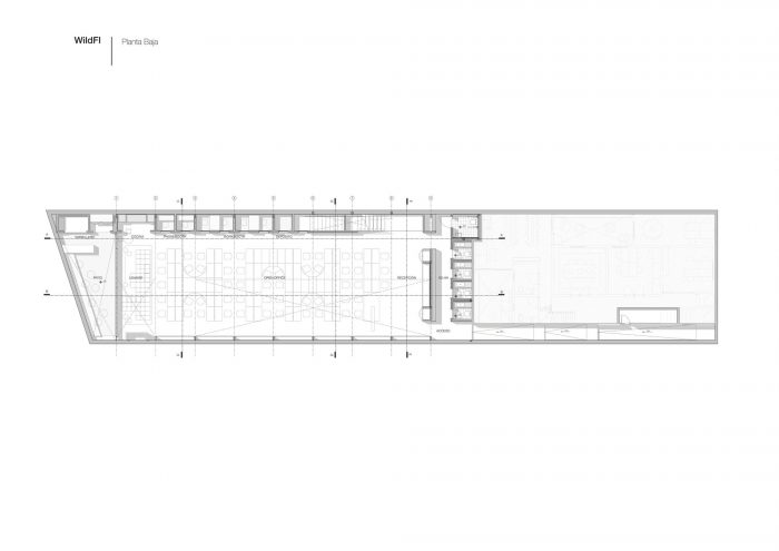
Accessing through a narrow corridor that is 1.20 m wide and 20 m long, we end up in a central space made up of iron porticoes and a roof covered in cellulose paste, this office project is articulated, which seeks to integrate both the different spaces and their functions, as well as the people who inhabit them.




主要目标是创造一个有65个位置的工作区,在同一个环境中,并具有民主的好处,使团队能够被整合,沟通和启发。为了实现这一目标,我们借助于使用张力器,将夹层悬挂在上述框架上,留下一个没有柱子的平面图,允许设计一个工作桌,通过有机的形式,使不同的团队融合在一起。一座由铁梁和玻璃墙组成的桥梁打断了中央大厅,产生了3个会议室,这是唯一的封闭环境,还有视频通话亭和服务。
The main objective was to create a work area with 65 positions in the same environment and with democratic benefits that allow the team to be integrated, communicated, and inspired. To achieve this, we resort to the use of tensors that hang the mezzanine from the aforementioned frames, leaving a floor plan free of pillars, allowing the design of a work table that, through an organic form, allows the integration of the different teams. A bridge made up of iron beams and glazed walls interrupt the central nave to give rise to 3 meeting rooms, the only closed environments together with video call booths and services.




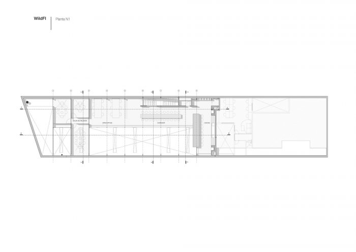
原材料、铁、混凝土和木材的使用,以及植物的存在和对自然光的寻求,通过主屋顶的穿孔和内部的玻璃隔断,创造了一个内部生态系统。在主甲板上,安装了一个光伏电池板,使这个项目在能源方面具有可持续性。
The use of raw materials, iron, concrete, and wood, in addition to the presence of plants and a search for the integration of natural light, through perforations in the main roof and glazed partitions in the interior; create an internal ecosystem. On the main deck, a battery of photovoltaic panels is installed that make this project energetically sustainable.















Architects: TIMB Arquitectura
Area : 480 m²
Year : 2021
Photographs :Santiago Chaer
Manufacturers : B&B Italia, Herman Miller, Bertoni, Egger, T-Con, Tecnología y Desarrollo
City:MONTEVIDEO
Country:Uruguay