Invisible Studio被委托建造2座新的建筑,包括他们新的树木管理中心--这是一个机械仓库和一个树木团队的福利设施。我们特别希望使用来自树木园的木材--因为客户拥有一种特殊的资源,他们以前没有在建筑中利用过。因此,所有的木材都是在现场种植和碾磨的,并在施工中使用未经处理的木材,无需进一步加工。
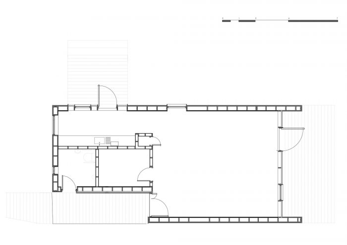
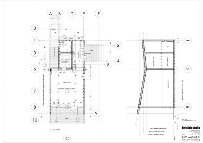
Invisible Studio were commissioned to build 2 new buildings comprising their new tree management centre – which is a Machinery Store and a Welfare Facility for the Tree Team. We particularly wanted to use the timber from the arboretum – as the client had an extraordinary resource which they hadn’t exploited previously for building. As a result, all the timber was grown and milled on site, and used untreated for the construction with no further processing.



我们的兴趣之一是如何使用不精确的材料来制造精确的建筑,这也是我们在这个项目中所享受到的乐趣,这个项目是由志愿者与熟练的承包商一起建造的。
One of our interests is how you can use imprecise materials to make a precise building, and this is something we have enjoyed with this project, which was constructed with volunteers working alongside a skilled contractor.

建筑设计的工程目标是有效地使用树木园的木材;所有的加工都在现场进行,以尽量减少运输和加工成本。许多用于结构的木材直到设计过程的后期才被砍伐,设计被调整以适应可用的材料。工程师、建筑师和承包商在制造木材框架的过程中进行了对话,以便在强度最关键的地方使用高质量的木材,而在其他地方则使用没有达到较高强度等级的木材。这种方法使团队能够有效地利用现有的材料。
The engineering objective for the design for the building was to efficiently use timber from the arboretum; with all processing taking place on site minimising transport and processing costs. Many of the timbers to be used for the structures had not been felled until late in the design process and the design was adapted to suit the material that became available. A dialogue between engineers, architect and the contractor during fabrication of the timber frames facilitated the use higher quality timber where strength was most critical and in other areas make use of timbers that had not achieved the higher strength grading. This approach allowed the team to efficiently use the materials available.


















































Architects: Invisible Studio
Year : 2015
Photographs :Andy Matthews
City:WESTONBIRT
Country:UNITED KINGDOM