Wóolis是由工人,或者说是工匠命名的,他们赋予了建筑空间以生命。它在玛雅语中的意思是球、圆、圈;他们这样称呼房子是指中央的圆柱体,是项目的核心。
Wóolis was named by the workers, or rather artisans, who gave life to the built space. Its meaning in Mayan is ball, round, circle; they called the house this way referring to the central cylinder, the heart of the project.






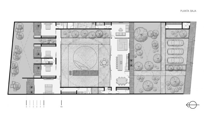
Wóolis位于尤卡坦州梅里达市的北部,在Temozón Norte的一条次要街道上,是一个邀请我们观察和记住我们的起源的地方,一个当代的天文台,促使我们发现时间的流逝,这可以从太阳和圆柱体的上部格子在一天的不同时间在墙上画的线条中看到,由于太阳的倾斜度不同,这些痕迹在一年中会改变其位置。
Located north of the city of Mérida, Yucatán, in a secondary street in Temozón Norte, Wóolis is a place that invites us to observe and remember our origins, a contemporary observatory that provokes us to discover the passage of time that can be seen in the lines that the sun and the upper lattice of the cylinder paint on the walls at different times of the day, traces that change their location during the year due to the varying inclination of the sun.

利用地块的朝向,中央圆柱体的功能是允许光线通过中央空间,也就是游泳池所在的地方,然而,鉴于其巨大的倾斜度,它在日出和日落时分为空间提供了足够的阴凉,以免除在露台上使用屋顶,使空间在一天中的大部分时间都可以在阴凉处居住。它的战略位置,紧挨着室内的社交区,通过打开所有分隔室内和室外的滑动门,实现了两个空间之间的联系。
Taking advantage of the orientation of the plot, the function of the central cylinder is to allow the passage of light to the central space, where the pool is located, however, given its great camber, it provides the space with enough shade during sunrise and sunset to exempt the use of a roof on the terrace, allowing the space to be inhabited below shade most of the day. Its strategic location, right next to the interior social area, achieves the link between both spaces by opening all the sliding doors that separate the interior from the exterior.

在社交区的另一边,有一个天井,里面有一棵大的阿瓦拉莫树,从那里项目允许从远处看到圆柱体,预计它将是一个惊喜,在它下面。Wóolis是一个有三个天井的住宅,第一个天井是最公共的,后面的天井是最私人的;其中有三个生活的内部机构:服务、公共空间和私人空间。
On the other side of the social area there is a patio with a large álamo tree from where the project allows the cylinder to be seen from afar, anticipating the surprise that it will be to be below it. Wóolis is a home that has three patios, the first being the most public and the one at the back the most private; among them are three living interior bodies: services, public spaces and private spaces.



Wóolis是一个自我建设的练习,客户是领导工作过程的人,并协调所有参与工作的演员。这个项目并没有因为其奢华的材料和涂料而假装自己是独一无二的,相反,它在其元素的刚性真诚中找到了这种奢华,充分突出了光和它与项目的互动。
Wóolis is an exercise of self-construction, the client was the one who led the work process and coordinated all the actors who participated in it. It is a project that does not pretend to be unique due to its luxurious materials and coatings, on the contrary, it finds that luxury in the rigid sincerity of its elements, giving full prominence to light and its interaction with the project.








Architects: Arkham Projects
Area: 4865 ft²
Year: 2021
Photographs: Zaickz Moz, Manolo Solís
Manufacturers: AutoDesk, Cemex, MIDO, Édron
Lead Architect: Arkham Projects
Design Team:Benjamín Peniche Calafell, Jorge Duarte Torre, Roberto Romero Maldonado
Construction:Carlos Mora
City:Merida
Country:Mexico