位于不莱梅的历史悠久的乡村别墅和花园Wümmehof曾经有50年是德国最后一位皇帝的孙子和普鲁士国王家族下台后的家。由于后者以及主屋最初是由早期的弗里茨-舒马赫(Fritz Schumacher)设计,并由弗里德里希-吉尔德迈斯特(Friedrich Gildemeister)进行景观设计(两人都是1930年代德国杰出的建筑人物),该建筑及其部分场地被城市列为A级。此外,它位于潮汐河Wümme附近的洪水区--潮汐河的面积季节性地扩大了一百倍--使得规划和执行将这里改造成一个由七个差不多大的单元组成的公共生活项目特别困难。
The historic country house and gardens Wümmehof in Bremen used to for 50 years be the home to the grandson of the last German emperor and head of the house of Prussian kings after the family stepped down from the throne. Due to the latter as well as the fact that the main house was originally designed by the early Fritz Schumacher and landscaped by Friedrich Gildemeister (both prominent architectural figures of 1930’s Germany) the building and parts of its grounds were Grade A listed by the city. Additionally, its location in a flooding zone adjacent to the tidal river Wümme – which seasonally expands its size a hundredfold – made it particularly difficult to plan and execute the brief to transform the place into a communal living project of seven about equally large units.



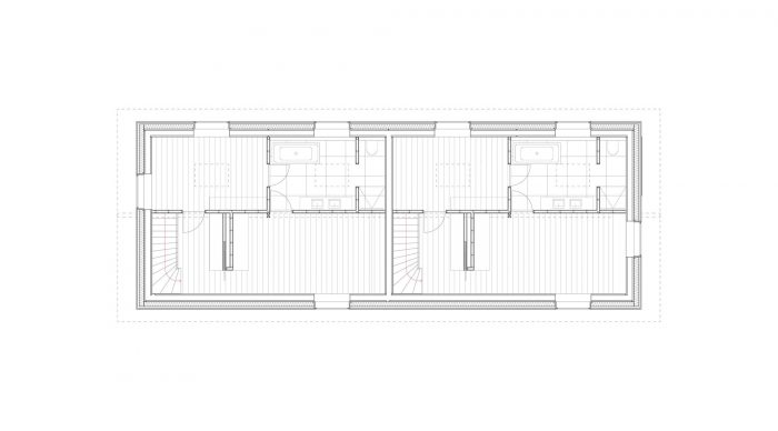
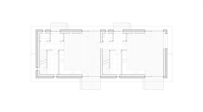
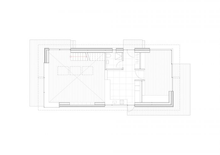
为了避免常规居住区的特征,而倾向于农场类型,每一栋房子都是按照该地产以前的结构设计的:马厩、干草厩、门房和农用车车库。每座新房子都被放置在小的住宅架上,与堤坝相连。所有的单元都需要用预制的混凝土墙和天花板来建造,以适应建筑物的部分长的自由伸展的开放部分。由于这些都是靠铝床浇筑的,它们可以保持暴露的状态。
In order to avoid the character of a regular settlement in favor of a farm typology each one of the houses was designed after a structure formerly existing on the property: horse stables, hay stables, a gatehouse, and a garage for farm vehicles. Each one of the new houses is placed on small dwelling mounts, which are connected to a dyke. All of the units needed to be constructed with prefabricated concrete walls and ceilings in order to accommodate the partly long free-spanning open parts of the buildings. As these were cast against aluminum beds, they could be left in their exposed state.


根据当地泥炭切割者的传统--类似于寿杉班的技术--他们将码头和船只的木板和支柱烧掉以防水防虫,马房的木质外墙被碳化。因此,棚屋是用附近砖厂生产的不同温度的泥炭烧制的手工熟料砖建造的。未处理的立缝铝板和历史悠久的双槽联锁瓦片是建筑的屋顶,以便与周围的农场建筑相融合。
In the tradition of local peat cutters – and similar to a Shou Sugi Ban technique – who burned the planks and pillars of their jetties and boats to water and insect-resistant proof them, the wooden facades of the stable houses were carbonized. The shed house, accordingly, was built in peat-fired handmade clinker bricks at different temperatures produced in a brickyard nearby. Standing seam untreated aluminum sheets and historic double trough interlocking tiles are roofing the buildings in order to blend in with the surrounding farm buildings.


室内表面基本上保持原始和未加工状态。额外的材料被减少为橡木地板、铝和抛光的混凝土砂浆。铝铸墙的背面以及壁龛和窗户的开口都用橡木木板衬托。
Interior surfaces are largely left raw and unfinished. Additional materials are reduced to oak wood floors, aluminum, and polished concrete screed. The backsides of the aluminum cast walls as well as the niches and window openings are lined in oak wood panels.




当地传统的 "花窗"--一个悬臂式的固定玻璃构件,提供一束新鲜的花朵,向窃贼表明该建筑有人居住--被4米高的窗板发挥到了极致。
The local tradition of a “flower window” – a cantilevering fixed glazed element providing a fresh bunch of flowers to indicate to burglars that the building is inhabited – is taken to extremes with 4 meters tall window panels.




古老的建筑基本上都按照原来的状态进行了修复,但也被拆分和改造成单元。
The old buildings have largely been restored according to their original state but split and converted into units, too.




占地10公顷的历史花园没有被破坏,或者由于建筑工程的原因,尽可能地被恢复。现在居住在这些单元中的人们通过一个小码头和一个船库共享花园和河流的通道。
The 10-hectare historical gardens have been left untouched or restored as much as it has been possible due to the building works. The people who now inhabit the units are sharing the gardens and its river access through a small jetty and a boathouse.



























Architects: Felix Brinkhege
Area : 565 m²
Year : 2016
Photographs :Felix Brinkhege, Caspar Sessler, Ranil Beyer, Caspar Sessler, Felix Brinkhege
Manufacturers : Torfbrand Architektur-Klinker, fdu GmbH & Co. KG
Climate Engineering : ConcreTec GmbH & Co. KG
Design And Execution : Felix Brinkhege
Geological Engineering : Underground
City : Bremen
Country : Germany