这座半独立式住宅的选址是城市边缘的一个小型的、最近的分区的一部分,填补了带状发展中的最后一个缺口。它坐落在一个沙脊上,那里曾经有一个风车。今天,该地区典型的农村景观仍然可以在散落在城市扩张中的碎片中看到:一个历史悠久的农庄,像小区对面的旧人行道,以及田野上意外的视野。
The site for this semi-detached house is part of a minor, recent subdivision on the edge of town, filling in a final opening in the ribbon development. It sits on a sand ridge where a windmill once used to stand. Today, the typical rural landscape of the region remains visible in fragments scattered among the urban sprawl: a historic farmstead, old footpaths like the one opposite the plot, and an accidental vista over the fields.






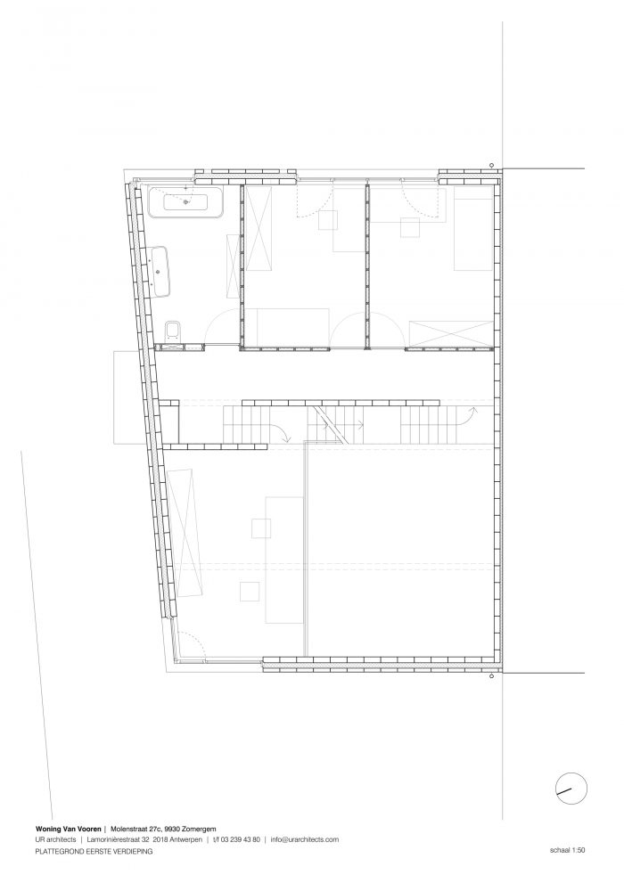
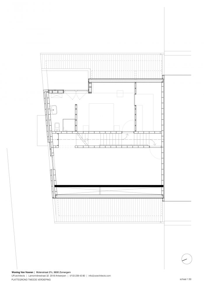
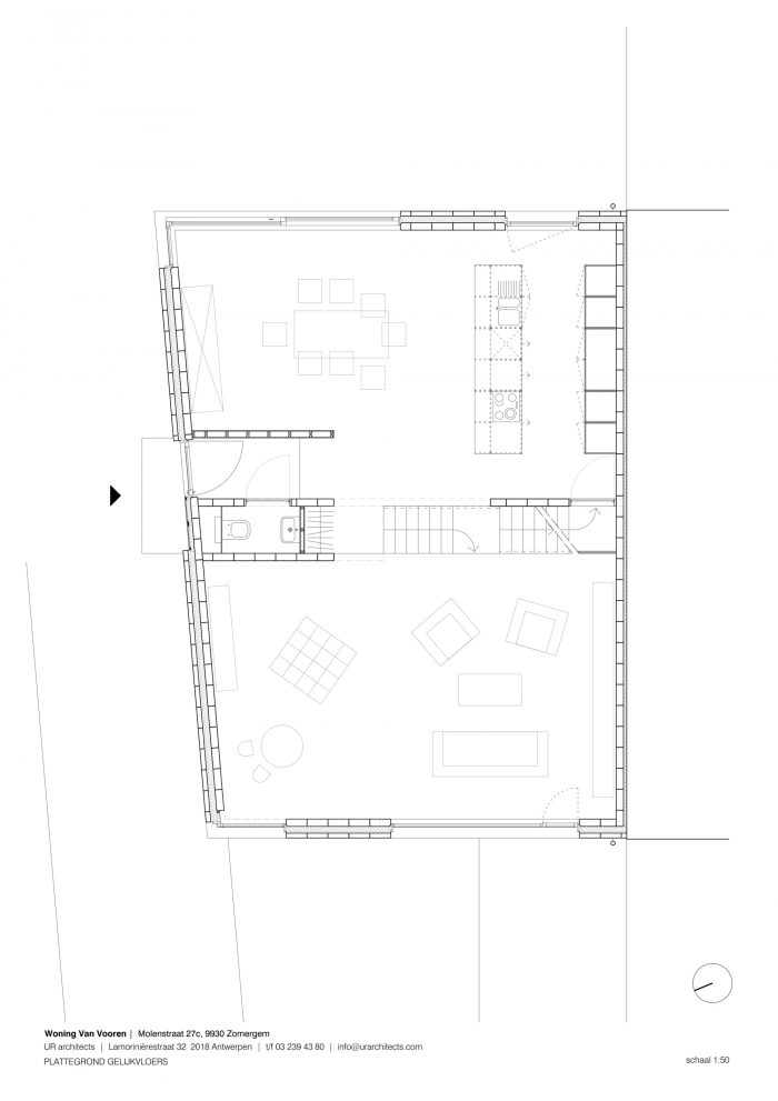
平缓的坡度使我能够偏离标准的两层楼加屋顶,后面有一个车库,并想象一个紧凑的分层住宅,有一个集成的车棚。外部体积的紧凑性与内部的宽敞性形成对比。外墙和内墙都是统一采用裸露的混凝土砌体,形成一个坚固的外壳。
The gentle slope allowed me to deviate from the standard two-story plus roof with a garage in the back, and to imagine a compact split-level house with an integrated carport. The compactness of the outer volume contrasts with the internal spaciousness. The walls, both outside and inside, are uniformly built in exposed concrete masonry, forming a solid shell.



相比之下,窗户是抛光的铝,其颜色是参考附近老式农舍的颜色方案。在室内,这些材料与各种木质元素相辅相成:交错的木梁地板由房子中间的直橡胶木楼梯连接,厨房家具,以及一些松木板的轻质墙面。
The windows, in contrast, are in polished aluminum with color accents referring to the color scheme of nearby old farmhouses. In the interior, these materials are complemented with various elements in wood: the staggered wooden beam floors connected by a straight rubberwood staircase in the middle of the house, kitchen furniture, and some light walls in pinewood panels.




这座为摄影师和他的家人设计的房子通过与受阻的景观建立精确的视觉关系来回应混乱的环境。在外部,不同大小的切口和穿孔打破了体量的庞大性。它们在角落里折叠,像铰链一样连接着立面,同时小心翼翼地将周围环境和乡村的图像框起来。
This house for a photographer and his family responds to the chaotic surroundings by establishing precise visual relationships with the obstructed landscape. On the exterior, cutouts, and perforations of varying sizes break the massiveness of the volume. Folding around the corners they connect the elevations like hinges, while carefully framing images of the surroundings and the countryside beyond.


这种捉迷藏的主题在室内继续,交替的地板和具有不同开口的楼梯墙在空间之间创造了令人惊讶的关系。因此,生活空间顺利地流向彼此,在傍晚时分,引导阳光从街道穿过房子到花园边的用餐区。双层高的起居室,是对风车的遥远提醒,成为房子的自然震中。
This theme of hide and seek continues in the interior, where the alternating floors and staircase walls with varying openings create surprising relationships between spaces. As a result, the living spaces smoothly flow into one another, and in the evening guide the sunlight from the street through the house to the garden-side dining area. The double-height living room, a distant reminder of a windmill's hold, becomes the house's natural epicenter.
















Architects: UR architects
Area : 326 m²
Year : 2018
Photographs :Wouter Van Vooren, Eddy Vangroenderbeek
Manufacturers : Reynaers Aluminium, Duravit, BORA, Senso Vloeren, WISA
Lead Architects : Regis Verplaetse, Nikolaas Vande Keere
Architectural design : Ana Pontinha
Structural Engineering : UTIL Struktuurstudies
Visualisation : Maud Bouhin
Program / Use / Building Function : Semi-detached single family house
City : Lievegem
Country : Belgium